Prodej domu 4+1 • 124 m² bez realitkyGRUNDSTÜCK EXKLUSIV NUR FÜR DANWOOD-HAUSBAU ORTSRAND STAINZ St Stefan ob Stainz Steiermark 8511
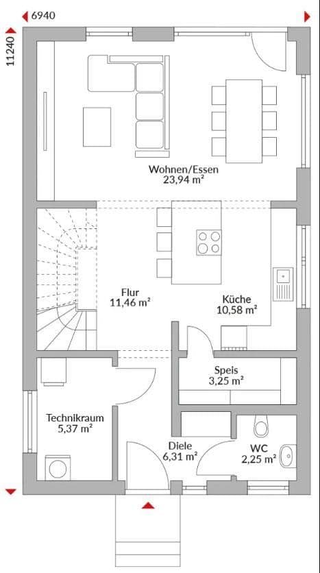
GRUNDSTÜCK EXKLUSIV NUR FÜR DANWOOD-HAUSBAU ORTSRAND STAINZ St Stefan ob Stainz Steiermark 8511MHD do minuty pěšky • GarážNavzdory malé zastavěné ploše splňuje tento dům všechny požadavky moderního bydlení. Tento prostorový zázrak vyhovuje všem nárokům moderního bydlení – s maximální funkčností. Ideální pro všechny, kteří plánují uvědoměle a nechtějí si nic nechat ujít. Promyšlený dům, který překvapí: s prosvětlenou obytnou částí, chytrým uspořádáním prostoru a vším, co moderní bydlení vyžaduje. Pro ty, kteří mají rádi to podstatné – a oceňují komfort.
Funkční, efektivní, pohodlný: Tento dům ukazuje, kolik kvality života se skrývá v kompaktní architektuře. Pro všechny, kteří plánují s předstihem – a využívají prostor inteligentně.
Na vašem pozemku nebo v…
Güssing: cca 2 600 m², lokalita zcela rovinatá. Velikosti pozemků a jejich polohy jsou volitelné. Rozměry od 500 m² do 1500 m².
Zde najdete stavební pozemky extra třídy! V nejlepším umístění a s dechberoucím výhledem na nádherný hrad Güssing!
Güssing nabízí život připravený do budoucnosti, dostupný a energeticky nezávislý v přírodě, což z investice do nemovitosti zde činí strategickou hodnotovou investici.
Proč Güssing
Energetický průkopník a udržitelnost:
Město je energeticky soběstačné a mezinárodně uznávané.
Vysoké pokrytí (nad 85 %) regionálním vytápěním z biomasy vede ke stabilním, výhodným nákladům na vytápění.
Dostupné ceny nemovitostí:
Ceny jsou stále výrazně nižší než rakouský průměr, což umožňuje sen o vlastním domě s prostornými pozemky.
Silná infrastruktura a kvalita života:
Jako okresní předměstí zaručuje Güssing krátké vzdálenosti a prvotřídní služby.
Plánované velké investice:
Nový vzdělávací kampus a moderní lékařské centrum (od roku 2026).
Kulturní centrum (hrad Güssing) a blízkost termálních lázní.
Plné otevření S7 přináší Güssingu a jeho obyvatelům řadu významných výhod:
Rychlejší spojení s metropolitními oblastmi: Rychlostní silnice výrazně zkracuje dobu jízdy na dálnici A2 jižním směrem, čímž se doba cest do Grazu a Vídně výrazně sníží.
Odlehčení regionu: Nová trať odvádí průjezdovou dopravu, která dříve výrazně zatěžovala obce jako Fürstenfeld a Rudersdorf.
Ekonomické impulzy: Nové spojení, mimo jiné přes přípojku u Rudersdorf/Dobersdorf a blízkost spojení s Königsdorfem, posiluje Güssing jako okresní předměstí a hospodářské centrum díky lepší dostupnosti a podpoře nových průmyslových parků.
Stabilita hodnoty a rozvojový potenciál:
Cílené komunální investice do infrastruktury, oživení městského centra a technologického centra zajišťují dlouhodobou stabilitu hodnoty nemovitostí.
Komunální strategie je zaměřena na zvládnutí demografických výzev a etablování Güssingu jako atraktivního místa k bydlení i podnikání.
Cílová skupina
Rodiny, které hledají budoucnost, bezpečí a přírodu, stejně jako všichni, kdo kladou důraz na nízké náklady na energie a ekologickou odpovědnost.
Další pozemky v:
Pozemek, 8323 Kohldorf: Stavební pozemek plný slunce ve východoštýrijském kopcovitém území, 15 km od Grazu!
Velikost: 758 m², prodejní cena: € 66 000, --
Pozemek, 8323 Kohldorf: Slunečný stavební pozemek v Kohldorfu, 15 km východně od Grazu!
Velikost: 787 m², prodejní cena: € 69 000, --
Pozemek, 8311 Markt Hartmannsdorf: Kompletně zajištěný, slunečný stavební pozemek v Markt Hartmannsdorf
Velikost: 920 m², prodejní cena: € 53 000, --
Pozemek, 9335 Lölling Graben: Stavební pozemek s úchvatným výhledem do malebného karantinského horského prostředí
Velikost: 1001 m², prodejní cena: € 50 000, --
Pozemek, 8075 Hart bei Graz: Slunečný pozemek u bran Grazu
Velikost: 1980 m², prodejní cena: € 475 000, --
Pozemek ke koupi ve Stainzu: Slunečný pozemek na okraji Stainzu
Velikost: 825 m², prodejní cena: € 149 000,
Mezi vlastníkem pozemku a stavitelem domu neexistuje žádné ekonomické spojení.
Rodinný dům pro jednu rodinu se 4 pokoji – exkluzivní vybavení!
K klíč včetně dodání a montáže od vrcholu základové desky.
️ Střešní konstrukce zesílená pro sněhovou zátěž
️ Vzduch-voda tepelná čerpadla a podlahové topení
️ Mechanické větrání s rekuperací tepla (letní chlazení)
️ Elektrické rolety v celém domě
️ Podlahové krytiny a sanitární zařízení dle vlastního výběru
️ Příprava pro fotovoltaiku
️ Balíček kompletní bezstarostnosti
Možnost vlastní účasti při výstavbě – zcela podle vašich představ.
Poradenství a prodej:
Paní Tatjana Wyss
+43 676 553 77 47
tatjana.wyss@danwood.at
Zajistěte si první konzultaci již dnes!
Požádejte o popis stavby a katalogy!
K tomu je nutné uvést vaše telefonní číslo, e-mailovou adresu a adresu.
Děkujeme!
KALKULAČKA FINANCOVÁNÍ
https://www.finaustria.at/finanzierungsrechner
DALŠÍ NABÍDKY!
https://qr.scan.page/uploads/pdf/1752348182250_686ba1debcb60.pdf
V okolí nemovitosti najdete
Stále hledáte to pravé?
Nastavte si hlídacího psa. Nabídky vybrané na míru dostanete souhrnně 1× denně e-mailem. S Premium profilem máte k ruce hlídačů rovnou 5 a když se něco objeví, informují vás obratem.





















