Prodej domu 3+1 • 87 m² bez realitkyGRUNDSTÜCK FERNBLICK EXKLUSIV NUR FÜR DANWOOD-HAUSBAU Lölling Graben Lölling Graben Kärnten 9335
GRUNDSTÜCK FERNBLICK EXKLUSIV NUR FÜR DANWOOD-HAUSBAU Lölling Graben Lölling Graben Kärnten 9335MHD 3 minuty pěšky • GarážBungalov: Níže v PDF naleznete několik příkladů cen!
Vážení stavební investoři,
přejete si uskutečnit svůj sen o vlastním domově, ale nejste si jistí, který dodavatel je pro vás ten pravý nebo kdo vám může nabídnout dům ve vámi požadovaném provedení?
S DAN-WOOD-HOUSE můžete svůj vysněný dům zrealizovat – i když ještě nemáte konkrétní stavební plán. Vyberte si z 130 různých typových domů a přizpůsobte je zdarma podle svých představ. Kromě toho máte na výběr z různých typů stěnových konstrukcí.
Jaký geniální poznatek: Nejde o to, co DAN-WOOD nebo jednotlivé společnosti nabízejí, ale o to, jak vypadají vaše individuální představy o dokonalém bydlení! Zde vám bude poskytnuto odborné poradenství, které vás nadchne!
Nabízím vám své osobní poradenství pro váš projekt! Začnu úvodní konzultací, kterou preferuji provést přímo na vašem stavebním pozemku. Tvar, výškové rozdíly a orientace pozemku jsou zde absolutními hlavními faktory!
Ještě nevlastníte pozemek? Žádný problém! Rád vám poskytnu přehled o mnoha skvělých možnostech úprav domů DAN-WOOD. Existuje tolik zajímavých aspektů k probrání: typ domu, dispozice, tvar střechy, topení, elektroinstalace, stínění a možné vybavení jako "chytrá domácnost".
Je opravdu důležité znát celkové finanční náklady včetně vzorkování!
S potěšením vám oznamuji, že pro tento účel provedu předběžné vzorkování. Díky tomu si tyto náklady můžete snadno naplánovat! To je opravdu úžasná pomoc! Díky tomu můžete nejen sestavit finanční plán, ale také začít hledat vhodné financování.
Neváhejte a kontaktujte mě ještě dnes! 0676 5537747
Objednávku katalogu proveďte pod názvem "Katalog Serie Today" na e-mailu tatjana.wyss@danwood.at
Při objednávce uveďte prosím svou adresu a telefonní číslo
na vašem pozemku nebo v...
Güssing: cca 2 600 m², zcela rovinatá poloha. Rozměry a umístění pozemků jsou volně vybíratelné – od 500 m² do 1 500 m².
Tady najdete stavební pozemky první třídy! V nejlepší lokalitě a s dechberoucím výhledem na nádherný hrad Güssing!
Güssing nabízí život, který je zajištěný do budoucna, dostupný a energeticky nezávislý v přírodě – což z investice do nemovitosti zde činí strategickou hodnotovou investici.
Proč Güssing
Energetický průkopník a udržitelnost:
Město je energeticky soběstačné a mezinárodně uznávané.
Vysoké pokrytí (přes 85 %) regionálním dálkovým vytápěním z biomasy vede k stabilním a příznivým nákladům na vytápění.
Dostupné ceny nemovitostí:
Ceny jsou výrazně nižší než rakouský průměr, což umožňuje splnit sen o vlastním domově s prostornými pozemky.
Silná infrastruktura a kvalita života:
Jako okresní předměstí zaručuje Güssing krátké cesty a skvělou dostupnost služeb.
Plánované velké investice:
Nový vzdělávací kampus a moderní lékařské centrum (od roku 2026).
Kulturní centrum (hrad Güssing) a blízkost termálních lázní.
Plná otevřenost S7 přináší Güssingu a jeho obyvatelům významné výhody:
– Rychlejší napojení na aglomerace: Rychlostní silnice výrazně zkracuje dobu jízdy na dálnici A2 jižní, čímž se doby cest do Grazu a Vídně výrazně zkracují.
– Zmírnění zátěže regionu: Tranzitní dopravu, která dříve velmi zatěžovala obce jako Fürstenfeld a Rudersdorf, nyní vede po nové trase.
– Ekonomické impulzy: Nové napojení, mimo jiné prostřednictvím připojovacího místa u Rudersdorf/Dobersdorf a blízkosti k napojení Königsdorf, posiluje Güssing jako okresní předměstí a jako lokalitu pro podnikání díky lepší dostupnosti a podpoře nových průmyslových parků.
Hodnotová stabilita a rozvojový potenciál:
Cílené obecní investice do infrastruktury, oživení centra města a technologického centra zajišťují dlouhodobou hodnotovou stabilitu nemovitostí.
Obecní strategie se zaměřuje na řešení demografických výzev a na etablování Güssingu jako atraktivního místa pro bydlení a podnikání.
Cílová skupina
Rodiny, které hledají budoucnost, bezpečí a přírodu, stejně jako všichni, kdo kladou důraz na nízké náklady na energii a ekologickou odpovědnost.
Další pozemky v:
Pozemek, 8323 Kohldorf: Stavební pozemek se spoustou slunce v východním štýrském kopcovitém terénu, 15 km od Grazu!
Rozloha 758 m² – kupní cena: 66 000 €
Pozemek, 8323 Kohldorf: Slunný stavební pozemek v Kohldorfu, 15 km východně od Grazu!
Rozloha 787 m² – kupní cena: 69 000 €
Pozemek, 8311 Markt Hartmannsdorf: Kompletně upravený, slunný stavební pozemek v Markt Hartmannsdorf
Rozloha 920 m² – kupní cena: 53 000 €
Pozemek, 9335 Lölling Graben: Stavební pozemek s úchvatným výhledem v malebném karintském horském prostředí
Rozloha 1001 m² – kupní cena: 50 000 €
Pozemek, 8075 Hart bei Graz: Slunný pozemek před branami Grazu
Rozloha 1980 m² – kupní cena: 475 000 €
Pozemek ke koupi ve Stainzu – slunný pozemek na okraji města Stainz
Rozloha 825 m² – kupní cena: 149 000 €
Neexistuje žádné hospodářské spojení mezi vlastníkem pozemku a stavebníkem domu.
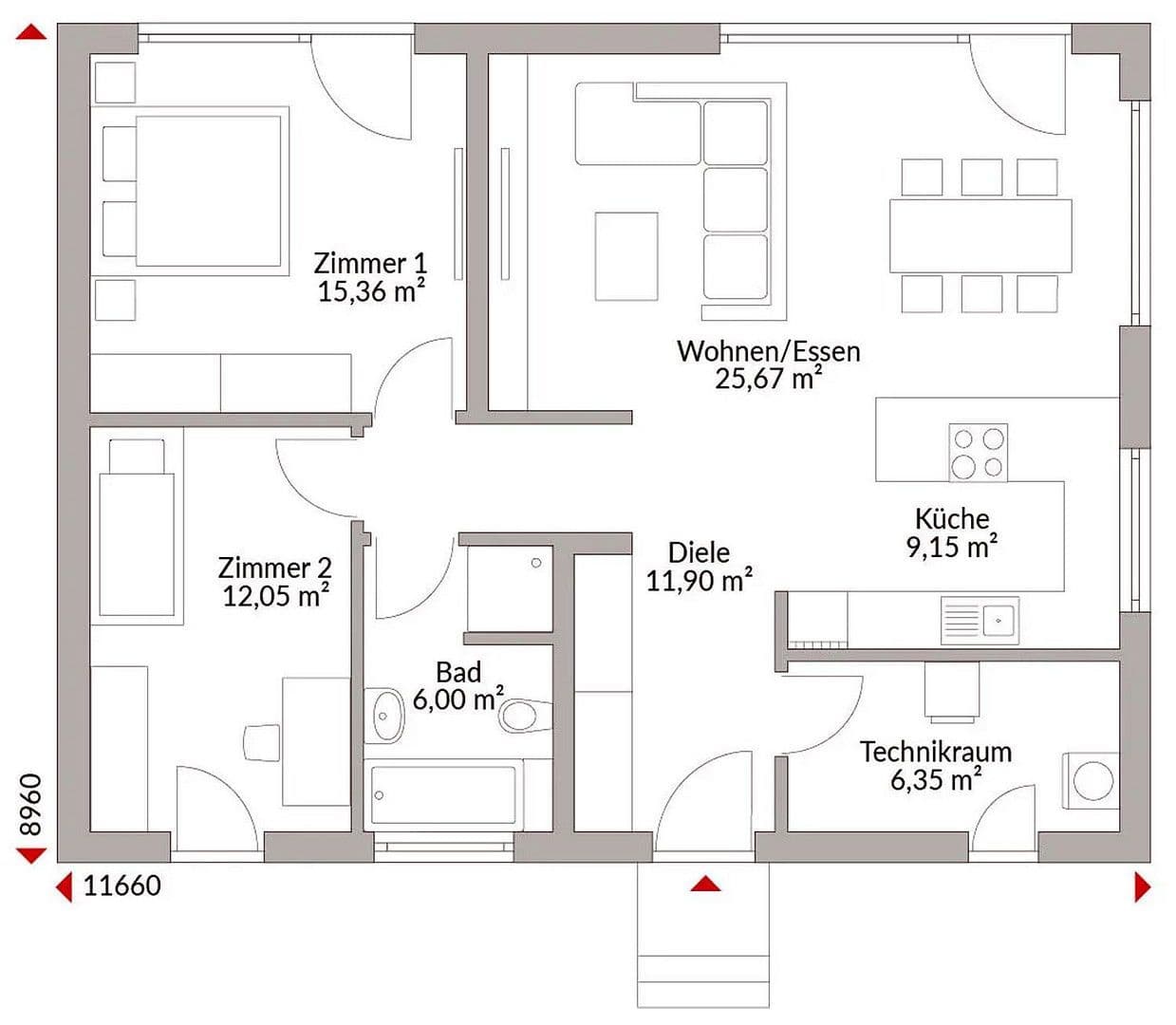
BUNGALOV – 3 pokoje, koupelna, WC, exkluzivní vybavení!
Pozemek 500 m², 1000 m², 1500 m² – případně k dispozici na přání.
V ceně je zahrnuto:
– Hotové řešení na klíč (nábytek již umístěn – stačí se nastěhovat!)
– Dodávka a montáž od horní části základů
– Střešní konstrukce zesílená proti sněhové zátěži
– Vzduch-voda tepelná čerpadla a podlahové vytápění
– Decentralizované větrání obytných prostor s rekuperací tepla (v létě chladí)
– Elektrické rolety ve všech místnostech domu
– Veškeré podlahové krytiny dle vašeho výběru
– Veškeré sanitární vybavení dle vašeho výběru
– Příprava pro fotovoltaický systém
– Komplexní balíček "bez starostí"
VOLITELNĚ: Možnost vlastní účasti je samozřejmostí!
Poradenství – prodej: paní Tatjana Wyss
+43 676553 77 47, tatjana.wyss@danwood.at
Okamžité informace nebo úvodní konzultace!
Další nabídky najdete na:
https://qr.scan.page/uploads/pdf/1751712478803_686335a001f76.pdf
Zažádejte o stavební popis a katalogy!
Pro tento účel uveďte, prosím, své telefonní číslo, e-mailovou adresu a poštovní adresu.
Děkuji mnohokrát!
V okolí nemovitosti najdete
Stále hledáte to pravé?
Nastavte si hlídacího psa. Nabídky vybrané na míru dostanete souhrnně 1× denně e-mailem. S Premium profilem máte k ruce hlídačů rovnou 5 a když se něco objeví, informují vás obratem.











