Prodej domu 5+1 • 228 m² bez realitkyGRUNDSTÜCK ORTSRAND EXKLUSIV NUR FÜR DANWOOD-HAUSBAU St. Stefan ob Stainz Steiermark 8511
GRUNDSTÜCK ORTSRAND EXKLUSIV NUR FÜR DANWOOD-HAUSBAU St. Stefan ob Stainz Steiermark 8511MHD do minuty pěškyEfektivita se setkává s emocionální inteligencí!
Budova je víc než projekt – je to prohlášení.
Vision by Danwood znamená architekturu s postojem. Je koncipována pro lidi, kteří nesou odpovědnost a činí hodnoty viditelnými.
Každý dům vzniká podle architektonicky náročného konceptu: jasný ve vyjádření, precizní ve zpracování, bez kompromisů v kvalitě.
Pro vůdčí osobnosti, které nestaví jen, ale tvoří – s vizí, stylem a podstatou.
Na vašem pozemku nebo v…
Güssing: cca 2 600 m², pozemek zcela rovinatý. Výběr velikostí a poloh pozemků je volný. Velikosti od 500 m² do 1 500 m².
Tady jsou stavební pozemky extra třídy! V nejlepší lokalitě a s dechberoucím výhledem na nádherný hrad Güssing!
Güssing nabízí budoucnost bezpečný, cenově dostupný a energeticky nezávislý život v přírodě, což činí investici do nemovitosti tam strategickým aktivem.
Proč Güssing
Průkopník energetiky a udržitelnosti:
Město je energeticky soběstačné a mezinárodně uznávané.
Vysoké pokrytí (více než 85 %) regionálním biomasovým dálkovým topením vede ke stabilním, dostupným nákladům na vytápění.
Cenově dostupné ceny nemovitostí:
Ceny jsou ještě výrazně výhodnější než v rakouském průměru, což umožňuje splnit sen o vlastním domově s prostornými pozemky.
Silná infrastruktura a kvalita života:
Jako předměstská oblast zaručuje Güssing krátké vzdálenosti a nejlepší dostupnost služeb.
Plánované velké investice:
Nový vzdělávací kampus a moderní zdravotní centrum (od roku 2026).
Kulturní centrum (hrad Güssing) a blízkost lázní.
Plné otevření S7 přináší významné výhody pro Güssing a jeho obyvatele:
Rychlejší spojení s aglomeracemi: Rychlostní silnice výrazně zkracuje dobu cestování na dálnici A2 jižní, čímž se cestovní časy do Grazu a Vídně výrazně zkracují.
Odlehčení regionu: Přesměruje průjezdovou dopravu, která dříve zatěžovala obce jako Fürstenfeld a Rudersdorf, na novou trasu.
Ekonomické impulzy: Nové napojení, mimo jiné přes výjezd u Rudersdorf/Dobersdorf a blízkost spojnici u Königsdorf, posiluje Güssing jako předměstí a ekonomické centrum díky lepší dostupnosti a podpoře nových průmyslových parků.
Hodnotová stabilita a potenciál rozvoje:
Cílené obecní investice do infrastruktury, oživení centra města a technologického centra zajišťují dlouhodobou hodnotovou stabilitu nemovitostí.
Obecní strategie se zaměřuje na zvládnutí demografických výzev a etablování Güssingu jako atraktivního místa pro bydlení i podnikání.
Cílová skupina
Rodiny, které hledají budoucnost, bezpečí a přírodu, ale i ti, kteří kladou důraz na nízké náklady na energii a ekologickou odpovědnost.
Další pozemky v:
Pozemek, 8323 Kohldorf: Stavební pozemek se spoustou slunce ve východoštýrském kopcovitém kraji, 15 km od Grazu!
Velikost: 758 m² Kupní cena: 66 000 €
Pozemek, 8323 Kohldorf: Slunný stavební pozemek v Kohldorfu, 15 km východně od Grazu!
Velikost: 787 m² Kupní cena: 69 000 €
Pozemek, 8311 Markt Hartmannsdorf: Plně připravený, slunný stavební pozemek v Markt Hartmannsdorf
Velikost: 920 m² Kupní cena: 53 000 €
Pozemek, 9335 Lölling Graben: Stavební pozemek s pohádkovým výhledem do malebného karntského horského prostředí
Velikost: 1 001 m² Kupní cena: 50 000 €
Pozemek, 8075 Hart bei Graz: Slunný pozemek před branami Grazu
Velikost: 1 980 m² Kupní cena: 475 000 €
Pozemek ke koupi v Stainzu: Slunný pozemek na okraji Stainzu
Velikost: 825 m² Kupní cena: 149 000 €
Mezi vlastníkem pozemku a stavitelem domu neexistuje žádné ekonomické propojení.
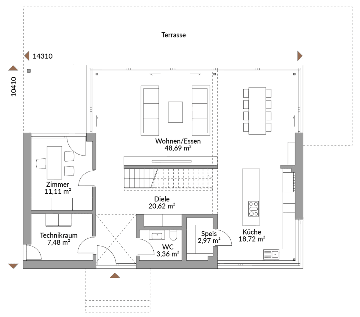
VISION Klíčový dodací stav a specifikace služeb – domy na základové desce!
Rozsah služeb
STROPNÍ VÝŠKY: Přízemí 3,05 m, podkroví 2,67 m
Technika:
Technika, která usnadňuje bydlení
Technologický balíček Today 3BL kombinuje moderní technologii tepelného čerpadla s prostorným zásobníkem teplé vody a inteligentním ventilačním systémem.
Výsledek: domov, který se automaticky postará o příjemné vnitřní klima – teplý v zimě, svěží v létě, efektivní po celý rok.
Podlahové vytápění zajišťuje útulné teplo v každém pokoji, zatímco centrální ventilace s rekuperací tepla šetří energii a zároveň zajišťuje stálý přísun čerstvého vzduchu.
Technologický balíček dokonale spojuje komfort, efektivitu a budoucí bezpečnost.
Sanitární vybavení:
• Sprcha – bezpečná, pohodlná a ideální pro děti i dospělé
• Zavěšená toaleta – snadno se čistí, hygienická, vhodná pro rodiny
• Umyvadlo
• Vysoce kvalitní armatury – odolné, snadno ovladatelné, teplotně stabilní
• Volitelně dle modelu:
– Vaň – ideální pro děti, relaxaci nebo společné večerní rituály
– Dvojité umyvadlo – žádné zhony v ranní špičce
– Podhledové armatury – bezpečné, elegantní, snadno se čistí
Vše je navrženo tak, aby usnadnilo každodenní život a zároveň dlouhodobě zůstalo krásné.
Malířské práce:
Stěny a stropy – připravené k nastěhování. Všechny vnitřní stěny a stropy jsou provedeny ve standardním stavu klíčové dodávky. To znamená:
• Hladké, zrobené a obrývané povrchy
• Bílá finální úprava vysoce kvalitní disperzní barvou
• Čistý, jednotný vzhled ve všech obytných prostorech
DANWOOD dodá již hotový povrch
• Žádné viditelné spáry nebo přechody díky průmyslové preciznosti
Díky tomu je dům ihned obyvatelný, aniž by byly nutné další malířské práce.
Podlahy:
Obývací a ložnice – teplé, odolné, přívětivé!
Všechny obytné místnosti a ložnice budou vybaveny vysoce kvalitními, nenáročnými podlahovými krytinami, které spojují teplo, komfort a praktičnost každodenního života.
Standardní provedení (dle modelu):
• Vysoce kvalitní designový vinylový podlahový kryt v dřevěné optice
• Odolný, tichý, s příjemným pocitem pod nohama
• Ideální pro rodiny, domácí mazlíčky a každodenní využití
• Harmonické barevné varianty (světlý dub, přírodní dub, šedý dub – dle výběru v Design Center Pinkafeld)
Volitelně:
• Laminát v prémiové kvalitě
• Podlahové krytiny z masivního dřeva (za příplatek)
• Alternativní designové linie (optika betonu, tmavý dřevěný vzhled, teplé přírodní tóny)
Rolety:
Rolety od DANWOOD jsou dokonalým doplňkem k energeticky efektivní stavbě DANWOOD. Chrání v létě před horkem, v zimě udržují teplo v domě a kdykoli zajišťují soukromí a bezpečnost.
S elektrickým ovládáním nebo chytrým řídicím systémem je lze pohodlně a intuitivně ovládat – komfort, který pocítíte každý den.
Stručně řečeno, u DANWOOD jsou rolety volitelné, ale technicky perfektně integrovatelné – elektrické, odolné a ideální pro moderní architekturu.
Poznámka: Všechny ceny domů platí od horní hrany základové desky. Obrázky mohou zobrazovat volitelné speciální vybavení.
V okolí nemovitosti najdete
Stále hledáte to pravé?
Nastavte si hlídacího psa. Nabídky vybrané na míru dostanete souhrnně 1× denně e-mailem. S Premium profilem máte k ruce hlídačů rovnou 5 a když se něco objeví, informují vás obratem.






























