Prodej bytu 4+1 • 90 m² bez realitkyGuineastraße 38 Berlin Wedding Berlin 13351
Atraktivní investice do kapitálu v Berlíně-Wedding – udržovaný, světlem prosvětlený vlastnický byt prodávaný soukromou osobou
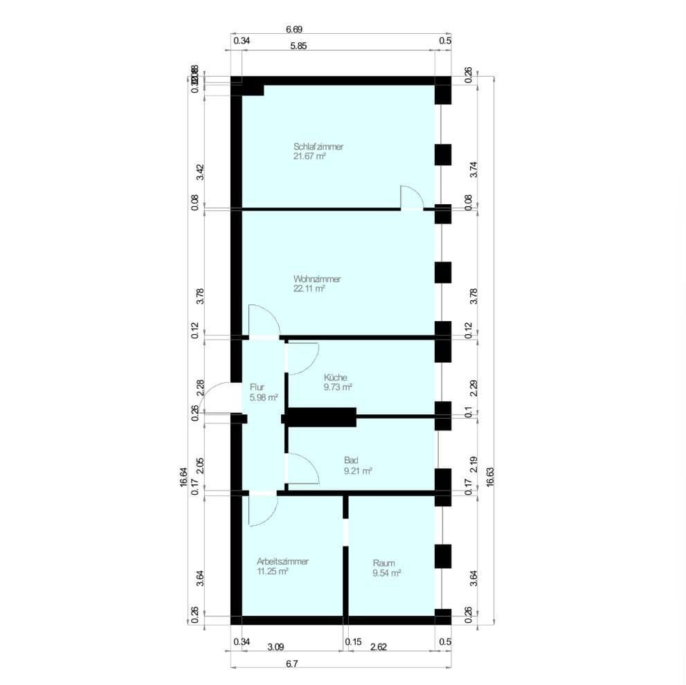
Tento prostorný a světlý vlastnický byt se nachází ve čtvrtém patře udržovaného bytového domu v oblíbené berlínské čtvrti Wedding. Byt vyniká promyšleným dispozicí a kromě vstupní haly, koupelny a kuchyně zahrnuje celkem čtyři další obytné místnosti (viz půdorys). Celkový stav nemovitosti lze označit za udržovaný.
Byt se prodává jako pronajatá investiční nemovitost a nabízí solidní a bezpečný výnos. Roční čistý nájemný příjem činí 6.718,32 €. Stávající nájemní vztah je spolehlivý: od začátku si nájemce řádně plnil své platební závazky a vždy se staral o zachování bytu. Měsíční poplatek do společenství vlastníků činí 374,81 €.
Hlavní přednosti na první pohled:
- Bezpečně pronajatý vlastnický byt
- Udržovaný stav
- Umístění v předním domě
- Čtyři samostatné obytné místnosti
- Okna v téměř každé místnosti (včetně kuchyně a koupelny)
- Vytápění prostřednictvím dálkového tepla
- Velmi dobrá infrastruktura
- Prodej prodávající soukromou osobou bez makléřských poplatků
- Uzamykací lhůta do 05/2026
Ráda/zodpovím případné dotazy. Při vážném zájmu o koupi a po konzultaci s nájemcem je možná prohlídka bytu. Na výslovnou žádost nájemce nebudou zveřejněny žádné vnitřní snímky bytu.
Wedding patří k centrálně situovaným berlínským čtvrtím s dobrou dopravní dostupností do center City Ost a City West. Tato tradiční dělnická čtvrť se proměnila z průmyslově dominované části města v lokalitu moderních služeb, vědy, výzkumu a kultury.
Hlavní centrum kolem ulice Müllerstrasse si díky své pozici udrželo místo v multicecentrickém uspořádání celého města a poskytuje obyvatelům široký výběr obchodů, stánků, kaváren a restaurací. V pěší vzdálenosti jsou snadno dostupná veškerá zařízení pro každodenní potřeby – četné supermarkety, mateřské školy a školy jsou v dostatečném počtu k dispozici v okolí. Čtvrť však již delší dobu získává na prestiži a některé její části patří mezi vyhledávané lokality bydlení v Berlíně.
V okolí nemovitosti najdete
Stále hledáte to pravé?
Nastavte si hlídacího psa. Nabídky vybrané na míru dostanete souhrnně 1× denně e-mailem. S Premium profilem máte k ruce hlídačů rovnou 5 a když se něco objeví, informují vás obratem.











