
Prodej domu 5+1 • 138 m² bez realitkyLeipzig Altlindenau Sachsen 04177
Leipzig Altlindenau Sachsen 04177MHD 1 minuta pěšky • ParkováníV městské, zároveň příjemně klidné lokalitě se nachází tento moderní řadový dům v srdci čtvrti Altlindenau, nedaleko Lindenauer Marktu. Pouze čtyři tramvajové zastávky od centra Lipska se nachází v bezprostřední blízkosti Palmengartenu a Auenwaldu – ideální pro procházky, volný čas a odpočinek. Fotbalový stadion RB a Aréna jsou dosažitelné pěšky.
Dům byl postaven v letech 2015 až 2016 podle energeticky efektivního standardu KfW 70 a byl obýván současnými majiteli od prosince 2016. Ekologická plynová tepelné čerpadlo na zeolit v kombinaci se solární tepelnou jednotkou zajišťuje udržitelnou topnou energii. K dispozici je také vlastní dešťová cisterna, která se výborně hodí k zavlažování zahrady.
Pečlivě upravená zahrada s velkou terasou a zahradním domkem nabízí prostor pro relaxaci. V druhém patře doplňuje nabídku útočišť a večerních paprsků slunce prostorný balkon u rodičovské ložnice.
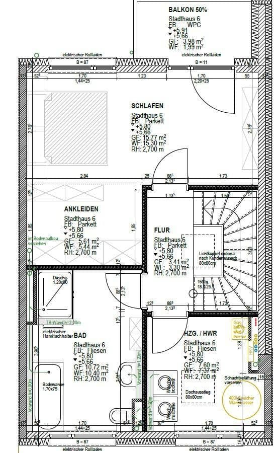
V přízemí se nachází otevřený obývací a jídelní prostor, kuchyň, hostinská toaleta, technická místnost pro připojení domu a praktická skladovací místnost. První patro nabízí tři téměř stejně velké ložnice či pokojíky pro hosty a moderní koupelnu se sprchou a toaletou. Druhé patro tvoří samostatné obytné podlaží s velkou ložnicí, prostornou koupelnou s vanou, sprchou a toaletou a také s domácí hospodářskou místností.
Městský dům zaujme vysoce kvalitním, moderním vybavením: podlahové vytápění ve všech místnostech, elegantní dubové parkety v obývacích prostorech a elektrické rolety v celém domě zajišťují komfort a kvalitu bydlení.
K řadovým domům je přilehlý bytový dům, ve kterém se nachází podzemní parkovací místo. Toto místo je zahrnuto v kupní ceně a spravováno v rámci společenství vlastníků.
Altlindenau se nachází západně od centra Lipska, zasazený mezi Palmengarten a severní Auenwald. Tato čtvrť spojuje městskou atmosféru s historickým kouzlem: impozantní budovy z doby zakladatelské éry zdobí ulice, zatímco bývalé průmyslové oblasti byly kreativně a moderně přestavěny. Čtvrť nabízí vynikající infrastrukturu s různorodými možnostmi nakupování, hospodami a restauracemi, nemocnicí, řadou škol a prostornými parkovými a zelenými plochami v bezprostředním okolí. Kulturně má Lindenau co nabídnout – mimo jiné Hudební komedii, Divadlo Lindenfels na Karl-Heine-Straße a Divadlo Mladého světa.
Pro rodiny je to obzvlášť atraktivní: Malé hřiště se nachází jen několik kroků od domu.
Rozložení místností:
• Obývací pokoj s terasou, přízemí
• Kuchyň, přízemí
• Hostinská toaleta, přízemí
• Sklad s připojením, přízemí
• Komůrka pod schody, přízemí
• Pokoj 1, 1. patro
• Pokoj 2, 1. patro
• Pokoj 3, 1. patro
• Koupelna se sprchou a toaletou, 1. patro
• Ložnice, 2. patro
• Prostorná koupelna s vanou, sprchou a toaletou, 2. patro
• Technická místnost/domácí prádelna s pračkou, 2. patro
• Balkon, 2. patro
Podzemní parkovací místo:
• v přilehlém bytovém domě
Další informace:
• Interně vedený síťový kabel Ethernet 1 GB/s v obytných prostorech
• Elektrické rolety
• Světlík ve schodišti
• Garaž pro kola
• Zahradní domek s elektrickým připojením
V okolí nemovitosti najdete
Stále hledáte to pravé?
Nastavte si hlídacího psa. Nabídky vybrané na míru dostanete souhrnně 1× denně e-mailem. S Premium profilem máte k ruce hlídačů rovnou 5 a když se něco objeví, informují vás obratem.














