Prodej domu 4+1 • 135 m² bez realitkyMarderweg 13, , Bavorsko
Marderweg 13, , BavorskoMHD do minuty pěšky • GarážDer Rohbau des massiv errichteten Bungalows je již dokončen – nastěhujte se a užívejte si pohodlí již v červnu 2026! Udržitelná cihlová konstrukce s monolitickými zdmi zaručuje dlouhodobou kvalitu: Zvenku chrání snadno udržovatelný, prodyšný vápenocementový lehký omítka fasádu, uvnitř zase vápená omítka zajišťuje zdravé a příjemné obytné klima.
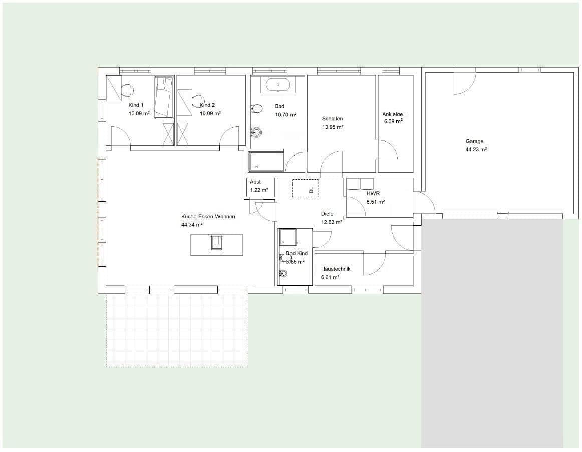
Promyšlený, přízemní obytný koncept nadchne otevřeným obytným, jídelním a kuchyňským prostorem, který přímo navazuje na přívětivý vstupní prostor. Moderní kuchyň s připraveným prostorem pro kuchyňský ostrůvek disponuje praktickou skladovací místností, zatímco technická místnost spojuje obytný dům přímo s dvojitou garáží – pro opravdu krátké cesty v každodenním životě.
Dispozice poskytuje dvě flexibilně využitelné místnosti a zároveň prostornou rodičovskou část se ložnicí, procházetelnou šatnou a vlastní koupelnou. Další koupelna pro hosty je centrálně umístěná v domě. Terasa orientovaná na jih s vysoce kvalitním hliníkovým zastřešením rozšiřuje obytný prostor do venkovního prostředí – ideální pro slunečné chvíle a společenské večery.
Do vybavení patří výkonná fotovoltaická elektrárna (cca 8,19 kWp) a moderní vzduch-voda tepelné čerpadlo pro energeticky efektivní bydlení. Interiérové prvky – od podlahových krytin, přes sanitární zařízení až po vnitřní dveře – lze přizpůsobit vašim představám. Přání ohledně vzorkování lze ještě do konce dubna zohlednit.
Rychlý nástup, moderní technologie a promyšlený design – zde na vás čeká váš nový domov, který dokonale spojuje komfort bydlení, udržitelnost a kvalitu života!
Hledáte kompaktnější obytnou jednotku ve stejné vysoce kvalitní masivní konstrukci?
Od dubna vzniknou dvojdomky v Irchenrieth – od 449 000 €. K nastěhování do konce roku 2026. Rezervace jsou již nyní možné.
Bungalow vzniká v atraktivní nové čtvrti Gleitsweg v Irchenrieth. Obec Irchenrieth oslní excelentní správou a solidní finanční základnou. Lokalita nabízí krátké vzdálenosti k obchodům, školám, jeslím i k lékařské péči. Současně blízkost k Weiden i.d.OPf. a dálnici A6 zajišťuje rychlé spojení s regionálními zaměstnavateli i okolními městy.
Okolí zaujme pečlivě udržovaným obytným prostředím, množstvím zeleně a klidným sousedstvím – ideální pro všechny, kdo hledají komfortní, přízemní obytný koncept.
1. Kvalita prostoru a bydlení
• Stropní výška: více než 2,80 m
• Podlahové topení v celém domě
• Parketová podlaha v obytném prostoru
• Obklady od Villeroy & Boch v koupelnách a funkčních prostorech
• Bezbariérový přístup
2. Okna, dveře a stínění
• Dvě velká posuvná vrata směřující na jih a západ s výškou 2,50 m
• Další dvě bezprahová okna až k podlaze
• Výhradně elektrické rolety s hliníkovým krytem
• Vstupní dveře s výškou 2,30 m
3. Topení, energie a technika
• Bosch vzduch-voda tepelné čerpadlo jako centrální topný systém
• Fotovoltaická elektrárna 8,19 kWp s kovovými taškami Lehmann
• Multimediální rozvodnice s LAN připojením v každé obytné místnosti
• Videointerkom s aplikací a vzdáleným přístupem
• LED stropní svítidla téměř ve všech místnostech, včetně garáže
4. Sanitařní vybavení
• Sanitární vybavení od Grohe
• Program spínačů a zásuvek od Busch-Jaeger
5. Venkovní prostory a garáž
• Dvojitá garáž se dvěma sekčními vraty
• Terasové zastřešení z hliníku
• Dvůr s dlažbou, včetně květinového pásu, orámovaný granitem
• Do fasády integrovaná poštovní schránka
• Dokonale plánovaný pozemek/zahradní plocha
6. Ostatní / Užívací prostory
• Studený podkrovní prostor sloužící jako skladovací místnost s velkým tepelně izolovaným rozklápěcím schodištěm
Individuální možnosti výběru v rámci vzorkování (např. podlahové krytiny až 50 €/m² podle ceníku)
Klíčové údaje:
• Obytná plocha: cca 135 m²
• Pozemek: cca 567 m²
• 3 ložnice
• Šatna: 1
• Koupelny: 1 koupelna en suite + koupelna pro hosty
• Masivní dvojitá garáž
• K nastěhování: červen 2026
JOWI Immo GmbH
Sídlo a registrace: Norimberk, AG Norimberk HRB 44975
Zastoupená svým jednatelem
Josef H. Sechser M. Sc. Real Estate
Ostendstraße 161, 90482 Norimberk
Telefon +49 172 82 56 401
kontakt(at)jowi-immo.de
Povolení dle § 34c odst. 1 věta 1 číslo 3a Obchodního zákoníku (developér)
Dozorný orgán: Průmyslová a obchodní komora pro Mnichov a Horní Bavorsko, Max-Joseph-Str. 2, 80333 Mnichov
V okolí nemovitosti najdete
Stále hledáte to pravé?
Nastavte si hlídacího psa. Nabídky vybrané na míru dostanete souhrnně 1× denně e-mailem. S Premium profilem máte k ruce hlídačů rovnou 5 a když se něco objeví, informují vás obratem.













