Prodej domu 7+1 • 200 m² bez realitkyBreitenfurt Breitenfurt Ost Niederösterreich 2384
Nový
Breitenfurt Breitenfurt Ost Niederösterreich 2384MHD 1 minuta pěšky • GarážCena590 000 €
Přeloženo pomocí AI
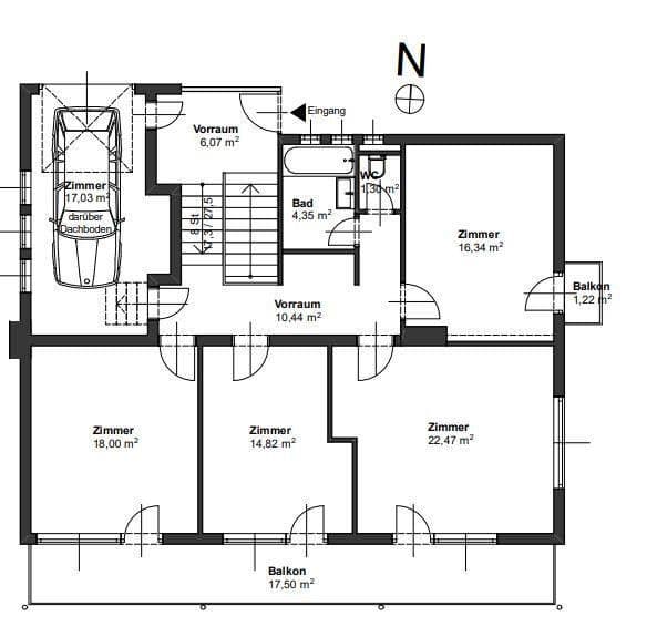
Dům byl v 60. letech navržen a postaven renomovaným architektem a má flexibilní dispozici.
Všechny obytné prostory mají velké skleněné plochy a jsou orientovány na jih.
Pozemek je rohová parcela.
Dům se nachází před branami Vídně s dobrou dopravní dostupností.
Jižní zahradní poloha se starým stromovým porostem sousedí s klidnou vedlejší ulicí.
Přístup, resp. vstup, je umožněn také z této strany.
V okolí nemovitosti najdete
MHDBreitenfurt Laaber Spitz
🚶 50 m (1 min)
PoštaPost Partner 2384
🚶 265 m (3 min)
ObchodHofer
🚘 965 m (2 min)
BankaRaiffeisen
🚶 56 m (1 min)
RestauraceAndi's Pfefferkörndl
🚶 71 m (1 min)
LékárnaWienerwaldapotheke
🚶 160 m (2 min)
ŠkolaVolksschule Breitenfurt
🚘 1 327 m (3 min)
Mateřská školaKindergarten Edlingergasse
🚶 381 m (5 min)
SportovištěHalle des Tennis Clubs
🚶 603 m (7 min)
Hřiště
🚶 547 m (7 min)
Vzdálenost k:
Cena590 000 €
Stále hledáte to pravé?
Nastavte si hlídacího psa. Nabídky vybrané na míru dostanete souhrnně 1× denně e-mailem. S Premium profilem máte k ruce hlídačů rovnou 5 a když se něco objeví, informují vás obratem.




























