Prodej domu 5+1 • 130 m² bez realitky, Dolní Sasko
, Dolní SaskoMHD 4 minuty pěšky • GarážTento upravený řadový dům v venkovském stylu na západním okraji Hannoveru je kompletně s podlahou (plně podzemní sklep) a nabízí s otevřenou obývací kuchyní s krbovými kamny, třemi ložnicemi, kanceláří a sklepem pro volnočasové aktivity spoustu prostoru pro rodinu. Malá zahrádka, garáž s wallboxem (a případně druhá garáž) doplňují nabídku.
Okolí:
– nejbližší supermarket: 550 m
– autobusová zastávka GVH linky 574, 581: 160 m
– konečná stanice metra linky 10 v Ahlem: 1600 m
– mateřská škola přímo v obci
– základní škola v sousední obci
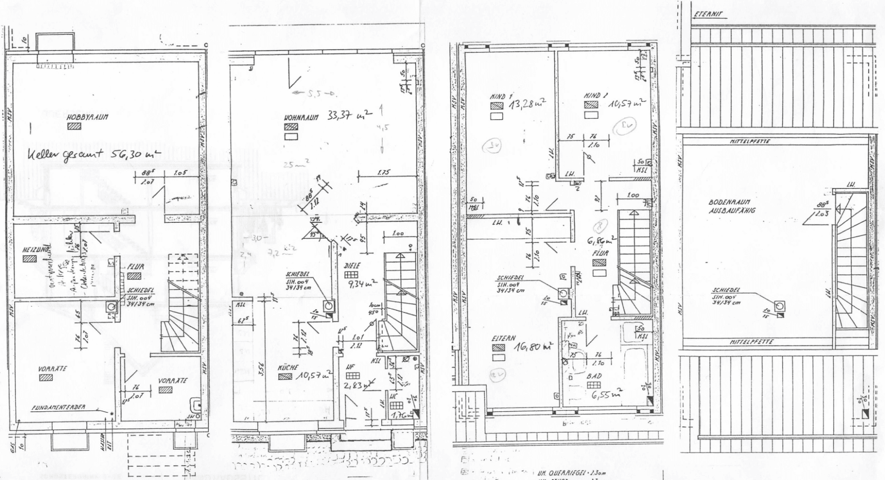
Rozložení a vybavení:
Přízemí: otevřená obývací kuchyně s krbovými kamny, plně vybavená kuchyň, předsíň s návštěvnickým WC
První patro: ložnice, dvě dětské pokoje, koupelna s dvojitým umyvadlem, sprchou a vanou
Podkroví: kancelář nebo pokoj pro hosty se dvěma střešními okny
Plně podzemní sklep s úložnými prostory a sklepem pro volnočasové/oslavné aktivity
Podlahy: bukové dřevěné parkety nebo dlaždice, otevřená dřevěná schodiště spojuje všechna patra
Garáž s elektřinou a wallbox.
Změny/obnovy:
– Krbová kamna z roku 2011, splňují aktuální emisní limity
– Kondenzáční kotel Vaillant EcoCompact z roku 2012 s okružnou smyčkou pro teplou vodu
– Těsnění oken z roku 2018
– Střešní okna Velux z roku 2024
– Terasa z roku 2025
– Zahradní kůlna
V okolí nemovitosti najdete
Stále hledáte to pravé?
Nastavte si hlídacího psa. Nabídky vybrané na míru dostanete souhrnně 1× denně e-mailem. S Premium profilem máte k ruce hlídačů rovnou 5 a když se něco objeví, informují vás obratem.





















