Pronájem bytu 2+1 • 65 m² bez realitkyHauptstr. 31a Olching Olching Bayern 82140
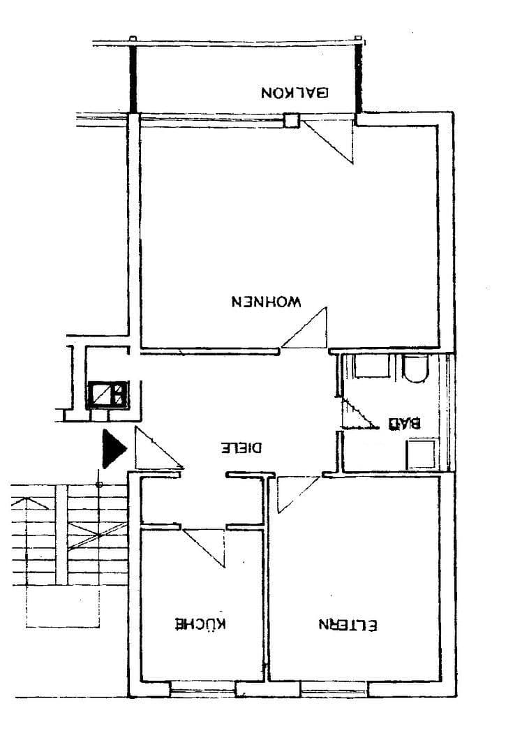
Hauptstr. 31a Olching Olching Bayern 82140MHD 1 minuta pěšky • VýtahByt je nabízen jako nekuřácký a bez zvířat. Světlý a dobře dispozicovaný 2-pokojový byt se nachází v prvním patře rodinného domu v centru Olchingu. K S-Bahn se dostanete jen za pár minut.
Přímo v centru Olchingu se v bezprostřední blízkosti bytu nachází různé obchody. Obecný lékař, lékárna a krátká pěší cesta ke S-Bahn činí tento byt tak jedinečným. Pěšky můžete také dosáhnout rekreační oblasti "Amperauen".
V celém bytě byla položena moderní vinylová podlaha s designem připomínajícím dřevo. V koupelně, která je vnitřní, na vás čekají moderní dlaždice, sprchový kout a přípojky pro pračku i sušičku. Kuchyň není vybavena vestavěnou linkou – to je záležitostí nájemce. Velká okna orientovaná na jih přinášejí do obývacího pokoje dostatek světla, který je propojený se vstupní halou pomocí posuvných skleněných dveří. K dispozici máte také uzamykatelný sklep s elektrickou zásuvkou, který slouží jako skladovací prostor.
Nájemní smlouva je nabízena s minimální dobou nájmu 3 roky s možností prodloužení.
Abychom si o vás mohli předem udělat představu, prosíme o krátký popis z vaší strany. Dotazy typu "mám zájem o byt" bez dalších informací nebudou brány v úvahu.
V okolí nemovitosti najdete
Stále hledáte to pravé?
Nastavte si hlídacího psa. Nabídky vybrané na míru dostanete souhrnně 1× denně e-mailem. S Premium profilem máte k ruce hlídačů rovnou 5 a když se něco objeví, informují vás obratem.







