Pronájem bytu 3+1 • 60 m² bez realitkySt.-Moritz-Str. 2, , Bavorsko
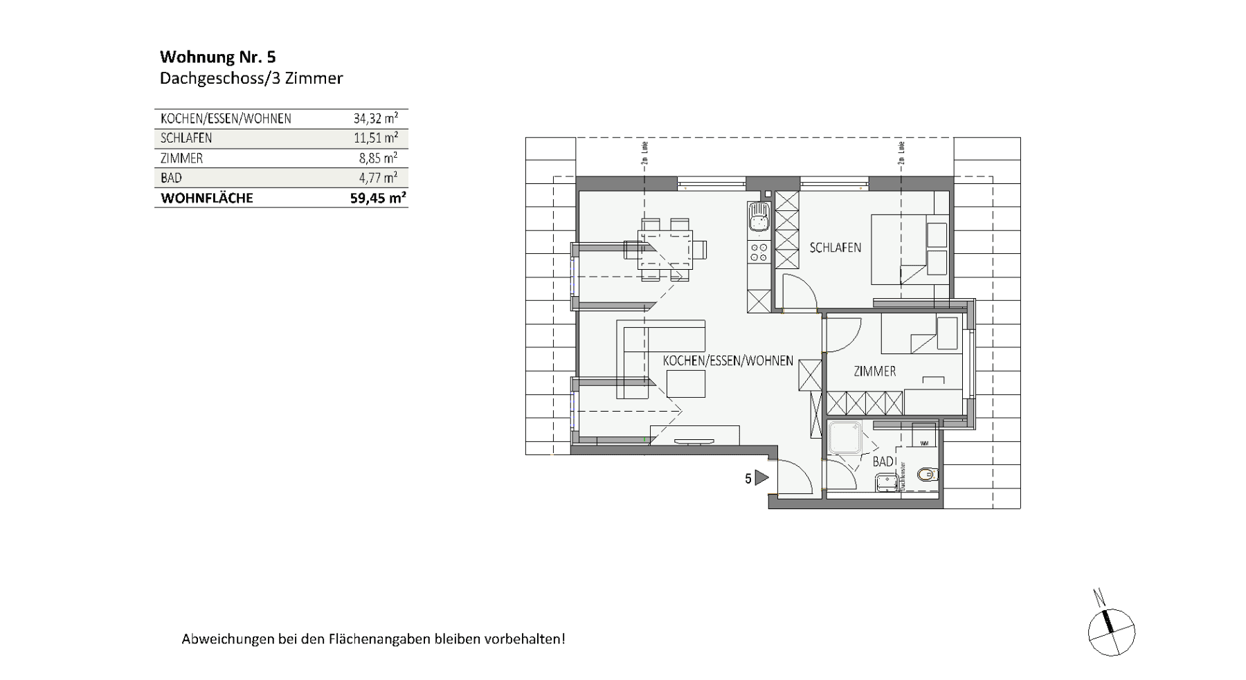
St.-Moritz-Str. 2, , BavorskoMHD 3 minuty pěšky • ParkováníIn venkovském a přírodním prostředí Buchloe-Honsolgen se nachází tento kvalitní 3-pokojový byt v podkroví, který leží ve 2. nadzemním podlaží malého, moderního bytového domu z roku 2024.
Byt osloví promyšleným uspořádáním a světlým, přátelským obytným prostorem. Srdcem bytu je otevřená obývací a jídelní část s prostorem pro krásnou kuchyň, která vytváří příjemnou atmosféru bydlení.
Koupelna je vybavena oknem, moderní sprchou a připojením pro pračku. Další dva pokoje se skvěle hodí jako ložnice, home office nebo pokoj pro hosty.
Byt je ideální pro jednotlivce nebo páry, kteří ocení moderní bydlení v klidné lokalitě s dobrou dopravní dostupností.
Pohodlné parkování je zajištěno na venkovním parkovacím místě v areálu nádvoří.
Nemovitost se nachází v krásné části Buchloe-Honsolgen. Máte všechny výhody bydlení v zeleném prostředí, ale jste zároveň dobře napojeni na centrum Buchloe a i na dálnici A96. Vstup na dálnici A96/Buchloe Ost je dosažitelný za cca 5 minut, což je ideální pro dojíždějící do Mnichova nebo Augsburgu.
Dopravní spojení:
- Mnichov: cca 45 minut
- Augsburg: cca 40 minut
- Füssen: cca 1 hodina
- Landsberg am Lech: cca 10 minut
- Türkheim: cca 14 minut
Místní nádraží v centru Buchloe hraje klíčovou roli v regionální i nadregionální železniční dopravě, s přímými spoji do Mnichova, Augsburgu, Lindau a do Allgäu. Letiště Memmingen je dosažitelné autem za cca 30 minut.
V Buchloe naleznete:
Restaurace, kavárny, zmrzlinárnu, supermarkety, oděvní obchody, čerpací stanice, autoservis, pekárnu, lékárny, hřiště, mateřské školy, základní školu, gymnázium, reálnou školu, střední školu, venkovní bazén, krytý bazén, lékaře, fyzioterapii, zdravotnický obchod, nemocnici, sportovní kluby, hasičský zbor a mnoho dalšího.
Přehled vybavení:
• Monolitná stavba
• Podlahové topení
• Topení: vzduch-voda tepelná čerpadla
• Zařízení na změkčování vody
• Vchodový interkom s kamerou
• Ventilační systém s rekuperací tepla (decentralizovaný)
• Dřevěná izolační okna z larche s trojitým zasklením
• Okenní parapety (uvnitř) z přírodního kamene
• Elektrické rolety
• Designový vinylový podlahový kryt
• Hezké bílé interiérové dveře
• Vstupní dveře bytu: zvuková ochranná třída 3
• Satelitní zařízení
• Koupelna s oknem a připojením pro pračku
• Vlastní přístup na půdu
• K bytu náleží sklepní místnost
• K dispozici je také místnost pro kola pro všechny obyvatele domu
Máte zájem?
Prosíme, zašlete nám písemnou zprávu s vašimi kontaktními údaji a několik krátkých informací o vás.
Pro žádost o pronájem bytu vás žádáme, abyste měli připraveny následující dokumenty (v kopii):
Vyplněný dotazník pro nájemce
Kopii občanského průkazu (obě strany)
Aktuální výpis ze Schufa (nesmí být starší než 3 měsíce)
Výplatní pásky za poslední 3 měsíce nebo odpovídající doklad o příjmech
Poznámky:
- Držení domácích zvířat v nemovitosti bohužel není povoleno.
- Nájemní smlouva bude ve formě stupňovaného nájemného.
- Obrázky odpovídají představám ilustrátora. Skutečné provedení se může lišit od zobrazení. Nábytek slouží pouze k vizualizaci a není zahrnut v nájemném.
Dörfler Bauengineering GmbH
Projektový management – Plánování – Stavba
Senderstraße 15
86854 Amberg
08241/9600236
V okolí nemovitosti najdete
Stále hledáte to pravé?
Nastavte si hlídacího psa. Nabídky vybrané na míru dostanete souhrnně 1× denně e-mailem. S Premium profilem máte k ruce hlídačů rovnou 5 a když se něco objeví, informují vás obratem.







