Prodej kanceláře • 739 m² bez realitkyDönseler Straße 4, , Dolní Sasko
Dönseler Straße 4, , Dolní SaskoMHD 2 minuty pěšky • ParkováníProstorný, zrenovovaný komerční objekt s kancelářskými, ordinčními a výrobními prostory a s příhradovým bytem v Dickelu.
Budova byla postavena v roce 1955 jako školní budova a v roce 2003 kompletně zrekonstruována.
Vyzdvihované vlastnosti:
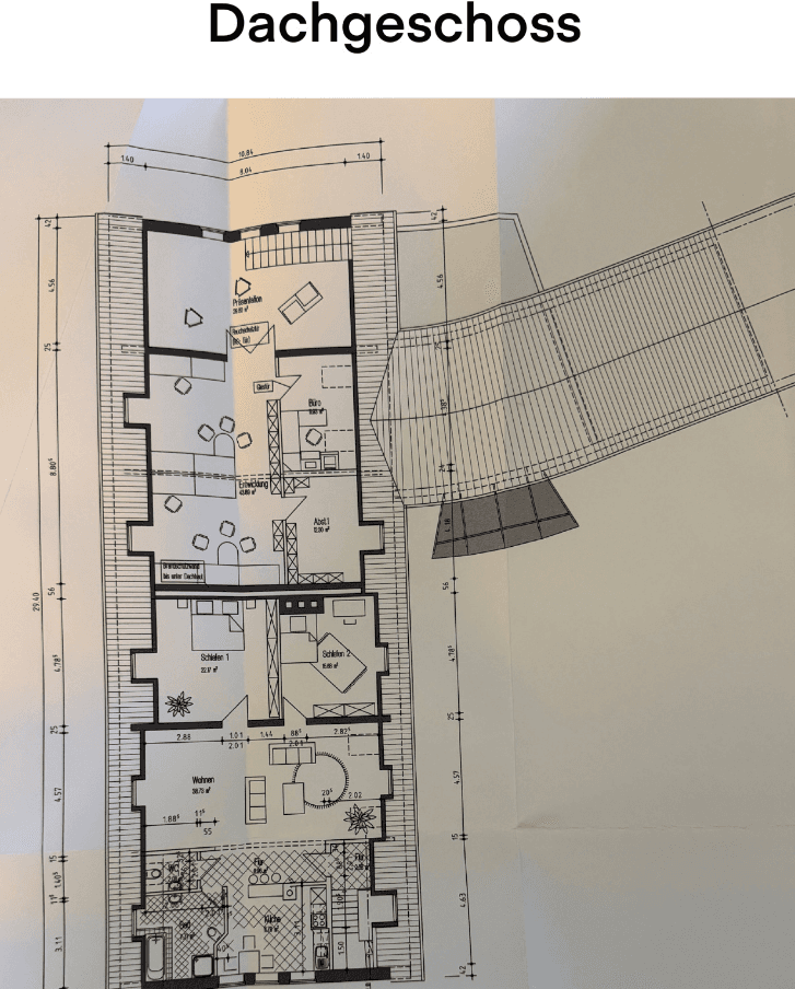
• Přibližně 647 m² kancelářských/ordinčních prostor
• Přibližně 92–107 m² příhradového bytu
• 3 podlaží (sklep, přízemí, patro)
• Centrální topení (plyn)
• 10 parkovacích míst na vlastním dvoře
• Prostorný pozemek o rozloze cca 4 350 m²
• Rentgenově chráněný bunker ve sklepě
• Půda s možností využití
Ideální pro firmy, ordinace, výrobu, laboratoře nebo řemeslné dílny. Flexibilní uspořádání prostor a světlé místnosti umožňují okamžité použití nebo individuální úpravy. Integrovaný příhradový byt je vhodný jako byt pro provozovatele, pro zaměstnance nebo k samostatnému pronájmu.
Objekt se nachází v klidné, venkovské lokalitě v malebné obci Dickel (Dolní Sasko).
Infrastruktura a okolí:
• Přibližně 4 km do Rehden, kde najdete: EDEKA, ALDI, lékárnu, poštovní pobočku
• Mateřská škola a základní škola v blízkosti
• Veřejná doprava dostupná pěšky
• Dobré spojení s městy Barnstorf a Diepholz a s regionálními dálnicemi
• Obklopeno množstvím zeleně, přírody a možnostmi volnočasových aktivit (turistické a cyklistické stezky)
Díky své poloze nabízí klidné pracovní prostředí s dobrou dostupností pro zaměstnance, zákazníky a dodavatele.
Další informace:
• Podlahy: dlaždice, kámen, vinyl
• Sanitární vybavení: vana, hostinský záchod
• Kuchyně: vestavěná kuchyň v příhradovém bytě
• Zvláštnosti: zimní zahrada, terasa, zahrada, sklep, půda, rentgenově chráněný bunker
• Topení: centrální topení, plyn jako zdroj energie
• Parkovací místa: 10 venkovních parkovacích míst
• Stav: zrenovováno a ihned k použití
• Dostupnost: dle dohody
• Rok výstavby: 1955 (rekonstrukce v roce 2003)
• Pozemek: 4 350 m², s možností další výstavby
• Zvláštnost: příhradový byt, půda, rentgenově chráněný bunker
• Využití: kombinace komerčního a obytného využití
• Možnost online prohlídky
Tento komerční objekt nabízí historii, prostor, flexibilitu a rozvojový potenciál – ideální pro firmy, které hledají klidnou lokalitu s dobrou infrastrukturou.
Parametry nemovitosti
| Stáří | Nad 50 let |
|---|---|
| Podlaží | 1. podlaží z 3 |
| Plocha kanceláře | 739 m² |
| Stav | Po rekonstrukci |
|---|---|
| Číslo inzerátu | 999656 |
| Cena za jednotku | 744 € / m2 |
Co tato nemovitost nabízí?
| Sklep | |
| Parkování | |
| Terasa |
| MHD 2 minuty pěšky |
V okolí nemovitosti najdete
Stále hledáte to pravé?
Nastavte si hlídacího psa. Nabídky vybrané na míru dostanete souhrnně 1× denně e-mailem. S Premium profilem máte k ruce hlídačů rovnou 5 a když se něco objeví, informují vás obratem.
























