Prodej domu • 480 m² bez realitkyEgenhofen Weyhern Bayern 82281
Egenhofen Weyhern Bayern 82281MHD 2 minuty pěšky • Parkování • GarážTady vás čeká něco výjimečného…
Historie se setkává s modernou:
Tento soubor budov pochází z roku 1793 a byl považován za klenot bavorského baroka. Rok vzniku této památky je vyryt do dobře zachované vstupní dveře. Severní přístavba byla provedena přibližně v roce 1976. Původní zámková hostinec se dvěma přilehlými obytnými a hospodářskými budovami se nachází přímo naproti zámku Weyhern.
V roce 2006 skončily 400 leté tradice zámkové hostince. Budova hrozila zchátráním.
V roce 2012 se objevil soukromý kupující, který nemovitost přeměnil na obytnou budovu a s maximálním osobním i technickým úsilím a odpovídající kreativitou ji podle přísných předpisů památkové péče proměnil ve vysněné obytné místo.
Stavba:
Jedná se o masivní zděnou stavbu s konstrukcí střešní konstrukce ve stylu řemeslnické zednictví a krytinou s biberschwanze (nakloněné doští). Polozakopaná budova stojí na obvodovém zcela izolovaném základu a disponuje dvěma plnohodnotnými podlažími i zdvojenou střešní konstrukcí.
Vybavení / Využití:
Nemovitost zahrnuje tři zdivo postavené budovy a několik dřevěných (pří)budov.
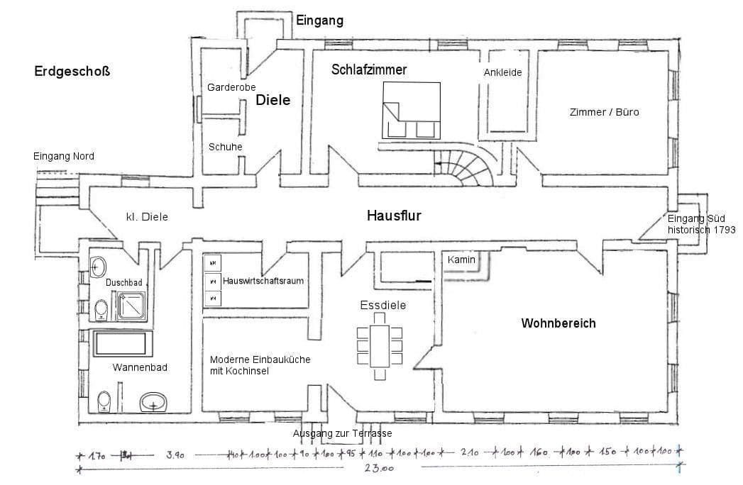
Hlavní budova sama o sobě měří přibližně 23 m x 13,5 m. Historicky restaurované vstupní dveře byly zachovány, ale již nejsou využívány jako vstup. Za nimi se rozprostírá dlouhý chodba s přístupem do pokojů a koupelen. Historické dveře byly vkusně zrestaurovány, stejně jako vnitřní dřevěné schodiště vedoucí do horního podlaží. Bývalá hostinská místnost byla přeměněna na obytný prostor s kamnovým krbem, hospoda, kuchyně a skladovací prostory se proměnily v jídelnu, prádelnu a otevřenou moderní zabudovanou kuchyni s ostrovem a veškerými elektrickými spotřebiči. Dřívější hostinské toalety byly proměněny v prostorné atraktivní koupelny. Přístřešek hlavního vchodu se nyní nachází na východní straně s halou a šatnou.
Horní patro bylo navrženo jako zcela samostatná obytná jednotka, ke které je přístup jak ze schodiště uvnitř, tak zvenčí po dřevěném schodišti s vlastním vchodem. I zde najdete vysoce kvalitní, vkusný design a vybavení. “Obrovský” obytný prostor s otevřenou kuchyní, dále 5–6 pokojů, prádelna a 2 koupelny nabízejí dostatek místa pro velkou rodinu.
Rozlehlá střešní konstrukce není využita jako obytný prostor, ale nabízí spoustu možností využití. Během rekonstrukce byla kompletně zrestaurovaná a nově pokrytá.
Bývalá západní pivnice byla přeměněna na nádhernou víceúčelovou kamennou terasu. Bývalá kuželbahn (kuželová dráha) byla z velké části zachována a dnes slouží jako velmi útulný zahradní dům a úložiště nářadí.
Rozsáhlá přístavba, Remise, nabízí prostorné a variabilně využitelné prostory pro skladu, garáže, dílnu a bývalý koňský stáje, v štítu je průchozí střešní prostor. Ideální konstelace například pro řemeslnické podniky, které potřebují velké vnitřní skladovací prostory, případně pro chov větších zvířat.
Druhý malý přístavek, bývalý hostinský obytný dům, je vkusně upraven a zařízen a použitelný jako vlastní malá obytná jednotka, obsahující obývací pokoj, vnitřní dřevěné schodiště vedoucí do rozděleného střešního štítu, kde jsou umístěny ložnice a dětské pokoje, malá koupelna a kuchyň.
To vše je obklopeno přibližně 7000 m² „parkem“. To umožňuje chov zvířat/koní na vlastní ohradě a také poskytuje mnoho parkovacích stání pro automobily.
Hlavní budova je oplocena („odolná proti úniku“ – ideální např. pro chov psů); zbývající plochy jsou ohraničeny pastvinovými ploty a oploceny.
Kvůli změně orientace majitelů je nemovitost kompletně připravena k nastěhování a na základě dohody prodávána novému nadšenci. Na přání lze dodatečně dodat (části) zařízení včetně kuchyně.
Weyhern / Egenhofen – zelená idyla asi 30 km před západními branami Mnichova
Tento klenot bavorských dějin a dnes jedinečně rekonstruovaná a modernizovaná nemovitost se nachází na západním předměstí Mnichova a je dosažitelná autem za pouhých cca 30 minut po dálnici A8 – výjezd Odelzhausen.
Přímo naproti kompletně zrekonstruovanému a zrestaurovanému zámku Weyhern se nachází tato nemovitost, původní historická zámková hostinec z roku 1793. Idyllicky situovaná podél toku řeky Glonn byla tradiční hostinec s pivnicí až do přibližně před 15 lety oblíbenou a daleko za hranicemi okresu známou destinací pro výlety s gastronomickým zážitkem.
Automobilovým dosahem je to jen přibližně 7 minut do dálnice A8 v Odelzhausen, kde se nachází většina zařízení každodenního života, stejně jako v okolních obcích Egenhofen, Mammendorf, Maisach nebo ve Fürstenfeldbrucku.
Veřejnou dopravou se pohodlně dostanete autobusem 871 (přímo před domem) na S-Bahn v Maisachu.
Nabídka volnočasových aktivit prakticky neomezených možností! Kromě okolních luk a lesů s nekonečnými možnostmi cyklistiky, jízdy na koni nebo turistiky, lákají dva golfové areály a četné sportovní kluby s moderními sportovními zařízeními k celé řadě volnočasových aktivit. Nabídku volného času pak doplňuje celá řada atraktivních podniků různých zaměření, “griabige” pivnice a četná kulturní vyžití v obcích i v kulturním centru u Fürstenfeldburského zámku.
Je snadné poznat, že tato nemovitost je díky své poloze, charakteru a vybavení jedinečná a touží po novém majiteli, který si tuto úroveň ocení.
Je vhodná jak pro rodinný dům, tak jako mezigenerační objekt nebo pracovní/životní rezidence.
Kvalita rekonstrukce a použitých stavebních materiálů, stejně jako vysoce kvalitní vybavení a zařizování, odpovídají díky kompletní rekonstrukci a modernizaci vysokému standardu budovy a vysokým nárokům jejích současných obyvatel.
Při vážném zájmu a s doložením financování vás srdečně zveme, abyste si tuto jedinečnou nemovitost prohlédli. Nemovitost je prodávána výhradně na zakázku prodávajícího a kupujícím je nabízena bez zprostředkovatelského provize od Hanse-Jürgena Stega (certifikovaný odhadce nemovitostí, ZIS Sprengnetter Zert (S), web: steg-projekte.de). Kupující provize není účtována!
Prosím, žádné dotazy od makléřů! Děkujeme.
Parametry nemovitosti
| Stáří | Nad 50 let |
|---|---|
| Číslo inzerátu | 999858 |
| Plocha pozemku | 6 939 m² |
| Cena za jednotku | 5 521 € / m2 |
| Stav | Po rekonstrukci |
|---|---|
| Užitná plocha | 480 m² |
| Celkem podlaží | 2 |
Co tato nemovitost nabízí?
| Sklep | |
| MHD 2 minuty pěšky |
| Garáž | |
| Parkování | |
| Terasa |
V okolí nemovitosti najdete
Stále hledáte to pravé?
Nastavte si hlídacího psa. Nabídky vybrané na míru dostanete souhrnně 1× denně e-mailem. S Premium profilem máte k ruce hlídačů rovnou 5 a když se něco objeví, informují vás obratem.


































