
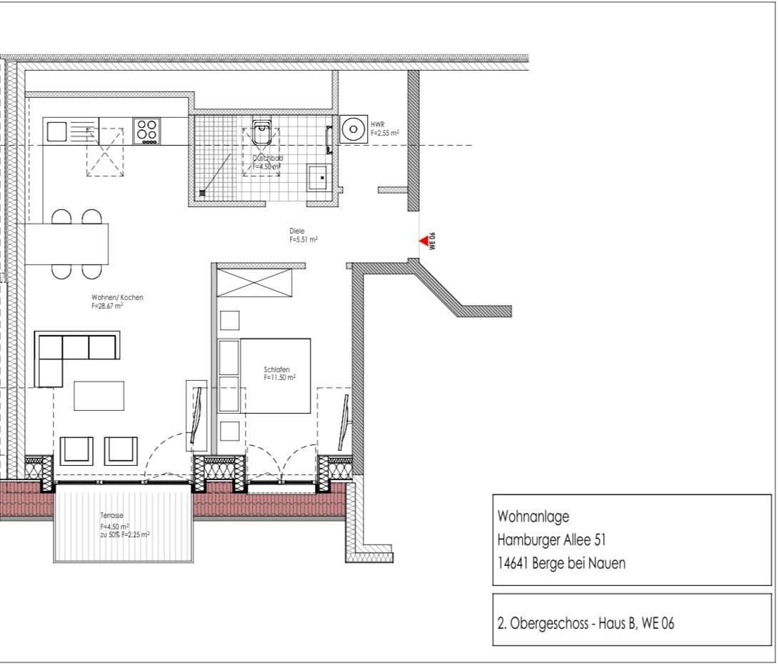
Pronájem bytu 2+1 • 55 m² bez realitkyHamburger Allee 51, , Braniborsko
Hamburger Allee 51, , BraniborskoMHD do minuty pěšky • Výtah • ParkováníV klidné, ale dobře dostupné obci Berge u Nauen vznikla v roce 2025 na bývalém trojstranném dvoře novostavba s osmi byty se dvěma pokoji, které zaujmou moderním, bezbariérovým provedením a energeticky úsporným vybavením. Zvláště senioři a lidé s omezenou pohyblivostí zde naleznou pohodlný domov, který splní veškerá jejich přání.
Přehled aktuálně k pronájmu:
Velikost: 55 m² se dvěma dobře rozvrženými, světlými pokoji
Balkón/Terasa: Balkón sousedící s obývacím pokojem, který zve k relaxaci
Bez bariér: Byt je přístupný bez bariérových překážek, takže můžete pohodlně bydlet bez schodů či prahů
Energetická účinnost: Moderní stavební provedení s úspornou technikou pro nízké provozní náklady a příjemné vnitřní klima
Umístění: Klidné, zelené okolí v Berge u Nauen se spojením na infrastrukturu v Nauen, včetně nákupních možností, lékařů a veřejné dopravy
Vynikající volba pro seniory nebo osoby s omezenou pohyblivostí díky bezbariérovému bydlení, modernímu vybavení a vysoké kvalitě života
Energeticky účinná novostavba s nízkými provozními náklady
Klidná lokalita v Berge u Nauen, přesto velmi dobře propojená s okolím
Moderní vestavěná kuchyně: Byt je vybaven kvalitní vestavěnou kuchyní od regionálního dodavatele
Podlahové vytápění: Ve všech místnostech zajišťuje podlahové vytápění příjemné teplo a komfort
Bezbariérová sprcha: Koupelna je vybavena bezbariérovou sprchou – snadno udržovatelnou a pohodlnou
Výtah: Výtah umožňuje bezbariérový přístup ke všem podlažím
Parkování: Každý byt disponuje vlastním parkovacím místem pro kola a automobily přímo u budovy
V okolí nemovitosti najdete
Stále hledáte to pravé?
Nastavte si hlídacího psa. Nabídky vybrané na míru dostanete souhrnně 1× denně e-mailem. S Premium profilem máte k ruce hlídačů rovnou 5 a když se něco objeví, informují vás obratem.









