
Pronájem bytu 3+1 • 64 m² bez realitkyFrau-Clara-Straße 3, , Šlesvicko-Holštýnsko
Frau-Clara-Straße 3, , Šlesvicko-HolštýnskoMHD 4 minuty pěškyKvalitně zrekonstruovaný penthouse byt s balkonem v centru
K nastěhování od 01.04.2026
Ideální pro jednotlivce nebo páry, kteří ocení stylové bydlení v historicky chráněném prostředí. Díky dispozici je také možná společná bytová dohoda (WG).
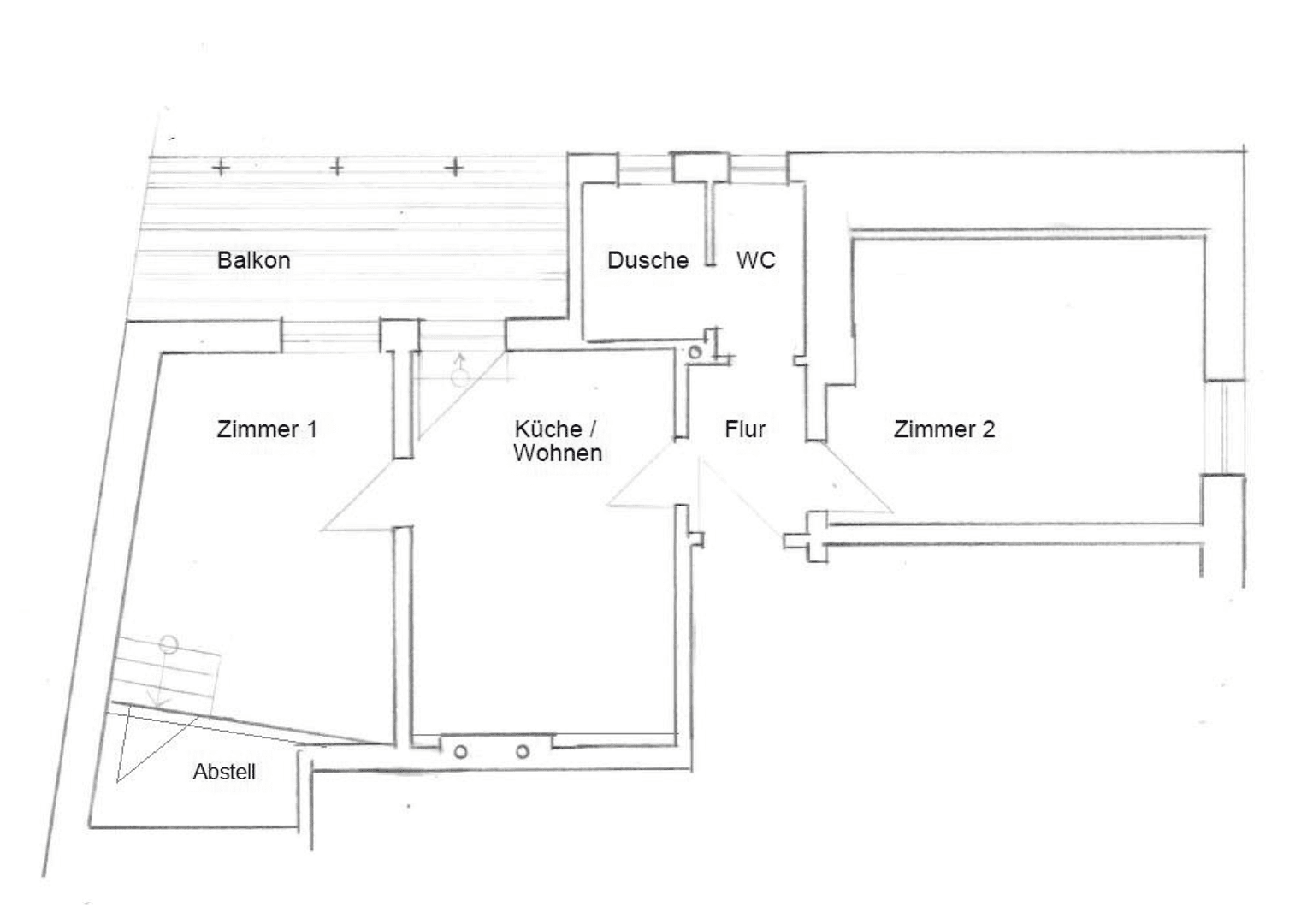
Tento vysoce kvalitně zrekonstruovaný penthouse se nachází v historicky chráněné budově v centru města Eckernförde. Byt se nachází na zadní straně budovy, chráněné před ulicí, ve 3. patře.
Fakta k bytu:
- Prostorná obytná kuchyň
- Nová kompaktní vestavěná kuchyň
- Dva oddělené pokoje
- Slunný balkon (vstup z kuchyně)
- Moderní koupelna se sprchou a oknem
- Připojení pro pračku přímo v bytě
- Rustikální dřevěná podlaha
- Samostatná skladovací místnost
- První nastěhování po kompletní rekonstrukci
- Přibližně 64 m² obytné plochy (podle normy DIN 277)
- Další sklepní místnost
- Parkovací místo není k dispozici.
- V budově není výtah (3. patro)
Ostatní:
- Čištění schodiště probíhá střídavě (každé dva týdny jedno patro)
- Rekonstrukce střechy a fasády budovy je plánována
- Optické vlákno je vedené až do sklepa (zatím není aktivováno)
NÁJEMNÍ PODMÍNKY:
Čistý nájem: 980,00 €
Provozní/vedlejší náklady: 300,00 €
Celkový nájem: 1.280,00 €
Vedlejší náklady zahrnují:
topení, studenou a teplou vodu, odpad, pozemkovou daň, pojištění, zimní údržbu a služby správce domu.
Nájemce musí samostatně uzavřít:
elektřinu, telekomunikace, kabelovou televizi, internet
Kauce:
2 čisté nájmy (1.960,00 €) před předáním klíčů
(Platba převodem, spořicí knížkou/zástavou, pojištěním nebo hotově)
DŮLEŽITÉ PRO PROHLÍDKU:
Prosíme, zašlete nám následující informace, na základě kterých vás budeme kontaktovat ohledně termínu prohlídky:
- Jméno, věk, místo bydlení, případně kontaktní údaje, pokud si přejete být kontaktováni přímo
- Kdo bude byt obývat? (uveďte jméno a věk – u dětí není třeba uvádět jméno)
- Proč se chcete přestěhovat?
- Máte zájem o dlouhodobý nájemní vztah?
- Jste zaměstnáni na dobu neurčitou bez výpovědi?
- Máte i jiné příjmy (důchody, alimenty apod., příjmy z podnikání)?
- Je váš čistý domácí příjem mezi 2.000–2.300 € měsíčně, či je vyšší či nižší?
- Máte nějaké závazky? (např. úvěry, alimenty apod.)? Uveďte prosím jejich měsíční výši.
- Máte domácí mazlíčky? Pokud ano, jaké?
- Schufa výpis
Prosíme o pochopení, že bez zodpovězení výše uvedených otázek a předložení Schufa výpisu vám nemůžeme nabídnout termín prohlídky.
Městská poloha v Eckernförde; k bytu nepatří parkovací místo
DŮLEŽITÉ PRO PROHLÍDKU:
Prosíme, zašlete nám následující informace, na základě kterých vás budeme kontaktovat ohledně termínu prohlídky:
- Jméno, věk, místo bydlení, případně kontaktní údaje, pokud si přejete být kontaktováni přímo
- Kdo bude byt obývat? (uveďte jméno a věk – u dětí není třeba uvádět jméno)
- Proč se chcete přestěhovat?
- Máte zájem o dlouhodobý nájemní vztah?
- Jste zaměstnáni na dobu neurčitou bez výpovědi?
- Máte i jiné příjmy (důchody, alimenty apod., příjmy z podnikání)?
- Je váš čistý domácí příjem mezi 2.000–2.300 € měsíčně, či je vyšší či nižší?
- Máte nějaké závazky? (např. úvěry, alimenty apod.)? Uveďte prosím jejich měsíční výši.
- Máte domácí mazlíčky? Pokud ano, jaké?
- Schufa výpis
Prosíme o pochopení, že bez zodpovězení těchto otázek a předložení Schufa výpisu vám nemůžeme nabídnout termín prohlídky.
V okolí nemovitosti najdete
Stále hledáte to pravé?
Nastavte si hlídacího psa. Nabídky vybrané na míru dostanete souhrnně 1× denně e-mailem. S Premium profilem máte k ruce hlídačů rovnou 5 a když se něco objeví, informují vás obratem.













