
Pronájem bytu 3+1 • 76 m² bez realitky, Šlesvicko-Holštýnsko
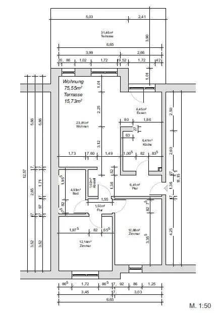
, Šlesvicko-HolštýnskoMHD 2 minuty pěšky • GarážByt o obytné ploše 76 m² se nachází v přízemí vícegeneračního domu z roku 1986 na okraji historické části Eckernförde.
Z terasy o rozloze 30 m² a malého zahrádky je možný široký výhled na Baltské moře a námořní přístav.
Příjezdová cesta byla právě nově dlážděna.
Od vchodových dveří bytu ke bílému pláži Baltského moře je 40 metrů.
Centrum města s veškerým obchodním vybavením je dosažitelné pěšky za 5 minut.
Vzdálenost k městské síni, kde se konají mnohé osobité akce, je rovněž jen 5 minut pěšky.
Byt je částečně zařízený a je vybaven vestavěnou kuchyní.
Všechny stěny byly čerstvě přemalovány.
Povolena jsou pouze menší domácí zvířata – kočky i menší psi jsou vítáni.
V okolí nemovitosti najdete
Stále hledáte to pravé?
Nastavte si hlídacího psa. Nabídky vybrané na míru dostanete souhrnně 1× denně e-mailem. S Premium profilem máte k ruce hlídačů rovnou 5 a když se něco objeví, informují vás obratem.







