
Prodej domu • 240 m² bez realitkyKapellenweg 13, , Bádensko-Württembersko
Na prodej je prostorný rodinný dům v klidné a přírodou obklopené oblasti v Deisslingenu (přímo u lesa). Dům, respektive balkón a terasa, nabízí velmi pěknou jižní orientaci. Celý dům je prosvětlený, okouzluje nádherným výhledem a poskytuje vám západ slunce přímo v obytné části.
Nemovitost se nachází v slepé ulici s dobrou dostupností a malým objemem dopravy – ideální pro vlastníka i investora.
Rodinný dům byl postaven v roce 1968. Nová plastová okna (s dvojitým zasklením) byla instalována ve všech patrech v roce 1999. Dům se prezentuje jako velmi pevně postavený objekt se zdravým základním materiálem a byl průběžně udržován.
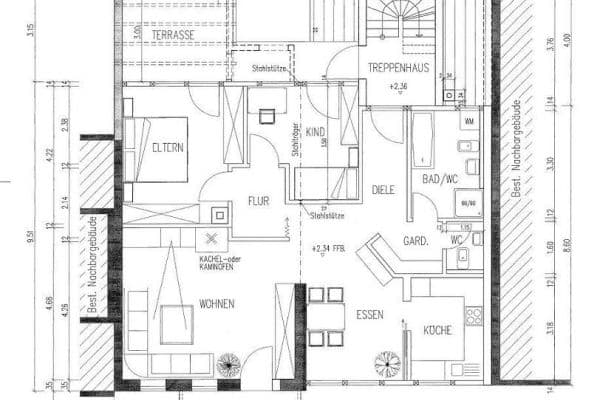
Nemovitost aktuálně zahrnuje 2 obytné jednotky s následujícími plochami:
– Přízemí: samostatný byt o přibližně 80 m² s vlastním vchodem (aktuálně pronajímán).
– 1. patro/Podkroví: prostorný 6+1 pokojový byt o obytné ploše 160 m². Byt dále zahrnuje kuchyň, koupelnu, samostatné WC a velký balkón. Byt je momentálně volný. Podkroví lze v případě potřeby přestavět na třetí obytnou jednotku. V přízemí je k dispozici další velký pokoj, který je přístupný přes byt v 1. patře. Navíc se v suterénu nachází kotelna a místnost pro olejovou nádrž.
Budovu vytápí centrální olejové vytápění. Topenářský systém byl každoročně servisován a již léta funguje stabilně. V červenci 2026 pravděpodobně vstoupí v platnost nový zákon o energetické náročnosti budov (GEG), podle kterého je možný další provoz stávajícího topení. Je tedy zřejmé, že výměna není zákonem vyžadována.
Univerzální dispozice objektu umožňuje různé způsoby využití – čistě vlastní bydlení, vlastní bydlení s možností pronájmu nebo čistě investiční záměr.
Nemovitost se nachází na špičkové lokalitě:
– přímo u lesa,
– v slepé ulici,
– žádný průjezdný provoz,
– velmi klidné okolí,
– slunné místo,
– nádherný výhled.
Parametry nemovitosti
| Stáří | Nad 50 let |
|---|---|
| Stav | Dobrý |
| PENB | G - Mimořádně nehospodárná |
| Plocha pozemku | 910 m² |
| Cena za jednotku | 1 458 € / m2 |
| Dostupné od | 14. 3. 2026 |
|---|---|
| Číslo inzerátu | 1000656 |
| Užitná plocha | 240 m² |
| Celkem podlaží | 3 |
Co tato nemovitost nabízí?
| Balkón | |
| Terasa |
| Sklep | |
| MHD 3 minuty pěšky |
V okolí nemovitosti najdete
Stále hledáte to pravé?
Nastavte si hlídacího psa. Nabídky vybrané na míru dostanete souhrnně 1× denně e-mailem. S Premium profilem máte k ruce hlídačů rovnou 5 a když se něco objeví, informují vás obratem.






