
Prodej bytu 3+1 • 70 m² bez realitkyNeustadter Ring 8 Ludwigshafen am Rhein Maudach Rheinland-Pfalz 67067
Neustadter Ring 8 Ludwigshafen am Rhein Maudach Rheinland-Pfalz 67067MHD 3 minuty pěšky • Výtah • GarážByt se nachází ve 3. patře v bytovém domě s celkem 20 obytnými jednotkami. Dům byl postaven v roce 1995 a je vybaven výtahem. Dále jsou k dispozici podzemní garáž, sklep pro kola a sušárna pro společné využití. K bytu je přiřazeno duplexní parkovací místo v podzemní garáži.
Byt se nachází centrálně v klidné části Ludwigshafen Maudach. V bezprostřední blízkosti jsou lékaři, lékárna, obchody s potravinami, banka a další maloobchodní zařízení. Nejbližší zastávku MHD lze pěšky dojít za 5 minut.
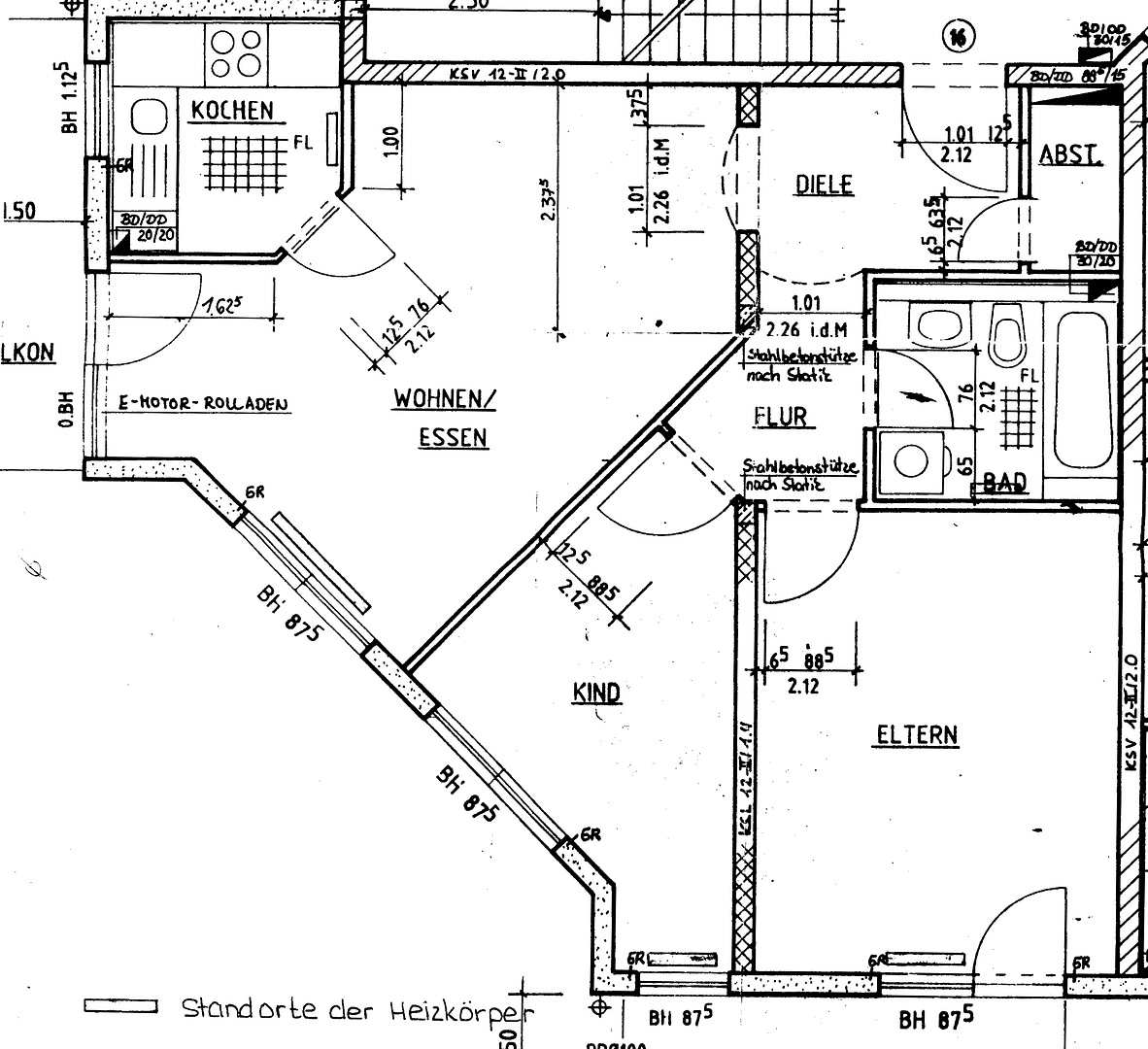
Bytová plocha činí přibližně 70 m². Ze vstupní chodby jsou přímo přístupné tři pokoje, úložná místnost a koupelna. Přes obývací a jídelnu se dostanete do kuchyně. Všechny pokoje i kuchyň mají velká okna, která zajišťují útulné, světlé denní světlo. Zvláštností jsou dva balkony orientované na jih a západ, ze kterých je krásný výhled do Rýnské roviny a do oblasti Vorderpfalz. Obývací-jídelna, kuchyň a koupelna jsou obloženy dlaždicemi, zatímco oba zbývající pokoje jsou vybaveny vinylovými parkety.
V okolí nemovitosti najdete

Prodej bytuFriedrich-Naumann-Str. 12 Ludwigshafen Oggersheim Rheinland-Pfalz 67071- 3+1
- 65 m²
199 000 € + 299 €

Stále hledáte to pravé?
Nastavte si hlídacího psa. Nabídky vybrané na míru dostanete souhrnně 1× denně e-mailem. S Premium profilem máte k ruce hlídačů rovnou 5 a když se něco objeví, informují vás obratem.









