
Prodej bytu 2+1 • 81 m² bez realitkytřída Edvarda Beneše, Hradec Králové - Nový Hradec Králové, Královéhradecký kraj
třída Edvarda Beneše, Hradec Králové - Nový Hradec Králové, Královéhradecký krajČástečně vybaveno • Výtah • Parkování • Sklep 1,8 m² • Lodžie 3,27 m²Tato nemovitost již od 28 509 Kč měsíčně s roční úrokovou sazbou od 4,79 %.
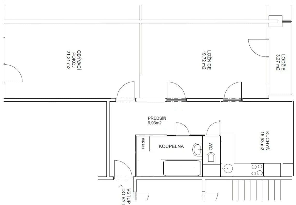
Prostorný byt 2+1 (81 m²) se dvěma lodžiemi – třída Edvarda Beneše, Hradec Králové
Nabízím ke koupi prostorný a světlý byt o dispozici 2+1 s celkovou plochou 81 m², který se nachází ve 3. nadzemním podlaží z celkových 11 v panelovém domě na třídě Edvarda Beneše v Hradci Králové.
Hlavní výhody bytu
• podlahová plocha 81 m²
• dvě lodžie (každá 3,27 m²)
• orientace na východ i západ
• částečná rekonstrukce
• revitalizovaný dům
• sklep 1,8 m²
• parkování před domem
• kompletní občanská vybavenost v okolí
Dispozice a velikosti místností
• pokoj – 21,31 m² (orientace na západ)
• obývací pokoj – 19,72 m² (orientace na východ)
• kuchyně – 15,53 m² (orientace na východ)
• předsíň – 9,93 m²
Byt nabízí prostornou vstupní chodbu navazující na velkou kuchyni a dva samostatné pokoje. Díky orientaci na východ a západ je byt příjemně světlý po celý den. Velkým benefitem jsou dvě lodžie, které poskytují příjemný prostor pro relaxaci a posezení na čerstvém vzduchu.
Součástí bytu je také samostatná toaleta a koupelna s vanou.
Byt prošel částečnou rekonstrukcí (podlahy, zděné jádro, plastová okna, vestavěné skříně) a je v osobním vlastnictví, což umožňuje rychlý a bezproblémový převod.
Dům je ve velmi dobrém technickém stavu a prošel kompletní revitalizací – zateplení, plastová okna, nové vstupní dveře i modernizace výtahů. Budova má energetickou náročnost PENB třídy „C“, což přispívá k úspornému provozu.
K bytu náleží sklep o velikosti 1,8 m² vhodný pro uskladnění kol, sportovního vybavení nebo sezónních věcí.
V bezprostředním okolí domu se nachází kompletní občanská vybavenost – supermarket Albert, Poliklinika III, školy, školky i zastávky MHD.
V případě zájmu mě neváhejte kontaktovat prostřednictvím zprávy na portálu a domluvit si osobní prohlídku.
Parametry nemovitosti
| Dostupné od | 13. 3. 2026 |
|---|---|
| Konstrukce budovy | Panel |
| Vybaveno | Částečně |
| Provedení | Standardní |
| Číslo inzerátu | 1000908 |
| PENB | C - Úsporná |
| Užitná plocha | 81 m² |
| Cena za jednotku | 83 950,62 Kč / m2 |
| Stav | Velmi dobrý |
|---|---|
| Dispozice | 2+1 |
| Podlaží | 3. podlaží z 11 |
| Vytápění | Ústřední |
| Vlastnictví | Osobní |
| Umístění | Klidná část |
| Rizika | Prověřit » |
Co tato nemovitost nabízí?
| Bezbariérový přístup | |
| Lodžie 3,27 m² |
| Sklep 1,8 m² | |
| Výtah | |
| Parkování |
V okolí nemovitosti najdete
Tato nemovitost již od 28 509 Kč měsíčně s roční úrokovou sazbou od 4,79 %.



Prodej bytuBrožíkova, Hradec Králové - Nový Hradec Králové, Královéhradecký kraj- 3+1
- 78 m²
6 390 000 Kč



















