
Prodej bytu 3+kk • 77 m² bez realitkyBenešovo náměstí, Pardubice - Pardubice, Pardubický kraj
Tato nemovitost již od 27 209 Kč měsíčně s roční úrokovou sazbou od 4,79 %.
Nabízíme k prodeji prostorný byt 3+kk o užitné ploše 77 m² na adrese Benešovo náměstí 2446 v Pardubicích, v oblíbené lokalitě Zelené Předměstí (Pardubice V).
Byt se nachází v 1. nadzemním podlaží zděného bytového domu.
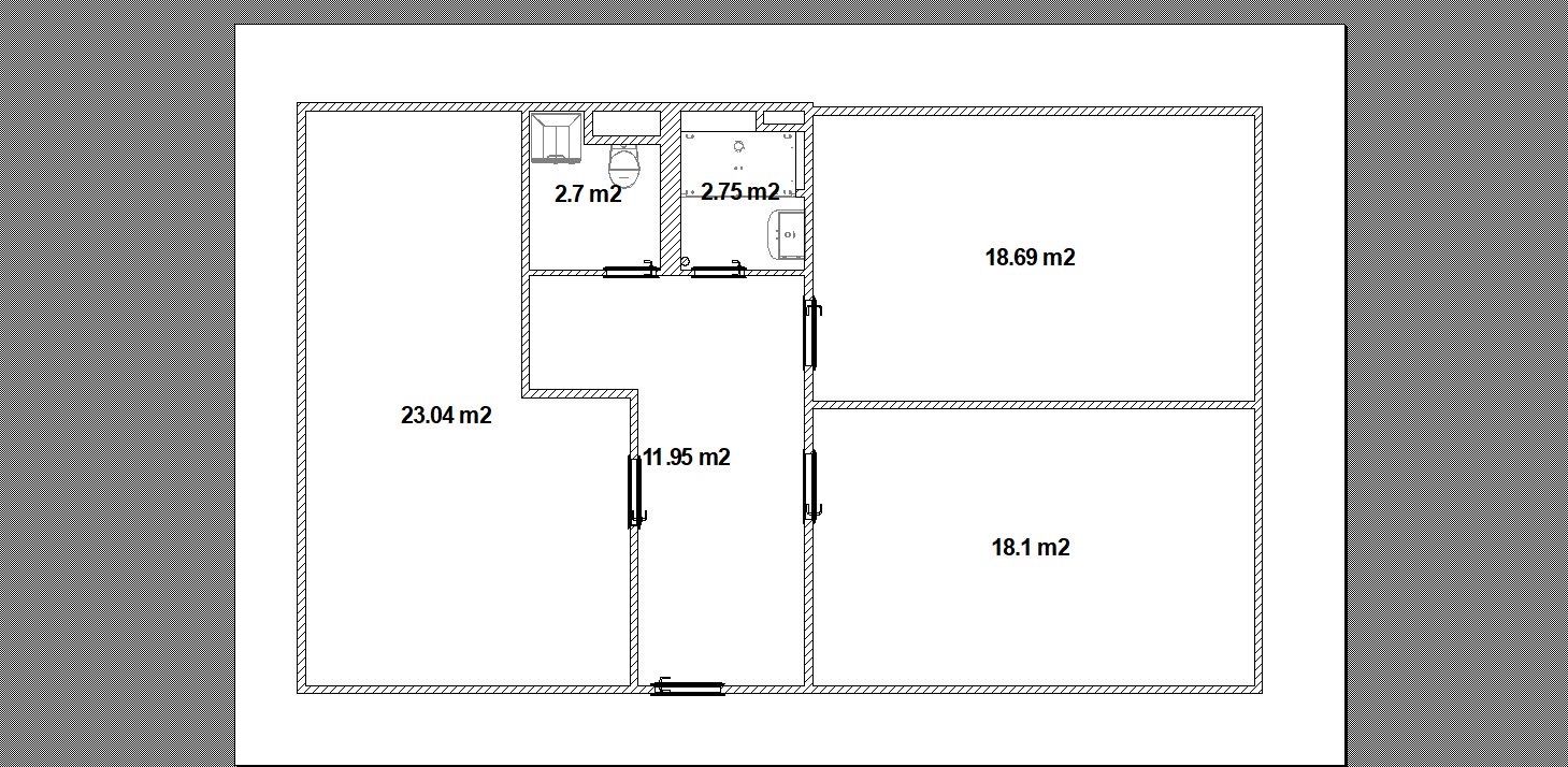
Obývací pokoj s kuchyňským koutem (23 m²) – útulný prostor s dostatkem místa pro jídelní stůl i plně vybavenou kuchyni - kvalitní spotřebiče Bosch (plynová deska, myčka, lednice), dále trouba, mikrovlnná trouba, digestoř a filtrační systém se samostatným vodovodním kohoutkem.
Ložnice (18 m²) – světlá místnost s prostorem pro manželskou postel i plnohodnotný pracovní koutek (ideální pro home office).
Dětský/druhý pokoj (19 m²) – pokoj s možností variabilního využití (dětský pokoj, druhá ložnice či pracovna).
Prostorná předsíň (12 m²) – nadstandardně velká, s místem pro šatní skříň, botník a další úložné prostory. Bezpečnostní vstupní dveře.
Samostatné WC (2,7 m²) a koupelna s vanou (2,75 m²) – praktické oddělení, vhodné pro rodinu.
K bytu náleží dva sklepy (každý o rozměru 2,5 m²), které zajistí dostatek úložného prostoru.
Byt je udržovaný, částečně zařízený (jídelní stůl a židle, sedací souprava zahrnující mj. křeslo a taburet, TV stolek, šatní skříň, závěsy, záclony, pračka a sušička). Okna jsou orientována na východ a západ a jsou vybavena sítěmi proti hmyzu.
Bytový dům je zateplený, s novou střechou a novými stoupačkami. Obyvatelům slouží kolárna, kočárkárna a společná sušárna. Ve dvoře se nachází veřejná zahrada k rekreaci.
Lokalita:
Benešovo náměstí patří mezi nejvyhledávanější rezidenční adresy v Pardubicích. V pěší dostupnosti najdete:
Základní školu Pardubice – Benešovo náměstí (ZŠ „Benešovka")
Mateřské školy, dětská hřiště a parky
Kompletní občanskou vybavenost (supermarkety, lékárny, restaurace, pošta, lékaři)
Zastávky MHD (trolejbus, autobus) s rychlým spojením do centra i na hlavní nádraží
Sportovní vyžití – aquapark, tenisové kurty, cyklostezky podél Labe
Centrum Pardubic je pěšky dostupné do 15 minut.
V případě zájmu nás neváhejte kontaktovat.
Parametry nemovitosti
| Stav | Velmi dobrý |
|---|---|
| Dispozice | 3+kk |
| Podlaží | 1. podlaží z 4 |
| Vytápění | Vzdálené |
| Vlastnictví | Osobní |
| Umístění | Klidná část |
| Rizika | Prověřit » |
| Konstrukce budovy | Cihla |
|---|---|
| Vybaveno | Částečně |
| Provedení | Standardní |
| Číslo inzerátu | 1013317 |
| PENB | C - Úsporná |
| Užitná plocha | 77 m² |
| Cena za jednotku | 84 285,71 Kč / m2 |
Co tato nemovitost nabízí?
| Sklep 5 m² | |
| MHD 4 minuty pěšky |
V okolí nemovitosti najdete
Tato nemovitost již od 27 209 Kč měsíčně s roční úrokovou sazbou od 4,79 %.

Prodej bytuJánošíkova, Hradec Králové - Slezské Předměstí, Královéhradecký kraj- 3+kk
- 64 m²
6 285 000 Kč
Prodej bytuBrožíkova, Hradec Králové - Nový Hradec Králové, Královéhradecký kraj- 3+1
- 78 m²
6 390 000 Kč















