
Prodej bytu 3+kk • 90 m² bez realitky, Hessen
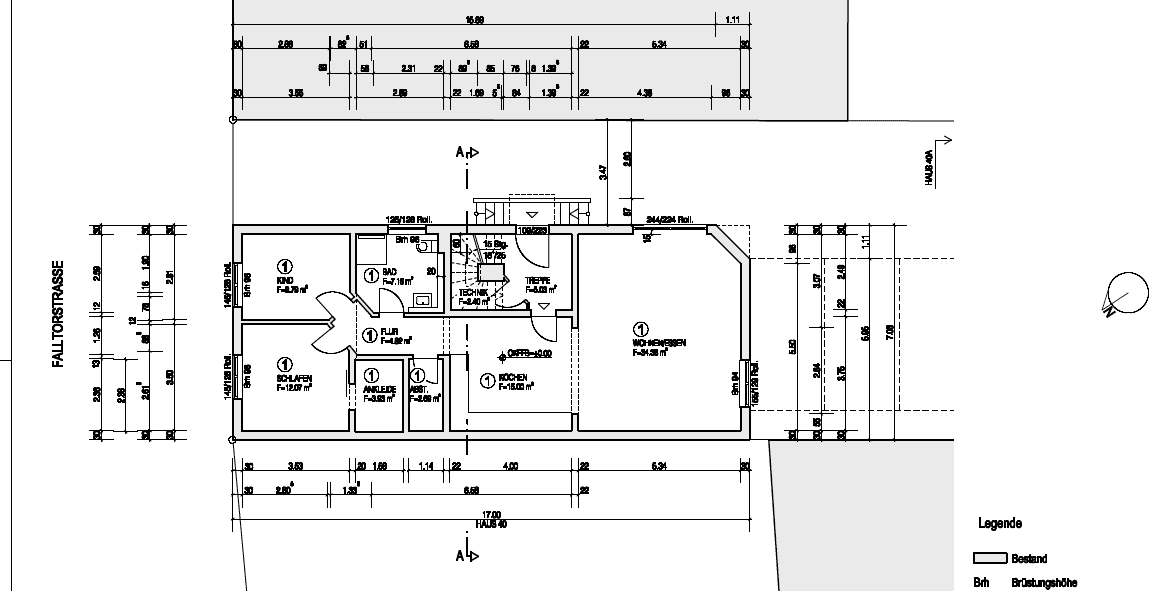
, HessenMHD 1 minuta pěšky • ParkováníTento půdorysový byt v přízemí okouzlí svým promyšleným uspořádáním místností, příjemným přirozeným světlem a pocitem bydlení, který okamžitě nadchne. Je ideální pro páry, malé rodiny nebo investory hledající solidní a hodnotnou investici.
Byt nabízí:
• Prostorné, dobře navržené místnosti
• Příjemnou přízemní polohu – pohodlnou a bez bariér
• Světlé, přívětivé bydlení
• Rozmanité možnosti využití
• KfW Efektivní dům 70
• Energetickou náročnost 20,8 kWh, dům s tepelným čerpadlem třídy A+
• Příspěvek na provozní náklady za poslední 3 roky v průměru cca 160 € měsíčně včetně pojištění budovy
Zde si vychutnáte kvalitu bydlení spojenou s praktičností každodenního života.
Byt se nachází v atraktivní a vyspělé obytné čtvrti Biebesheim am Rhein. Ulice Falltorstraße vyniká svou centrální, ale zároveň klidnou polohou v srdci obce, což nabízí ideální kombinaci vysoké kvality života a praktické infrastruktury. Lokalita se nachází na okraji pole.
Nemovitost je situována v žádané obytné oblasti s vynikající infrastrukturou. Obchody, školy, veřejná doprava i volnočasové aktivity jsou snadno dostupné – ideální pro pohodlný život s krátkými cestami.
Nákupní možnosti: V bezprostřední blízkosti (cca 10–15 minut chůze) se nachází řada obchodů pro každodenní potřeby, včetně moderního obchodu Netto Marken-Discount (Stockstädter Str. 29).
Vzdělávání a péče: Rodiny ocení blízkost Nibelungenschule (základní škola), která se nachází jen pár minut od bytu. Kromě toho jsou snadno dostupné také mateřské školy a radnice.
V centru obce se dále nachází i restaurace a kavárny.
Dopravní spojení – ideální pro dojíždějící:
Biebesheim je výborně napojen na region Rhein-Main a Rhein-Neckar:
• Železniční doprava: Nádraží Biebesheim nabízí pravidelné spoje do Darmstadtu, Frankfurtu nad Mohanem (cesta trvá cca 34–45 minut) a do Mannheima.
• Silniční síť: Díky silnici B44 a blízkým dálnicím A67 a A5 jsou ekonomická centra regionu rychle dosažitelná. Frankfurt i Mannheim jsou vzdáleny přibližně 30 minut jízdy autem.
Volný čas a rekreační možnosti:
Blízkost řeky Rýn a okolních chráněných přírodních oblastí (např. Kühkopf-Knoblochsaue) vybízí k dlouhým procházkám, cyklistickým výletům a volnočasovým aktivitám v přírodě.
Ať už hledáte nové bydlení nebo investici, tento byt v přízemí vám nabízí vynikající kombinaci polohy, komfortu a perspektivy do budoucna.
Vybavení a přednosti – Moderní. Efektivní. Vysoce kvalitní.
Tento byt ohromí vybavením, které nezanechává nic na přání a zaručuje maximální komfort bydlení:
Už při vstupu pocítíte výjimečně prostorný pocit prostoru. Velký obývací pokoj s integrovaným, prostorným jídelním koutem tvoří srdce bytu – ideální pro rodinný život a společenské večery.
Doplňuje ho následující uspořádání:
• samostatná kuchyň
• hostinská toaleta
• dětský pokoj/kancelář
• ložnice s vlastní šatnou
• prostorná koupelna s denním světlem, se sprchou, ručníkovým ohřívačem a vysoce kvalitními armaturami
Technické a energetické přednosti:
• Kompletní podlahové topení ve všech místnostech
• Digitální termostaty pro precizní řízení teploty
• Nízkopříkošový dům třídy A+ – energeticky efektivní a připravený do budoucna
• Trojité izolační okna s vysokou tepelnou ochranou
• Elektrické rolety
• Video domovní zvonek pro zvýšenou bezpečnost
• Datové a síťové kabely vedené v obytných místnostech
Vysoce kvalitní vnitřní vybavení:
• Moderní, vysoce kvalitní klikací vinylová podlaha ve všech místnostech
• Světlá koupelna s denním světlem a stylovou sprchou
• Vysoce kvalitní armatury a promyšlené detaily
• Stav, který umožňuje okamžité nastěhování bez nutnosti rekonstrukce
V okolí nemovitosti najdete
Stále hledáte to pravé?
Nastavte si hlídacího psa. Nabídky vybrané na míru dostanete souhrnně 1× denně e-mailem. S Premium profilem máte k ruce hlídačů rovnou 5 a když se něco objeví, informují vás obratem.




















