
Pronájem bytu 1+1 • 37 m² bez realitkyZenklova, Praha - Kobylisy
Máte o nabídku zájem?
Ušetřete 15 000 Kč na provizi a komunikujte se všemi majiteli.
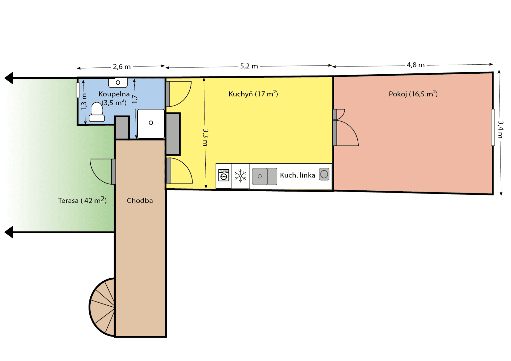
Nabízím k pronájmu útulný a kompletně zařízený byt o dispozici 1+1 a výměře 37 m², který se nachází v 1. patře rodinného domu. Byt tvoří samostatnou bytovou jednotku a nabízí příjemné a klidné bydlení s dostatkem soukromí.
Byt je plně vybavený – k dispozici je kuchyňská linka se spotřebiči, lednice, pračka a koupelna se sprchovým koutem a toaletou. Díky praktickému uspořádání je byt vhodný pro jednotlivce nebo pár, kteří hledají pohodlné bydlení na dobře dostupném místě.
Velkou výhodou je výborná lokalita nedaleko stanice metra Kobylisy. V okolí se nachází veškerá občanská vybavenost, obchody, plavecký bazén i parky pro volnočasové aktivity a relaxaci.
Pouze česky mluvící nájemníci, nekuřáci.
V okolí nemovitosti najdete
Máte o nabídku zájem?
Ušetřete 15 000 Kč na provizi a komunikujte se všemi majiteli.
Stále hledáte to pravé?
Nastavte si hlídacího psa. Nabídky vybrané na míru dostanete souhrnně 1× denně e-mailem. S Premium profilem máte k ruce hlídačů rovnou 5 a když se něco objeví, informují vás obratem.
















