
Pronájem domu 5+1 • 153 m² bez realitkyBoschstraße 6 Heldenstein Heldenstein Bayern 84431
Tento vysoce kvalitní a zcela sklepový dům postavený z masivního materiálu spojuje dvě zrcadlově symetrické bytové jednotky, každá s obytnou plochou 153 m². Jedna jednotka je orientována směrem na jihozápad, druhá na jihovýchod – obě zaujmou moderním komfortem bydlení a promyšlenou dispozicí.
Každá jednotka disponuje vlastním vchodem, štědrým zahradou a slunnou jižní terasou – přesně ve stylu dvojdomku.
Obě jednotky jsou momentálně ve fázi dokončování a budou k dispozici k pronájmu od 01.06.2026.
ZVLÁŠTNOSTI
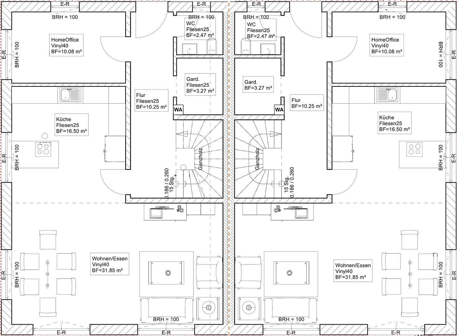
· Prostorný obývací a jídelní prostor s otevřenou kuchyní (48 m²) – ideální pro život a vaření
· Krásný střešní krov z impregnovaného smrkového dřeva se střešním oknem – vytváří teplou atmosféru a přirozené světlo
· Energetická třída A+: moderní tepelné čerpadlo, podlahové vytápění a fotovoltaická instalace s volitelným modelem nájemcovského proudu (GGV)
· Centrální ventilační systém s rekuperací tepla – zajišťuje čerstvý vzduch po celý rok, ideální pro alergiky
· Vestavěné LED reflektory v kuchyni, vstupní hale, šatně a hostinském WC
· Elektrické žaluzie na všech oknech – s možností ovládání přes aplikaci
· Kvalitní vinylové designové podlahy ve vzhledu dubu a velkoformátové dlaždice v béžové barvě
· Příprava pro instalaci wallboxu pro elektromobilitu
· Zařízení pro změkčování vody, které šetří vodu
· Internet přes optické vlákno
· Bez makléřských provizí
PŘÍZEMÍ
Vlastní vstupové dveře na severní straně vás zavedou do světlého předsíně, kterou prakticky doplňuje šatní kout. Přízemí nabízí hostinské WC s denním světlem a bez okrajového okruhu splachovací mikrosítě, stejně jako místnost, kterou lze flexibilně využít podle vašich představ. Z velkého obývacího a jídelního prostoru máte přímý přístup na slunnou jižní terasu.
PODKROVÍ
Otevřené schodiště ve tvaru spirály z lakovaného bukového dřeva vás vede do podkroví, kde střešní okno zajišťuje příjemné denní světlo. Tři ložnice o rozloze cca 15 m² každá vás zvou k odpočinku. Další místnost lze využít flexibilně, například jako šatnu. Koupelna je vybavena velkoformátovými dlaždicemi, vanou, walk-in sprchou s úložnými prostory, dvěma umyvadly a sušičem na ručníky. Bezrámečkové WC dokončuje moderní a nenáročné vybavení.
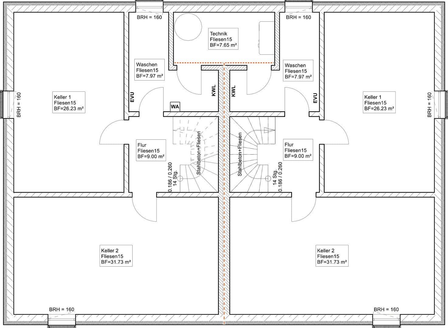
SUTERÉN
Tepelné čerpadlo umístěné ve společné technické místnosti zásobuje obě bytové jednotky teplou vodou a teplem. Zde se rovněž nachází zařízení pro změkčování vody.
Suterén nabízí ke každé jednotce přibližně 75 m² vlastního užitného prostoru, který je kompletně obložen dlaždicemi. Ve společenské místnosti se nachází centrální ventilační systém, odtoková vana a připojení pro pračku a sušičku. Dvě prostorné sklepní místnosti poskytují dostatek úložného prostoru pro vše, co domov obnáší.
TERASA, ZÁHRADA A VJEZD
Venkovní prostory budou dokončeny na konci dubna. Vjezd bude upraven dlažbou. Slunná jižní terasa zve k odpočinku – je vybavena venkovním osvětlením, elektrickým připojením a vodovodním připojením pro zavlažování zahrady. Zahrada nabízí dostatek prostoru pro relaxaci uprostřed přírody:
· Jihozápadní jednotka: cca 155 m² zahrady s 15 m² terasou
· Jihovýchodní jednotka: cca 190 m² zahrady s 15 m² terasou
Dům se nachází v klidné osídlené oblasti. Heldenstein je moderní obec s 3000 obyvateli v okrese Mühldorf am Inn, která spojuje venkovský klid s městskou dostupností.
Díky dálnici A 94 je Mnichov dosažitelný za přibližně 35 minut. Pro ty, kteří preferují vlak, je mnichovský východní nádraží dostupné za cca 60 minut.
Pro každodenní potřeby máte vše na dosah – v obci se nachází EDEKA s řeznictvím a pekárnou, stejně jako útulná hospoda. Sportoviště, jesle, mateřská škola a základní škola jsou místními pěšími vzdálenostmi, což činí Heldenstein obzvlášť rodinným místem. Nedaleké obce Ampfing, Waldkraiburg a Mühldorf navíc nabízejí široké spektrum lékařských služeb, nemocnici, supermarkety, banky, restaurace a mnohem více.
DVEŘE
Hliníkové vstupní dveře s proskleným výřezem jsou vybaveny tlačítkem pro zvonek. Videozvonění je připraveno. Vnitřní prostory domu dotvářejí bílé interiérové dveře, které vytvářejí světlý a přívětivý dojem.
OKNA
Bílá plastová okna a střešní okno s trojsklem zajišťují optimální tepelnou izolaci.
PŘIPOJENÍ
Internetové připojení optickým vláknem se LAN zásuvkami v obývacím pokoji (2×), chodbě, home office a ve všech ložnicích. SAT připojení jsou připravena v ložnicích a v obývacím pokoji.
PODLAHY
Kvalitní vinylový designový podlahový kryt s dubovou texturou se nachází v podkroví, home office a v obývací/jídelní místnosti.
Velkoformátové dlaždice v béžové barvě zdobí vstupní halu, kuchyni, koupelnu a hostinské WC. Schodiště do sklepa i celý sklep jsou kompletně obloženy dlaždicemi.
PARKOVACÍ MÍSTA
Pro každou polovinu domu jsou k dispozici dvě parkovací místa a příprava pro instalaci 11-kW wallboxu.
Těším se na vaši poptávku! Neváhejte mě kontaktovat zprávou.
Důležité:
· Preferujeme nekuřáky, domácí zvířata bohužel nejsou povolena.
· Hledám nájemce, kteří ocení dlouhodobý domov – obě strany se tedy zavazují neukončit nájemní smlouvu po dobu 4 let.
Nájemné: 1760 € za měsíc
Provozní náklady: 280 € za měsíc
Dvě parkovací místa: 50 € za měsíc
Kauce: 5280 € (3 měsíční čisté nájemné)
Makléřské poplatky nejsou vítány.
V okolí nemovitosti najdete
Stále hledáte to pravé?
Nastavte si hlídacího psa. Nabídky vybrané na míru dostanete souhrnně 1× denně e-mailem. S Premium profilem máte k ruce hlídačů rovnou 5 a když se něco objeví, informují vás obratem.





























