
Prodej domu 5+1 • 137 m² bez realitky, Dolní Sasko
, Dolní SaskoMHD 2 minuty pěšky • ParkováníU této nabízené nemovitosti si užijete výhody živého města v bezprostřední blízkosti velkoměsta Hamburk kombinované s rozmanitostí přírody. Tento moderní rodinný dům se nachází blízko centra a díky rozsáhlé parcele nabízí spoustu prostoru. Dům stojí na konci tiché uličky, v třetí řadě.
Rodinný dům byl postaven v roce 2011 regionálními firmami a byl v roce 2012 nastěhován a pečlivě udržován současnými majiteli. Přírodní parcela nabízí prostor pro odpočinek v zeleném prostředí, ale také dostatek místa, kde si mohou děti či domácí mazlíčci hrát a pobíhat.
Tato nemovitost vám nabízí následující přednosti:
• Velký spojený obývací a jídelní prostor s rozsáhlou jižní okenní fasádou, která propouští do domu spoustu světla. Příjemnou atmosféru pak vytváří také krbový kamen.
• Přilehlá kuchyně je moderní a vybavená novými elektrospotřebiči. Otevřený průchod mezi kuchyní a obývací/jídelním prostorem podporuje společné vaření i vychutnávání jídla.
V přízemí se dále nachází prádelna s připojením pro pračku a sušičku. Zde se také nachází akumulátor fotovoltaické elektrárny. Přes tuto část domu získáte přístup do pokojíčku pro hosty či kanceláře a také do koupelny pro hosty se sprchovým koutem.
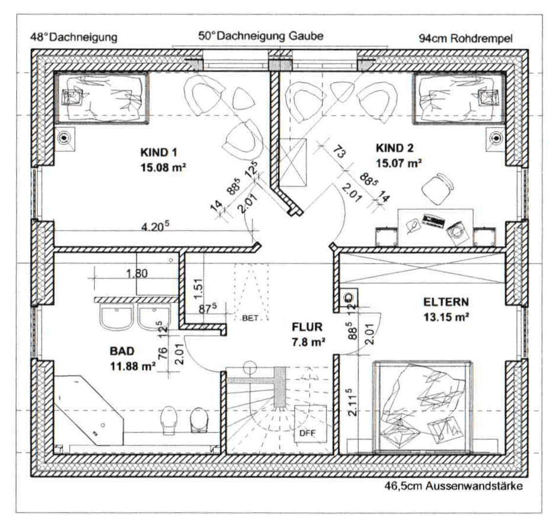
V horním patře domu se nachází tři pohodlné ložnice, které díky klimatizacím nabízejí individuální komfort. Koupelna s denním světlem, prostornou vanou a přístupnou sprchou dokončuje celkové řešení interiéru. Z chodby máte rovněž přímý přístup na půdu, kde se nacházejí další dva vytápěné prostory vhodné jako kancelář, dětský pokoj nebo oblast pro fitness.
Další výjimečnosti:
• Rozlehlá přírodní parcela o rozloze 903 m² nabízející neomezené možnosti využití
• Prostorná jihozápadní terasa k posezení
• Carport s přilehlou kůlnou
• Nabíjecí stanice (wallbox) pro vaše elektrické auto
• Fotovoltaická elektrárna s akumulací
• Podlahové topení v celém přízemí a patře a ručníkovač v koupelně
• Elektricky ovládané rolety
• Disponibilní VDSL připojení až 250 Mbit/s
• Přítomnost potrubí pro optické připojení
Nechte se okouzlit tímto útulným rodinným domem v přírodním prostředí.
Před branami hanzařského Hamburku se nachází Buchholz v oblasti Nordheide. Buchholz má přibližně 40 000 obyvatel v jednotlivých čtvrtích a nabízí zejména rodinám vysoce kvalitní bydlení spolu s širokou škálou volnočasových možností.
Tato nabízená nemovitost se nachází nedaleko centra Buchholzu, které je dosažitelné pěšky za 25 minut. Kromě obchodních možností pro každodenní nákupy najdete také pestrou nabídku volnočasových aktivit, jako jsou golf, tenis a další. Nedaleký městský park v Buchholzu a Lüneburger Heide navíc poskytují řadu příležitostí ke aktivitám, ať už jde o rozlehlé procházky, cyklistické výlety nebo prosté vychutnávání si přírody. Dobrá zdravotní péče je zajištěna díky několika ordinacím, lékárnám a nemocnici Buchholz. Z hlediska gastronomie také Buchholz a okolí nabízí pestrou nabídku. Pro každodenní potřeby jsou k dispozici snadno dostupné supermarkety a diskontní obchody – například Aldi či pekárna jsou dosažitelné během několika minut chůze.
Mateřské školy a školní centrum II Am Kattenberge s gymnáziem a střední školou se nacházejí v bezprostředním okolí.
Nádraží Buchholz je dosažitelné pěšky za 20 minut a umožňuje rychlé spojení do Hamburku, Bremenu a dalších okolních měst. Dále jsou dálnice A1 a A7 dostupné během několika minut, což usnadňuje dojíždění do metropolitní oblasti. Buchholz je tak ideální volbou pro rodiny, milovníky přírody a dojíždějící.
Tato poloha v Buchholzu v oblasti Nordheide nabízí rodinám harmonickou kombinaci bezpečí, špičkové infrastruktury a široké škály volnočasových aktivit – místo, kde děti vyrůstají bezstarostně a rodiče mohou budovat udržitelnou budoucnost.
Při dotazech uveďte, prosím, své celé jméno, aktuální adresu a telefonní číslo.


















