
Pronájem kanceláře • 380 m² bez realitkyDieselstr. 10, , Bádensko-Württembersko
Dieselstr. 10, , Bádensko-WürttemberskoMHD 4 minuty pěšky • Výtah • ParkováníPronajímáme dvě podlaží v exkluzivní kancelářské budově v blízkovéměstské průmyslové zóně Ditzingen, která se vyznačuje vysoce kvalitní a moderní výbavou.
Díky rozsáhlému vybavení nabízejí obě podlaží možnost okamžitého nastěhování a zahájení činnosti. K dispozici je vysoce kvalitní síťová kabeláž, Wi‑Fi a na přání i pracovní počítače.
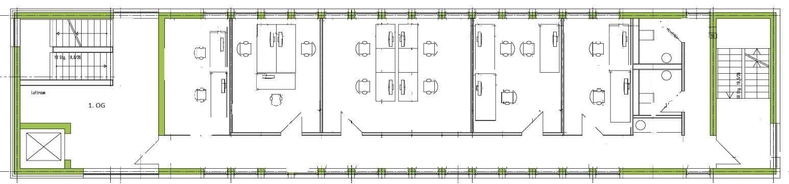
Zvláštní pozornost si zaslouží kvalitní zařizovací nábytek USM Haller, který si můžete převzít – což představuje jasnou výhodu pro vaše zařízení a pracovní komfort. Rozvržení kancelářských prostor přispívá k příjemné, klidné pracovní atmosféře.
Pracovní místa načrtnutá v půdorysu jsou pouze příkladem – rozvržení lze provést individuálně.
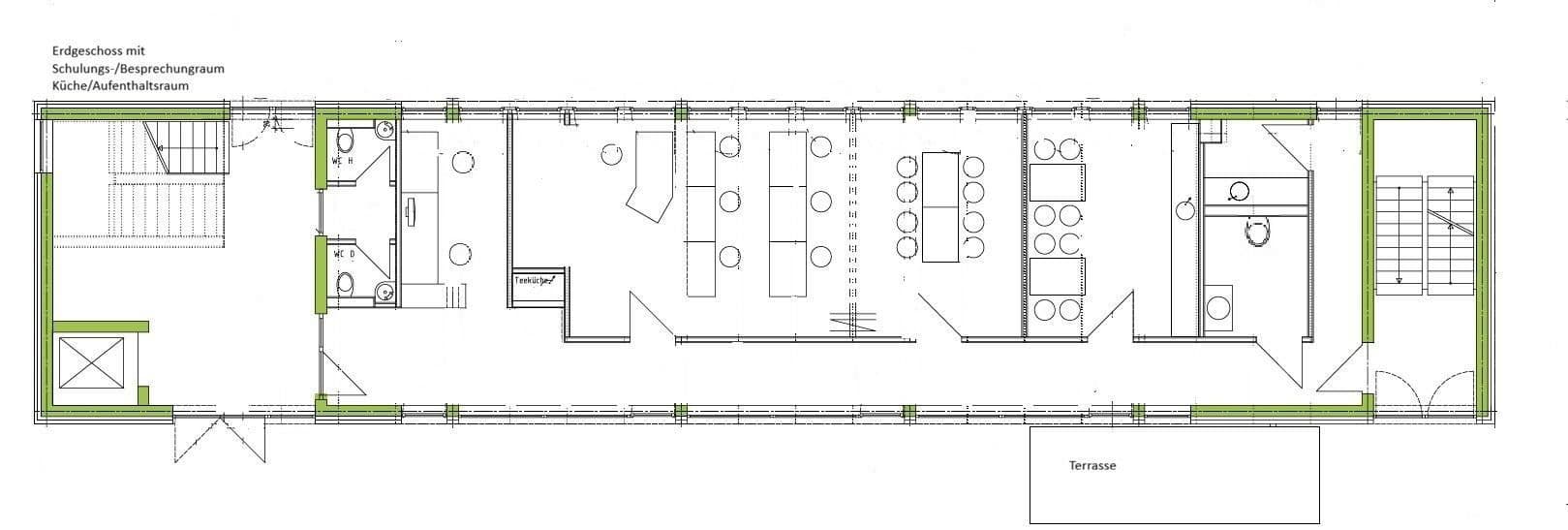
Podlahy jsou opatřeny vysoce kvalitním kobercem a dlažbou, což vytváří profesionální a moderní atmosféru. Plně vybavená kuchyň v přízemí, doplněná o další čajovnu v přízemí a prvním patře, vám nabízí kompletní servis. K odpočinkové místnosti v přízemí náleží také terasa ve zvelebené zahradě.
V přízemí se nachází velká moderní a plně vybavená školící/konferenční místnost, kterou lze rozšířit pomocí variabilní stěny a která je vybavena moderní technikou pro online konference.
Vaše hosty přivítáte v reprezentativní vstupní hale. Přímo před budovou se nacházejí parkovací místa pro automobily a kryt pro kola, což usnadňuje přístup zaměstnancům i návštěvníkům.
Tato kancelářská plocha vám nabízí okamžitě nastěhovatelné, moderní a funkční řešení. Pro ekologičnost a udržitelnost se využívá zemní teplo, fotovoltaické systémy a systém pro zpracování dešťové vody. Lokalita v blízkosti centra Ditzingenu zaručuje optimální spojení s veřejnou dopravou a dálnicemi.
• Vysoce kvalitní, moderní vybavení s jasným a jednotným designem
• Špičková elektronická technika se sběrnicovými systémy a nejnovější IT vybavením
• Moderně vybavená školící/konferenční místnost, kterou lze rozšířit variabilní stěnou
• Dvě konferenční místnosti s velkou obrazovkou pro školení nebo videokonference
• Kompletní IT kabeláž podle nejnovějších technických standardů umožňující okamžitou práci
• Na přání nabízíme profesionální správu vaší sítě a další IT služby
• Moderní a rozsáhlá bezpečnostní opatření na ochranu budovy a pozemku
• Zařízeno designovým nábytkem USM Haller, který lze na přání pronajmout
• Plně vybavená kuchyň plus dva kompletně vybavené kávové koutky v přízemí a prvním patře
• Prostorné terasové plochy v zvelebené zahradě
• Podlahy s vysoce kvalitními koberci a dlaždicemi
• Výtah
• Parkovací místa přímo před budovou, která lze pronajmout
• Kryt pro kola
Parametry nemovitosti
| Stav | Velmi dobrý |
|---|---|
| Plocha kanceláře | 380 m² |
| Číslo inzerátu | 1002412 |
|---|---|
| Cena za jednotku | 0 € / m2 |
Co tato nemovitost nabízí?
| Balkón | |
| Výtah | |
| MHD 4 minuty pěšky |
| Parkování | |
| Terasa |
V okolí nemovitosti najdete
Stále hledáte to pravé?
Nastavte si hlídacího psa. Nabídky vybrané na míru dostanete souhrnně 1× denně e-mailem. S Premium profilem máte k ruce hlídačů rovnou 5 a když se něco objeví, informují vás obratem.















