
Prodej bytu 2+1 • 70 m² bez realitkyUlm Ulm Baden-Württemberg 89075
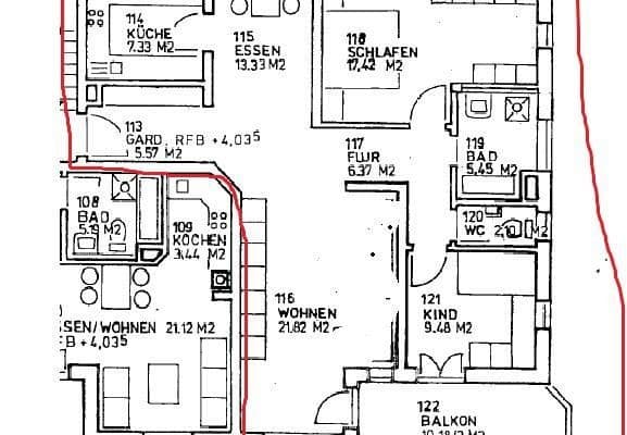
Chcete byt přímo v centru města? A přitom si přejete, aby bylo klidno? Pak je tento prostorný 2-pokojový byt mezi Münsterplatz a Donau přesně to pravé. Dva velmi pěkně navržené pokoje, velká hala a velmi prostorná kuchyň s obývacím prostorem poskytují dostatek místa, kde se můžete cítit dobře. Nemovitost je však zajímavá i pro investory, neboť už je zde jeden nájemník. Tato nabídka je nezávazná. Vyhrazujeme si právo na chybu, předprodej a změny cen.
Roční příjem z pronájmu: 10.200,00 € bez příplatků; 11.400,00 € včetně příplatků
Nemovitost v Theatergasse okouzlí svou prvotřídní, centrální polohou v srdci Ulmu. Jen pár kroků odtud se nachází půvabné historické centrum se svými klikatými uličkami, historickými domy s charakteristickou fachwerkovou architekturou a pestrou nabídkou restaurací a kaváren.
Zvláštním lákadlem je bezprostřední blízkost k celosvětově proslulému Ulmer Münster – s nejvyšší kostelní věží na světě je opravdovým symbolem města a magnetem pro návštěvníky z celého světa. Stejně tak malebná čtvrť rybářů se svými malými mostky, kavárnami a butiky zve k posedávání a relaxaci.
Tato lokalita nabízí vynikající infrastrukturu: obchody pro každodenní potřeby, lékaře, lékárny, stejně jako školy a mateřské školy jsou snadno dostupné pěšky. Navíc je zde vynikající spojení s veřejnou dopravou, díky čemuž jsou všechny městské části i okolí rychle dosažitelné.
Díky blízkosti k Univerzitě Ulm a významným zaměstnavatelům je tato lokalita obzvláště atraktivní pro pracující i studenty.
Samotná Theatergasse se vyznačuje klidnou, přesto centrální atmosférou – ideální pro všechny, kteří chtějí spojit městský život s vysokou kvalitou bydlení.
– Podlahy z masivního dřeva
– Zrenovovaná koupelna v roce 2023 s bezbariérovou sprchou
– V obývacím prostoru je k dispozici připojení optickým internetem
– Byt je vybaven vestavěnou kuchyní
V okolí nemovitosti najdete
Stále hledáte to pravé?
Nastavte si hlídacího psa. Nabídky vybrané na míru dostanete souhrnně 1× denně e-mailem. S Premium profilem máte k ruce hlídačů rovnou 5 a když se něco objeví, informují vás obratem.









