Pronájem bytu 5+1 • 143 m² bez realitkyAugustusburger Straße 54, , Sasko
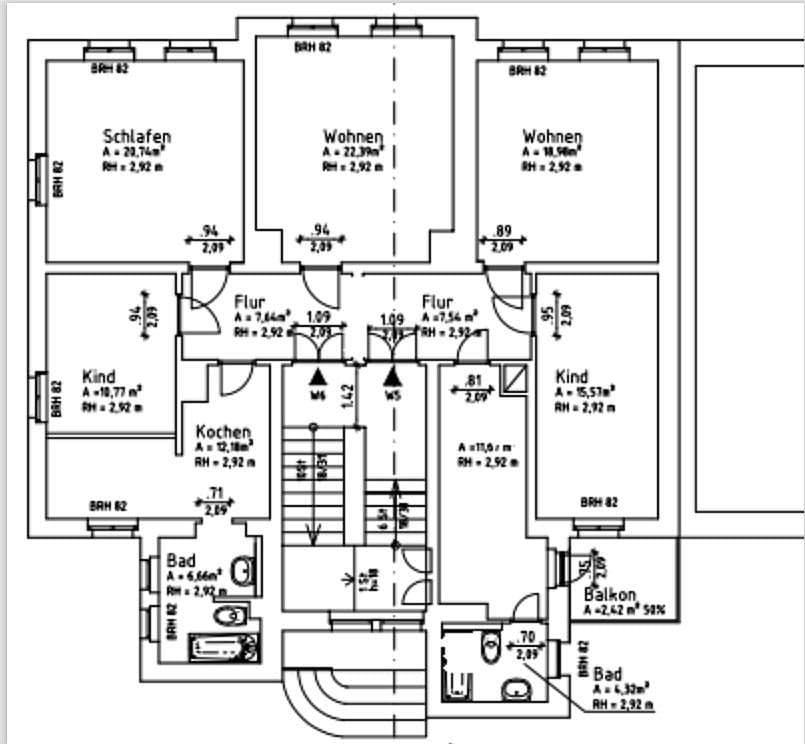
Augustusburger Straße 54, , SaskoMHD 1 minuta pěšky • ParkováníTento půvabný, světlý 5-pokojový byt s obytnou plochou cca 143 m² se nachází v udržovaném obytném domě v blízkosti centra města Flöha. Byt je kompletně zrekonstruován a okouzlí vás svou prosvětlenou, přívětivou atmosférou. Prostorné dispozice zajišťují optimální bydlení pro rodiny, jednotlivce nebo páry, kteří si cení velkého prostoru v blízkosti centra – pro komfortní home office je také dostatek místa.
Byt se dvěma malými, útulnými balkóny se nachází ve 3. patře. Dům disponuje udržovaným exteriérem se zahradou, keři a stromy.
V budoucnu budete bydlet v dosahu "Alte Baumwolle", nového městského centra Flöhy! Čeká na vás perfektně rozvinutá infrastruktura.
Blízkost veškeré občanské vybavenosti:
- Obchodní možnosti v pěší vzdálenosti
- Několik lékařů a lékáren přímo ve městě
Vzdělávání, volný čas a sport:
- Vynikající školský systém – od základní školy až po gymnázium, navíc odborná škola a 2 speciální školy
- Největší mateřská školka v Sasku s cca 380 místy
- Rozsáhlé sportovní aktivity pro mládež a pestrá klubová scéna
- Moderní sportoviště
- Krásné cyklostezky končící v okolí
Velmi dobré dopravní spojení:
- Regionální nádraží: 10 minut pěšky, 3 minuty na kole
- 15 minut autem do Chemnitzu a k dálnici
- 2 autobusové linky v rámci města a několik linek do okolních obcí
- Perfektní dispozice s mnoha individuálními možnostmi úprav
- Energeticky úsporné elektrické topení v celém bytě
- V obytných prostorech a chodbách je pokládán kvalitní laminát (většinou nový)
- Krásná kuchyně
- Pracovna / pokoj pro děti s přístupem na balkon
- Ložnice a dětský pokoj přístupné přímo z chodby
- Vnitřní stěny jsou tapetovány ručně vyvýšenou tapetou a bíle natřeny
- Velmi pěkná a moderně obložená sprcha, bezbariérová sprchová kabinka s oddělením z tvrzeného skla
- Sanitární keramika a armatury renomovaných značek a velké zrcadlo nad umyvadlem
- Další, prostorná koupelna s WC
- Praktická technická místnost s připojením pro pračku přímo v bytě
- Praktický úložný prostor uvnitř bytu
- Kvalitní vnitřní dveře – provedení bílým zakončeným lakem
Veškeré informace k nemovitosti a nájemnímu výši stejně jako velikost bytu vycházejí z údajů vlastníka. Za jejich správnost nepřebíráme odpovědnost. Pokud máte zájem o další nabídky nemovitostí, kontaktujte nás na tel. čísle 03723 – 66750, máme další nabídky k pronájmu.
Podle § 16 EnEV odst. 4 věta 2 jsou stavební památky (včetně souborů) osvobozeny od povinnosti předkládat energetický průkaz.
#Flöha
Klíčová slova:
K dispozici je parkovací místo, počet pokojů: 5, počet koupelen: 2, počet samostatných WC: 1, počet balkonů: 1, umístění: 2. patro, modernizováno: 2023.
V okolí nemovitosti najdete
Stále hledáte to pravé?
Nastavte si hlídacího psa. Nabídky vybrané na míru dostanete souhrnně 1× denně e-mailem. S Premium profilem máte k ruce hlídačů rovnou 5 a když se něco objeví, informují vás obratem.













