
Pronájem bytu 3+1 • 64 m² bez realitkyMagdeburg Stadtfeld Sachsen-Anhalt 39108
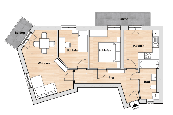
Magdeburg Stadtfeld Sachsen-Anhalt 39108MHD 2 minuty pěškyTento zrekonstruovaný byt se třemi pokoji zaujme světlou a příjemnou atmosférou. Všechny místnosti jsou centrálně přístupné chodbou a nabízejí různorodé možnosti uspořádání podle individuálních potřeb bydlení. Byt se nachází ve čtvrtém patře tichého a upraveného rodinného domu.
Kuchyň je vybavena moderní vestavěnou linkou, která zahrnuje indukční varnou desku, troubu, myčku nádobí i lednici a zároveň ponechává prostor pro individuální úpravy.
Koupelna s denním světlem nabízí kromě připojení pro pračku také kombinovanou vanu se sprchovým koutem a zrcadlovou skříňkou s integrovaným osvětlením.
Kromě prostorného obývacího pokoje a ložnice je k dispozici ještě jedna místnost, kterou lze ideálně využít jako pracovnu, dětský pokoj nebo pokoj pro hosty. Ve všech místnostech jsou již instalována svítidla, která zajišťují příjemné a útulné světlo.
Balkón, který je přístupný z obývacího pokoje, díky orientaci na západ zve k relaxaci a užívání si krásných večerů při západu slunce.
Další úložný prostor poskytuje vlastní sklep. Kromě toho je vhodné využití společné sušárny na prádlo.
Byt se nachází v oblíbené čtvrti Stadtfeld Ost, která svou centrální polohou a vynikající infrastrukturou zaujme. Centrum města, hlavní nádraží i univerzita jsou snadno a rychle dostupné. Tato čtvrť je obzvláště žádaná mezi rodinami, studenty a mladými páry.
Velmi dobrou dostupnost městské hromadné dopravy zajišťují tramvajové linky 3, 4 a 5 a autobusové linky 52, 72 a 73, jež jezdí v bezprostřední blízkosti. Hlavní nádraží je rovněž dosažitelné cca 15 minut pěšky.
V bezprostředním okolí se nachází řada restaurací, kaváren a supermarketů, které jsou dostupné pěšky a výrazně zpříjemňují každodenní život. Také park s jeho zelenými plochami a procházkovými stezkami je vzdálen jen pár minut a zve k odpočinku na čerstvém vzduchu.
Pro řidiče jsou na ulici k dispozici bezplatná parkovací místa.
- Nově položená, vysoce kvalitní podlaha ve všech obytných místnostech
- Moderní, plně vybavená vestavěná kuchyň
- Balkón s osvětlením a stylovými dřevěnými dlaždicemi
- Koupelna s oknem a vanou se sprchovým koutem, plus závěsná zrcadlová skříňka s integrovaným osvětlením
- Stylová svítidla ve všech místnostech zajišťují příjemné světlo
- Prostorný, světlý obývací pokoj s přímým přístupem na balkón
- Prostorná ložnice s příjemnou atmosférou
- Zakrytý stojan na kola přímo před domem pro bezpečné parkování kol
- Vlastní sklep s dostatečným úložným prostorem
- Společná sušárna na prádlo
V okolí nemovitosti najdete
Stále hledáte to pravé?
Nastavte si hlídacího psa. Nabídky vybrané na míru dostanete souhrnně 1× denně e-mailem. S Premium profilem máte k ruce hlídačů rovnou 5 a když se něco objeví, informují vás obratem.


























