
Pronájem bytu 2+1 • 60 m² bez realitkyDělnická, Kolín - Kolín, Středočeský kraj
Máte o nabídku zájem?
Ušetřete 17 500 Kč na provizi a komunikujte se všemi majiteli.
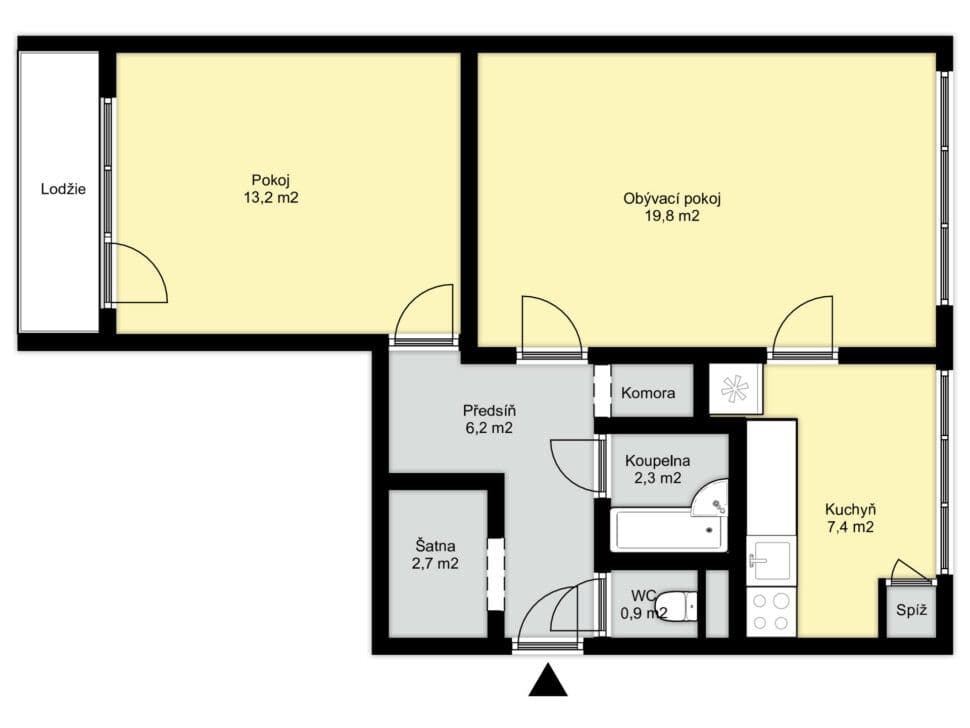
Nabízím k pronájmu byt 2+1 nacházející se v panelovém domě. Byt o rozloze 60 m² se nachází v 6. patře ze 7 a je ve velmi dobrém stavu, momentálně je před dokončením rekonstrukce celého bytu, což zaručuje kvalitní komfort bydlení. Nemovitost je částečně vybavená - nová koupelna a kuchyň na míru včetně spotřebičů.
K bytu náleží balkon o ploše 2,5 m², ideální místo pro ranní kávu či odpolední relaxaci, a také sklep o ploše 2 m², který poskytuje praktický úložný prostor. Budova disponuje výtahem a je přizpůsobena pro bezbariérový přístup, což ocení zejména lidé s omezenou pohyblivostí. Kolárna pro kočárky nebo vaše kola. Výborná dostupnost, 3min chůzí do školky nebo školy, 3min do restaurace u Barborky, 6min do Billy nebo k plaveckému bazénu. Dětský doktor je do 5min. Náměstí v Kolíně 15min chůze, atd...
Pro více informací či sjednání prohlídky mě neváhejte kontaktovat prostřednictvím zpráv na této komunikační platformě. Budu se těšit na budoucí nájemce :)
Parametry nemovitosti
| Dostupné od | 1. 5. 2026 |
|---|---|
| Konstrukce budovy | Panel |
| Vybaveno | Částečně |
| Číslo inzerátu | 1004557 |
| Užitná plocha | 60 m² |
| Stav | Velmi dobrý |
|---|---|
| Dispozice | 2+1 |
| Podlaží | 6. podlaží z 7 |
| Umístění | Sídliště |
| Cena za jednotku | 292 Kč / m2 |
Co tato nemovitost nabízí?
| Balkón 2,5 m² | |
| Sklep 2 m² | |
| Výtah |
| Bezbariérový přístup | |
| MHD 3 minuty pěšky |
V okolí nemovitosti najdete
Máte o nabídku zájem?
Ušetřete 17 500 Kč na provizi a komunikujte se všemi majiteli.



Pronájem bytuChelčického, Kolín - Kolín, Středočeský kraj- 3+kk
- 75 m²
19 500 Kč + 4 500 Kč20 500 Kč
Ušetříte 1 000 Kč

Stále hledáte to pravé?
Nastavte si hlídacího psa. Nabídky vybrané na míru dostanete souhrnně 1× denně e-mailem. S Premium profilem máte k ruce hlídačů rovnou 5 a když se něco objeví, informují vás obratem.



