
Pronájem bytu 3+kk • 54 m² bez realitkyPeštukova, Praha - Veleslavín
Peštukova, Praha - VeleslavínVybaveno • Sklep 3 m²Vyžadováno pojištění odpovědnostiVyžadováno ověření bezdlužnostiMáte o nabídku zájem?
Ušetřete 22 000 Kč na provizi a komunikujte se všemi majiteli.
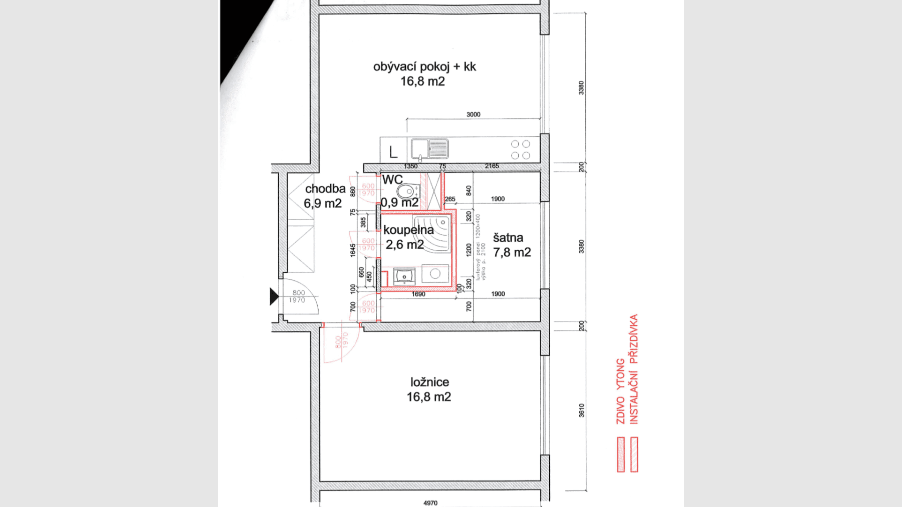
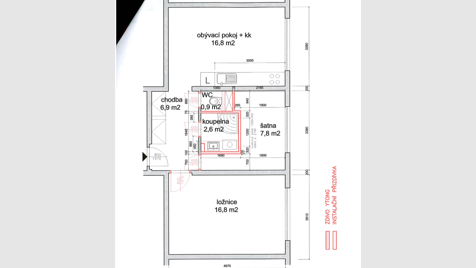
Nabízím k pronájmu moderní a prostorný byt 3+kk o rozloze 54 m² nacházející se v panelové budově o pěti podlažích. Byt se nachází ve třetím patře a je ve velmi dobrém stavu, pravidelně udržován a kompletně vybaven, což zaručuje komfortní bydlení ihned od nastěhování.
Okouzlí Vás promyšlené uspořádání interiéru, které nabízí dostatek prostoru pro volný život i pro stylové zařízení dle Vašich představ. K bytu náleží také sklep o ploše 3 m², ideální pro uskladnění osobních věcí.
Pro více informací a domluvení prohlídky mě prosím kontaktujte prostřednictvím zpráv na komunikační platformě.
I am offering for rent a modern and spacious 3-room apartment with a kitchenette, covering an area of 54 m², located in a five-story panel building. The apartment is situated on the third floor and is in very good condition, regularly maintained and completely furnished, ensuring comfortable living from the moment you move in.
You will be charmed by the thoughtful layout of the interior, which provides plenty of space for a relaxed lifestyle as well as stylish furnishing according to your preferences. The apartment also includes a 3 m² cellar, ideal for storing personal belongings.
For more information and to arrange a viewing, please contact me via messages on the communication platform.
Parametry nemovitosti
| Dostupné od | 1. 8. 2026 |
|---|---|
| Konstrukce budovy | Panel |
| Vybaveno | Vybaveno |
| Provedení | Standardní |
| Číslo inzerátu | 1004569 |
| PENB | C - Úsporná |
| Umístění | Klidná část |
| Cena za jednotku | 407,41 Kč / m2 |
| Stav | Velmi dobrý |
|---|---|
| Dispozice | 3+kk |
| Podlaží | 3. podlaží z 5 |
| Vytápění | Ústřední |
| Vlastnictví | Osobní |
| Rekonstrukce | Kompletní |
| Užitná plocha | 54 m² |
Co tato nemovitost nabízí?
| Sklep 3 m² |
V okolí nemovitosti najdete
Máte o nabídku zájem?
Ušetřete 22 000 Kč na provizi a komunikujte se všemi majiteli.
Stále hledáte to pravé?
Nastavte si hlídacího psa. Nabídky vybrané na míru dostanete souhrnně 1× denně e-mailem. S Premium profilem máte k ruce hlídačů rovnou 5 a když se něco objeví, informují vás obratem.


















