
- 3+1
- 65 m²
V srdci Krefeldu vznikly v roce 2020 nové obytné prostory. Projekt Prinzen Carré se skládá celkem ze 164 bytů a 168 podzemních garážových parkovacích míst.
Krásná zelená plocha spojuje stavby a vizuálně je zhodnocuje. Téměř bezbariérová architektura přizpůsobená vyhledávaným bytovým rozměrům pro starší i mladší obyvatele.
Díky nejnovější energeticky úsporné stavbě podle standardu KFW 40+ vznikají velmi nízké provozní náklady pro budoucí obyvatele Prinzen Carré v Krefeldu.
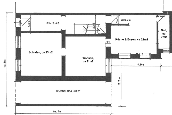
Váš nový byt je absolutně vysoce kvalitně vybaven. Bydlíte zde velmi centrálně a přesto tak klidně. Tento krásný přízemní byt zahrnuje skvělou terasu s částí zeleně, kde si jistě užijete mnoho příjemných chvil.
Kvalitní vinylové podlahy v imitaci dřeva vytvářejí příjemnou atmosferu pro pocit pohodlí. Obzvláště velké množství denního světla, díky oknům od podlahy ke stropu, dodává místnostem další šmrnc.
Trochu luxusu tu přece taky nesmí chybět. Proto versusujeme na příjemné teplo podlahového vytápění a samozřejmě elektrické žaluzie na všech oknech. Navíc je zde plně automatizovaný ventilační systém, který vám nepřetržitě zajišťuje čistě filtrovaný čerstvý vzduch bez energetických ztrát.
Ke každému bytu náleží sklep a na vyžádání také podzemní garážové parkovací místo. Satelitní přijímač vám poskytne bezplatnou televizní zábavu v několika jazycích a navíc máte samozřejmě i připojení kabelové televize.
Společně s ostatními obyvateli můžete využívat místnost pro odložení jízdních kol a jednu z několika společných prádelních. Elektrická kola lze bez potíží nabíjet a jeden z deseti moderních osobních výtahů vás pohodlně dopravil z podzemní garáže do příslušných pater.
V bezprostřední blízkosti městské zahrady Krefeldu si můžete užívat klidné bydlení. Vychutnáte si výhody centrálního života v srdci Krefeldu a budete relaxovat v nedaleké přírodě.
V přímém okolí se kromě obvyklých zařízení pro každodenní potřeby nachází také nemocnice Helios, hlavní nádraží a příjezd na dálnici.
Mateřské školy, všechny možné typy škol i řada dalších sociálních zařízení jsou snadno dosažitelné pěšky nebo na kole.
Byt je pronajímán nevybavený.
Existující kuchyň a další nábytek mohou být po dohodě zakoupeny od aktuální nájemkyně.
• Téměř bezbariérové byty
– Osobní výtah od sklepa/garáže do každého patra
– Okna s trojitým zasklením a zvukovou izolací
– Elektrické žaluzie
– Kvalitní podlahové krytiny
– Podlahové vytápění ve všech místnostech s termostaty
– Síťová kabeláž a satelitní přijímač
– Třikrát zamčené vchodové dveře bytu s domovním interkomem
– Koupelna s umyvadly a bezbariérovými sprchami
– Podzemní garáž
– Sklep
– Prádelna se prostorem pro pračku a sušičku (sdílená)
Rádi se domluvte na nezávazné prohlídce. K tomu prosím využijte možnosti odpovědí v příslušných online portálech. Brzy vám odpovíme.
Všechny údaje v tomto expositu byly zpracovány pečlivě a co nejúplněji. Nicméně nelze vyloučit výskyt chyb, a proto jsou údaje poskytovány bez jakýchkoliv záruk. Rozhodující jsou ujednání uzavřená v nájemní smlouvě. Změny ceny nájmu si vyhrazujeme. Naše nabídka je bez závazku, s vyhrazením chyb a možnosti mezirednání. Obrázky výslovně nezobrazují byt určený k pronájmu – mohou se týkat jiného bytu v domě.
Dotazy od realitních makléřů nejsou vítány!






Stále hledáte to pravé?
Nastavte si hlídacího psa. Nabídky vybrané na míru dostanete souhrnně 1× denně e-mailem. S Premium profilem máte k ruce hlídačů rovnou 5 a když se něco objeví, informují vás obratem.