
Prodej domu 7+1 • 190 m² bez realitkyDarmstadt Arheilgen Hessen 64291
Darmstadt Arheilgen Hessen 64291MHD 1 minuta pěšky • GarážToto dvou rodinný dům s plochou střechou se skládá ze dvou téměř stejně velkých bytů. Už ve vstupní hale je patrné, že dům je dobře osvětlený, solidně postavený a pečlivě udržovaný.
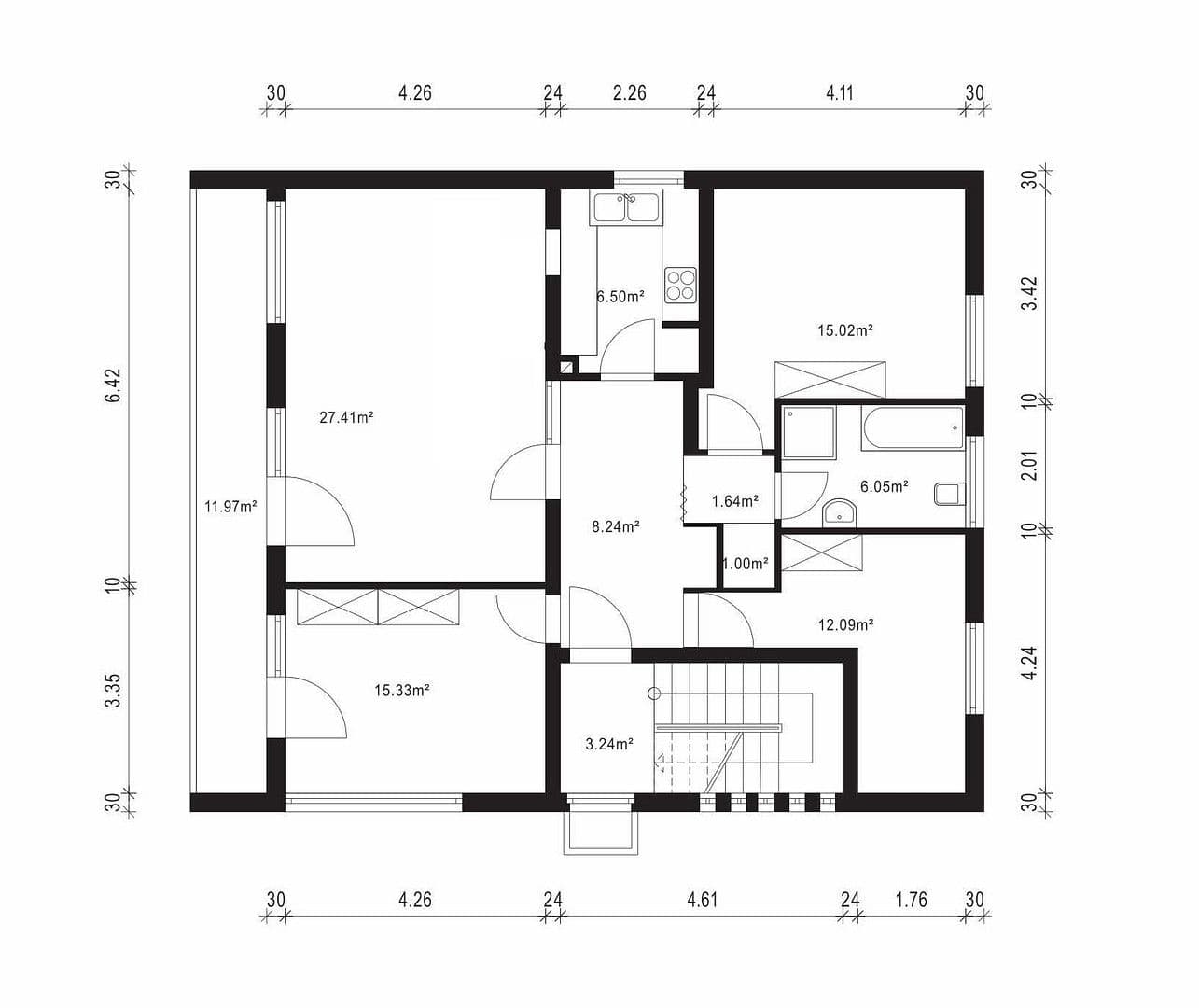
V přízemí se nachází velký obývací a jídelní pokoj s přístupem na terasu a s kamnovou pecí, která zajišťuje příjemné chvíle a slouží jako dodatečný zdroj tepla. Obývací a jídelní část v horním patře je menší, čímž vznikla navíc další velká místnost; obě tyto místnosti mají přímý přístup ke zkleněnému a přístřeškovanému balkonu. Kuchyně mají dostatečnou velikost a v každé se nachází průchozí okno do jídelny. Jsou vybaveny vestavěnými kuchyňskými linkami, které mohou v domě zůstat, pokud si to přejete. Kromě toho se v obou podlažích nachází jedna větší a jedna menší místnost. Koupelna v přízemí je vybavena bezbariérovou přístupnou sprchou, zatímco koupelna v horním patře je zařízena vanou a sprchou.
Sklep je suchý, z větší části obložený dlažbou a částečně vytápěný. Kromě jedné větší místnosti, která byla dočasně využívána jako obytný prostor, se zde nachází další dobře osvětlená sklepní místnost, malá koupelna vyžadující rekonstrukci, sklepní bar a dva zásobní sklepy. Připojovací místnost pro dálkové vytápění je využívána jako prádelna a v ní se navíc nachází sauna. Sklep je rovněž přístupný přes vnější schodiště.
Krásně udržovaná zahrada s malým zahradním rybníkem je orientována na jih. Pozemek má rozlohu 547 m² a sousedí se stavebním pozemkem, který je rovněž na prodej. Na sousedním pozemku se nacházejí dvě garáže, které také patří k domu. Podíl pozemku určený pro garáže činí 62 m² a podíl na společné dopravní ploše přibližně 20 m².
Dům je ve velmi dobrém, věkově přiměřeném stavu.
V roce 1995 byla střecha domu znovu utěsněna. Hlavní rekonstrukce proběhly v roce 2000: byly obnoveny koupelny v přízemí i horním patře, renovováno schodiště, v přízemí byla instalována kamnová pec a byly vyměněny vstupní dveře. Jednotka dálkového vytápění a ohřívač teplé vody byly vyměněny v roce 2001. V roce 2024 byly zrevidovány střechy garáží a v roce 2025 byla koupelna v přízemí upravena na bezbariérovou (instalována přístupná sprcha).
Tento dům se nachází na jihu čtvrti Darmstadt-Arheilgen. Tramvajová zastávka, školy, mateřská škola, lékaři, nákupní možnosti, centrum Arheilgen, restaurace, sportoviště a společnost Merck jsou pěšky velmi dobře dostupné. V bezprostřední blízkosti se rovněž nachází severní nádraží, okresní úřad Darmstadt-Dieburg, jezdecký klub, přírodní koupaliště, městský park Nord a stavebniny.
Do centra Darmstadtu se lze snadno dostat tramvají nebo na kole. Automobilová doprava zajišťuje výborné napojení na dálnice A5 a A661.
+ samostatně stojící dvou rodinný dům
+ masivní konstrukce
+ dvě plná podlaží, sklep, plochá střecha
+ 3-pokojový byt v přízemí, terasa, bezbariérová koupelna
+ 4-pokojový byt v horním patře, zkleněný balkon, koupelna s vanou
+ další kamnová pec v přízemí
+ sklepní připojovací místnost využitelná jako prádelna
+ dva vyhřívané a dobře osvětlené sklepy, sklepní bar, 2 zásobní sklepy
+ navíc ve sklepě: sauna a koupelna vyžadující rekonstrukci
+ dálkové vytápění
+ další vnější sklepní schodiště
+ nepronajaté
+ dvě garáže na přilehlém pozemku
+ velká zahrada orientovaná na jih
+ bez provize pro kupujícího
+ přilehlý stavební pozemek lze zakoupit samostatně
Prodej je pro kupujícího bez provize. Dům je v současnosti využíván pouze v horním patře a může být předán v dohodnutém termínu.
Všechny údaje jsou poskytovány bez záruky a vycházejí výhradně z informací, které mi byly poskytnuty zadavateli. Nepřijímám odpovědnost za úplnost, správnost a aktuálnost těchto informací. Prodej předběžně se vyhrazuje.
Cornelia Krüger
Stavební financování a nemovitosti
Schöneweibergasse 89
64347 Griesheim
Německo
Odpovědná osoba podle § 18 odst. 2 MStV:
Cornelia Krüger, Schöneweibergasse 89, 64347 Griesheim
Povolení podle §34c a §34i obchodního zákoníku bylo uděleno okresním výborem Darmstadt-Dieburg
Jägertorstr. 287
64289 Darmstadt
Povolení podle §34d bylo uděleno příslušnou Hospodářskou a obchodní komorou Wiesbaden
Wilhelmstr. 24-26
65183 Wiesbaden
Registr realitních makléřů
Registrační číslo podle §34C: S/4 130-04
Registrační číslo podle §34d: D-UZJT-6OCHI-70
Registrační číslo podle §34i: D-W-115-PZZH-66
V okolí nemovitosti najdete
Stále hledáte to pravé?
Nastavte si hlídacího psa. Nabídky vybrané na míru dostanete souhrnně 1× denně e-mailem. S Premium profilem máte k ruce hlídačů rovnou 5 a když se něco objeví, informují vás obratem.



































