
Prodej bytu 1+1 • 45 m² bez realitkyMittelstr. 30 Bielefeld Bielefeld Nordrhein-Westfalen 33602
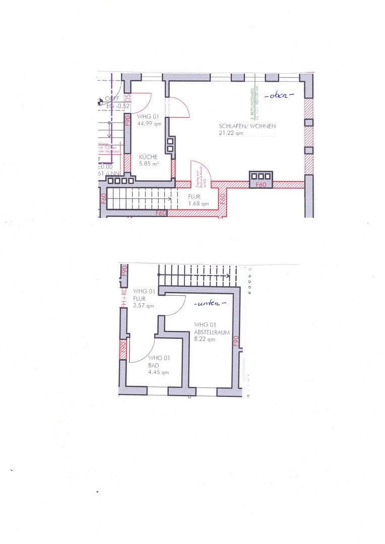
Mittelstr. 30 Bielefeld Bielefeld Nordrhein-Westfalen 33602MHD 5 minut pěškyNa prodej je světlý jednopokojový byt o výměře 45 m² v udržovaném vícebytovém domě s devíti jednotkami, postaveném v roce 1959. Prostorný obytný prostor se nachází v přízemí. Přes schodiště v samotném bytě se dostanete do velké skladovací místnosti – která je v současné době využívána jako ložnice – a do koupelny.
Při vstupu do bytu se ocitnete v kuchyni, která je navržena jako oddělený prostor. Vestavěná kuchyň je součástí bytu a je funkčně integrována do prostoru. Středem bydlení je prostorný a světlý obytný prostor v přízemí. Přes vnitřní schodiště se dostanete do suterénu, kde se nachází koupelna a skladovací místnost, která je aktuálně využívána jako ložnice.
Byt je v současné době pronajat studentovi, a proto je zvláště atraktivní pro investory hledající solidní investici na výhodném místě. Roční čistý nájem činí 4 320 EUR.
Nemovitost se nachází v ustálené obytné čtvrti na adrese Mittelstraße 30. Ta leží centrálně a přitom klidně, v bezprostřední blízkosti historického centra Bielefeldu a okresního soudu. Za pár minut chůze se dostanete do oblíbené čtvrti An der Lutter v Bielefelder Dürkoppviertel, která se díky svému otevřenému vodnímu prvku a rozmanitým hospůdkám a kavárnám stala čtvrtí s vysokou volnočasovou hodnotou v klidné městské lokalitě. Tato jedinečná poloha zajistí i v budoucnu bezpečné pronájmy a solidní růst hodnoty nemovitosti. Vynikající je také spojení s veřejnou dopravou.
Stručně:
• Prostorný pokoj k bydlení a spaní
• Velká skladovací místnost a koupelna v suterénu
• Atraktivní lokalita díky blízkosti Lutter, historického centra a okresního soudu
• Udržovaná společná vlastnictví
• Vestavěná kuchyň zahrnuta v kupní ceně
• Plynové vytápění z roku 2012
• Izolovaná plastová okna
Pro další informace nebo sjednání prohlídky jsme vám samozřejmě k dispozici. Neváhejte nás kontaktovat.
Koncová spotřeba energie budovy: 150,9 kWh/(m²·rok)
Všechny údaje jsou uvedeny podle nejlepšího vědomí. Výhrada k chybám a předprodeji. Kupující nehradí žádnou makléřskou provizi. Tento informační materiál slouží pouze jako předběžná informace; právní závaznost má výhradně notářsky uzavřená kupní smlouva.
E&W
Grundbesitz GmbH
Ředitel:
Olaf Wortmann
Telefon: +49 521 164 68 68
Mobil: +49 171 4303453
Fax: +49 521 164 68 60
Okresní soud Bielefeld
HRB 42735
Daňové identifikační číslo: 305/5864/2720
V okolí nemovitosti najdete
Stále hledáte to pravé?
Nastavte si hlídacího psa. Nabídky vybrané na míru dostanete souhrnně 1× denně e-mailem. S Premium profilem máte k ruce hlídačů rovnou 5 a když se něco objeví, informují vás obratem.








