
Prodej domu 6+1 • 239 m² bez realitky, Šlesvicko-Holštýnsko
, Šlesvicko-HolštýnskoMHD 2 minuty pěšky • Parkování • GarážPokud hledáte výjimečnou nemovitost, srdečně vás vítám!
Rád bych vám nabídl svou vznešenou vilu.
Vila se nachází na klidné ulici, kde se náročné bydlení setkává s prvotřídní polohou, jež spojuje každodenní komfort s výjimečnou kvalitou života pobřeží Baltského moře.
Přímo u fjordu – mořská lázně Laboe jsou obcí v okrese Plön na východním břehu Kielského fjordu.
Obec je místem k bydlení i dovolené a pyšní se sloganem „Slunná strana Kielského fjordu“.
- Masivní stavební zdivo z pórobetonových cihel
- Keramické cihly Röben
- Keramické střešní tašky od Creaton
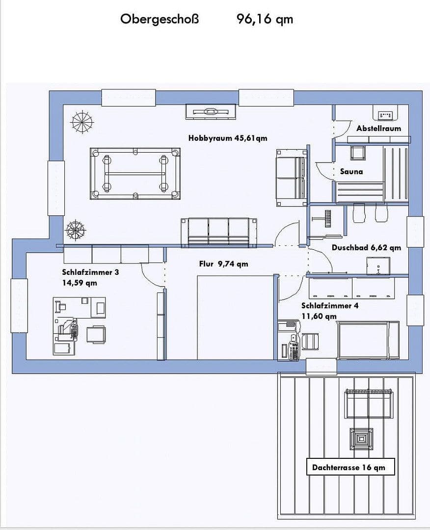
- Obývací pokoj s výškou 3,55 m
- Ostatní místnosti ve výšce 2,55 m
- Centrální topení dálkovým teplem
- Podlahové vytápění
- Centrální ventilační systém s rekuperací tepla – ComfoAir Q450 TR od Zehnder
- Vysoce kvalitní energeticky úsporná plastová okna od firmy WERU
- Hliníkové venkovní žaluzie v přízemí s elektrickým ovládáním také pomocí mobilního telefonu
- Kompletní koupelna s bidetem v přízemí
- Hostinská toaleta s lisem v přízemí
- Sprchová koupelna s lisem v nadzemním podlaží
- Masivní dřevěné schody z dubu, s extra pohodlnou výškou schodů
- V přízemí parkety z pravého dubu s olejovou úpravou
- V nadzemním podlaží kobercové podlahy
- V koupelnách a technické místnosti obklady z dlaždic
- Krásný kamínový krb s obkladem z granitu „Elegant Grey“
- Velká vestavěná kuchyně Nobilia Lux s pracovní deskou z granitu „Elegant Grey“, vybavená všemi elektrospotřebiči značky Siemens
- Krychlový lustr v obývacím pokoji o průměru 1 m
- Sauna 2 m x 2,20 m s odlitým kamenem, vnitřní prostor vybavený dřevěnými obklady z hemloku
- Prostorná prádelna v technické místnosti
- Zahradní akvárium s vodopádem a osvětlením
- Keramické obklady kolem domu a na dvou terasách
- Vjezd dlažbou
- Masivní podkrovní prostor nabízí ještě přibližně 30 m² možnost dokolaďby
- Velká garáž a navíc 3 parkovací stání
- Všechny látky a materiály jsou vysoce kvalitní a velmi precizně zpracované
V okolí nemovitosti najdete
Stále hledáte to pravé?
Nastavte si hlídacího psa. Nabídky vybrané na míru dostanete souhrnně 1× denně e-mailem. S Premium profilem máte k ruce hlídačů rovnou 5 a když se něco objeví, informují vás obratem.




























