
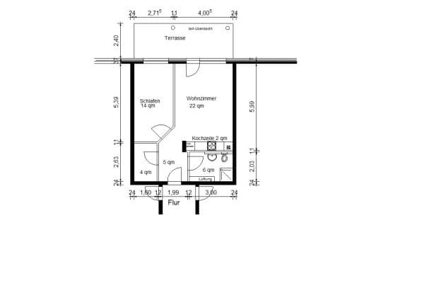
Pronájem bytu 2+1 • 56 m² bez realitkyFeldbergstraße 8 Köln Humboldt-Gremberg Hessen 51105
Nový
Feldbergstraße 8 Köln Humboldt-Gremberg Hessen 51105MHD 2 minuty pěškyMěsíční nájemné800 €
V okolí nemovitosti najdete
MHDFeldbergstraße
🚶 154 m (2 min)
Pošta
🚶 430 m (5 min)
ObchodLidl
🚶 278 m (3 min)
BankaVolksbank Köln Bonn eG
🚶 540 m (6 min)
RestauraceHumboldt
🚶 94 m (1 min)
LékárnaTaunus-Apotheke
🚶 297 m (4 min)
ŠkolaMartin-Köllen-Schule
🚶 362 m (4 min)
Mateřská školaFröbel Kindergarten Taunuspänz
🚶 166 m (2 min)
Sportoviště
🚶 787 m (9 min)
Hřiště
🚶 166 m (2 min)
Vzdálenost k:
Měsíční nájemné800 €
Stále hledáte to pravé?
Nastavte si hlídacího psa. Nabídky vybrané na míru dostanete souhrnně 1× denně e-mailem. S Premium profilem máte k ruce hlídačů rovnou 5 a když se něco objeví, informují vás obratem.






















