
Pronájem bytu 4+kk • 116 m² bez realitkySchubertstrasse, , Hessen
Schubertstrasse, , HessenMHD 7 minut pěškyNa pronájem hezký pár nebo jednotlivá osoba (1–2 osoby).
Světlem prosvitná, nádherná a klimatizovaná dvoupodlažní byt v udržovaném 2-rodinném domě, nacházejícím se v klidné obytné čtvrti. Byt je celkově velmi světlý a přátelsky zařízený a vyvolává dojem vyšší kvality. Dům se nachází přímo u chráněné krajinné oblasti, nedaleko občanského parku a krytého bazénu.
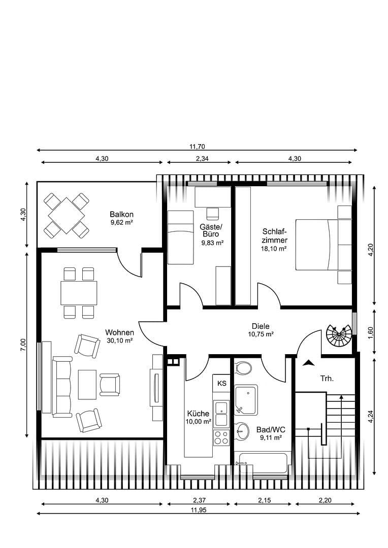
Obytná plocha činí 116 m². Základová/užitná plocha je celkem přibližně 200 m².
V přízemí (90 m²) se nachází ložnice, pokoj pro hosty či pracovnu, velký obývací pokoj s velkým balkonem a výhledem do zahrady, dále kuchyň a modernizovaná koupelna s přirozeným denním světlem.
Z chodby je přístup k velkému pokoji v podkroví (27 m² obytné plochy, ale celkem 80 m² základové plochy) pomocí špirálového schodiště. Tento prostor je ideální jako kancelář, pro koníčky či jako TV místnost. Před pokojem v podkroví se nachází pěkná, světlá předsíň, která nabízí další užitné prostory. V podkrovním pokoji je také k dispozici malá skladová místnost. Toto prostorné uspořádání Vám poskytuje maximální flexibilitu pro soustředěnou práci z domova nebo relaxaci v intimní atmosféře.
Koupelna je vybavena novým nábytkem, novým umyvadlem, moderní novou sprchou a vanou.
K dispozici je také vlastní sklepní místnost s připojením k vodě a dostatkem prostoru pro pračku a sušičku.
Dům byl před několika lety zrekonstruován a od té doby je průběžně modernizován.
Jedná se o klidný a pečlivě udržovaný obytný dům.
Podmínky pro uzavření nájemní smlouvy:
1. Pozitivní výpis ze Schufa
2. Celkový čistý domácí příjem minimálně 4 000 eur
3. 1 až 2 osoby
Nachází se v prestižní, velmi klidné lokalitě v Dreieich-Sprendlingen, přímo naproti chráněné přírodě, nedaleko Buchschlag, krytého bazénu a občanského parku.
Výborné dopravní spojení: dobré napojení na veřejnou dopravu, například autobus na letiště, 5 minut autem k P+R nádraží Buchschlag, 5–10 minut autem k přípojení na dálnice A3, A5, A661. Letiště je vzdáleno 15 minut jízdy autem. Mateřská škola, základní škola, střední škola, gymnázium a mezinárodní škola Strothoff jsou dostupné během několika minut chůze nebo na kole.
Horní patro a podkroví:
– Obývací/jídelní místnost (klimatizovaná, cca 30 m²) s kvalitní laminátovou podlahou (nová) a přístupem na velký balkon* s výhledem do zahrady
– Ložnice (klimatizovaná, cca 20 m²) s kvalitní laminátovou podlahou (nová)
– Pokoj pro hosty (cca 10 m²) s kvalitní laminátovou podlahou (nová)
– Koupelna s přirozeným denním světlem (cca 10 m²), obložená dlaždicemi, moderní, s vanou, oddělenou sprchou, toaletou a umyvadlem
– Kuchyň (cca 10 m²), světlá, obložená dlaždicemi
– Chodba (cca 10 m²) s novou podlahou
– Zařízené podkroví (klimatizované, cca 27 m² obytné plochy, resp. 80 m² základové plochy) s předsálí, laminátovou podlahou a další skladovací místností
– Vlastní sklep/prádelna (cca 10 m²), obložená dlaždicemi
– *Balkon (cca 10 m²), obložený dlaždicemi, částečně krytý, orientovaný na sever
V obytných prostorech je zajištěno kabelové, satelitní a telefonní připojení, stejně jako síťová připojení.
Celkem 4,5 pokojů s obytnou plochou 116 m² plus přibližně 80 m² užitných ploch.
Byt je v zrekonstruovaném stavu, s novou podlahou v suterénu.
V okolí nemovitosti najdete
Stále hledáte to pravé?
Nastavte si hlídacího psa. Nabídky vybrané na míru dostanete souhrnně 1× denně e-mailem. S Premium profilem máte k ruce hlídačů rovnou 5 a když se něco objeví, informují vás obratem.















