
Pronájem bytu 4+kk • 138 m² bez realitky, Hessen
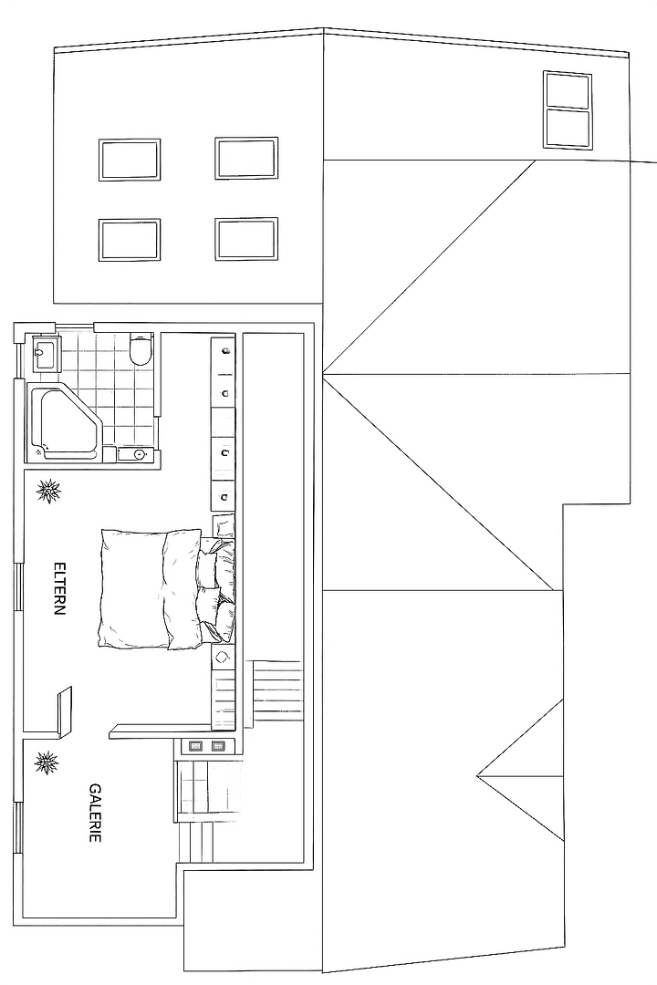
, HessenMHD 3 minuty pěškyVítejte ve svém novém domově na Dietzenbacher Hexenberg, jedné z nejvyhledávanějších rezidenčních lokalit ve městě. Tento výjimečně světlý a prostorný 4,5-pokojový byt v blízkosti pole nabízí na přibližně 138 m² moderní, otevřený koncept bydlení a atmosféru, která okamžitě navozuje pocit pohody.
Prostorná obytná část spojená s jídelnou a kuchyní tvoří srdce bytu – ideální pro společné vaření, relaxaci a příjemné večery. Tři dobře uspořádané ložnice nabízejí široké možnosti využití, ať už jako rodinný pokoj, pokoj pro hosty nebo domácí kancelář. Dvě udržovaná koupelny přinášejí další komfort. Slunečný balkon zve k odpočinku a rozšiřuje obytný prostor ven.
Byt je ideální pro až 4 osoby, které si cení prostoru, světla a příjemné atmosféry.
Přehled vybavení:
- přibližně 138 m² obytné plochy
- 4,5 pokoje
- 3 ložnice
- 2 koupelny
- prostorná, otevřená obytná část s jídelnou a kuchyní
- slunečný balkon
- světlé místnosti díky velkým okenním plochám
- udržovaný, dobře vybavený byt
Lokalita:
Hexenberg patří mezi nejoblíbenější rezidenční oblasti Dietzenbachu. Zde budete mít prospěch z klidu, krátkých cest a příjemného obytného prostředí.
Přihláška:
Pro rychlé vyřízení vás žádáme o kompletní dokumentaci:
- vyplněné dotazníky nájemce
- aktuální výpis ze Schufa
- potvrzení o příjmech za poslední 3 měsíce
- kopii občanského průkazu (přední i zadní strana)
Klidná poloha na samotném kraji pole s přitom veškerou dostupností potřebných služeb – zde si můžete naplno užívat život.
Dřevěné podlahy z parketů,
vestavěná kuchyň,
možnost pronájmu parkovacího místa v garáži,
centrální vytápění na plyn s připojením pro tepelná čerpadla.
Fotovoltaika pro vlastní potřebu
V okolí nemovitosti najdete
Stále hledáte to pravé?
Nastavte si hlídacího psa. Nabídky vybrané na míru dostanete souhrnně 1× denně e-mailem. S Premium profilem máte k ruce hlídačů rovnou 5 a když se něco objeví, informují vás obratem.

















