
Pronájem bytu 1+kk • 32 m² bez realitkyBukačova, Praha - Vysočany
Máte o nabídku zájem?
Ušetřete 18 000 Kč na provizi a komunikujte se všemi majiteli.
Pronájem nového bytu 1+kk s lodžií – Harfa Living, Praha 9 (31,5 m²)
Nabízíme k pronájmu zcela nový byt o dispozici 1+kk v moderním projektu Harfa Living, nacházející se mezi ulicemi Poděbradská a Bukačova v Praze 9.
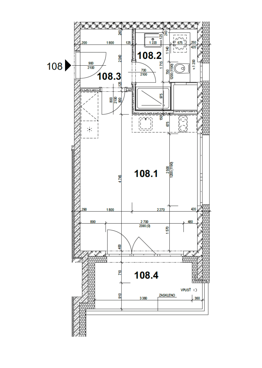
Byt je situován v 6. patře z 9 a má podlahovou plochu 31,5 m², k tomu prostornou a zasklenou lodžii o velikosti 6,4 m² orientovanou na jih a sklep o velikosti 4,2 m².
Byt je vybaven novou kuchyňskou linkou včetně s myčkou, troubou a indukční varnou deskou. Součástí vybavení bytu bude I volně stojící lednice, která bude do bytu teprve doručena a není tak na fotkách.
V koupelně je mimo sprchového koutu a záchodu I umyvadlová skříňka se zrcadlem a nová pračka s intergrovanou sušičkou.
Byt je orientovaný na jih a východ, je v něm tedy dostatek světla. Na jižní okna na lodžii budou osazeny venkovní žaluzie. Díky zasklení lodžie a vysokému umístění bytu je ruch přilehlé rušné Poděbradské ulice výborně utlumen a v bytě tak není provoz slyšet.
Součástí bytu je i sklep o velikosti 4,2 m2 a k bytu je možné si pronajmout I parkovací stání.
Projekt Harfa Living nabízí výbornou dopravní dostupnost. V docházkové vzdálenosti jsou zastávky metra Českomoravská a Vysočanská, nákupní centra Galerie Harfa a Galerie Fénix nebo O2 aréna. Do 5 min pěšky je v okolí k dispozici řada restaurací, kaváren a I např. prodejna Albert. Dům je zároveň přímo u tramvajové zastávky Kabešova.
Součástí uvedené výše záloh na služby je i internetové připojení o rychlosti 1 Gbit/s a náklady na elektřinu.
Byt je k nastěhování ihned.
Rental of a new 1+kk apartment with a loggia – Harfa Living, Prague 9 (31.5 m²)
We offer for rent a brand new 1+kk apartment in the modern Harfa Living project, located between Poděbradská and Bukačova streets in Prague 9.
The apartment is situated on the 6th floor out of 9 and has a floor area of 31.5 m², along with a spacious glazed loggia of 6.4 m² facing south and a storage unit of 4.2 m².
The apartment is equipped with a new kitchen including a dishwasher, oven and induction hob. A freestanding fridge will also be part of the equipment, but it has not yet been delivered and is therefore not shown in the photos.
The bathroom features a shower, toilet, vanity unit with mirror, and a new washer-dryer.
The apartment is oriented to the south and east, ensuring plenty of natural light. External blinds will be installed on the south-facing windows on the loggia. Thanks to the glazing of the loggia and the higher floor, noise from the busy nearby Poděbradská street is very well reduced and is not audible inside the apartment.
The apartment also includes a storage unit of 4.2 m² and there is an option to rent a parking space.
The Harfa Living project offers excellent transport accessibility. Within walking distance are the metro stations Českomoravská and Vysočanská, the shopping centres Galerie Harfa and Galerie Fénix, and the O2 Arena. Within a 5-minute walk there are numerous restaurants, cafés, and also a grocery store such as Albert. The building is also located directly next to the Kabešova tram stop.
The mentioned utility charges include high-speed internet connection (1 Gbit/s) and electricity costs.
The apartment is available for immediate move-in.
V okolí nemovitosti najdete
Máte o nabídku zájem?
Ušetřete 18 000 Kč na provizi a komunikujte se všemi majiteli.
Stále hledáte to pravé?
Nastavte si hlídacího psa. Nabídky vybrané na míru dostanete souhrnně 1× denně e-mailem. S Premium profilem máte k ruce hlídačů rovnou 5 a když se něco objeví, informují vás obratem.

















