
Prodej domu • 273 m² bez realitky, Hessen
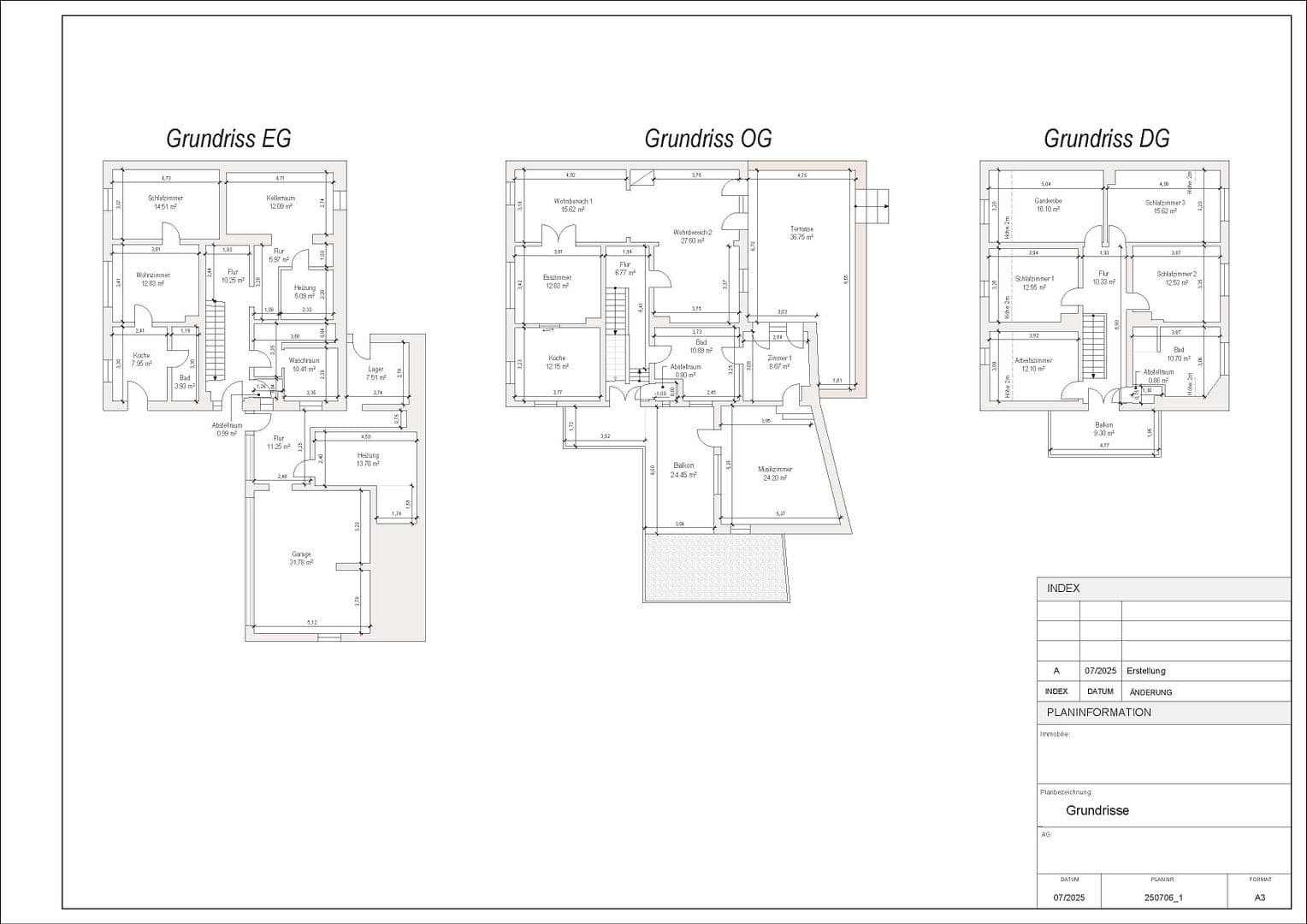
, HessenMHD do minuty pěšky • Parkování • GarážTento památkově chráněný starý městský dům z roku 1890 spojuje historický šarm s moderním bydlením. Na pozemku o rozloze přibližně 405 m² se nemovitost rozprostírá přes tři patra s obytnou plochou 273 m² a celkem 10 místnostmi.
Kromě hlavního bytu, který se rozkládá na 2 patrech, nabízí dům i samostatný příbytkový byt a velmi půvabné venkovní prostory: terasa, balkóny a přístavba poskytují dodatečné možnosti využití, například jako sauna a fitness místnost. Příprava pro saunu již existuje. Ve vlastním dvoře jsou k dispozici dvojgaráž a 2 parkovací místa.
Dům se nachází v historickém centru Gelnhausenu na obzvláště klidné lokalitě. Okolí je charakterizováno domy s viditelnou tradiční stavbou a vyspělou infrastrukturou. Pouhými 3 minutami chůze se dostanete jak na horní, tak na dolní trh. Obchody, školy, lékaři a veřejná doprava jsou také velmi snadno dostupné. Nezapomeňte na krásnou městskou zahradu, která se nachází v bezprostřední blízkosti.
Rekonstukce byla provedena s velkým respektem k historickému klenotu a s citlivým okem pro detaily. Původní charakter byl zachován a obohacen o kvalitní akcenty.
Bez provize – přímo od majitele
Prohlídky po předchozí domluvě
Parametry nemovitosti
| Stáří | Nad 50 let |
|---|---|
| Číslo inzerátu | 1007449 |
| Plocha pozemku | 405 m² |
| Cena za jednotku | 3 600,73 € / m2 |
| Stav | Po rekonstrukci |
|---|---|
| Užitná plocha | 273 m² |
| Celkem podlaží | 3 |
Co tato nemovitost nabízí?
| Balkón | |
| Garáž | |
| Parkování | |
| Terasa |
| Sklep | |
| MHD 0 minut pěšky |













