Prodej domu 3+1 • 200 m² bez realitky, Mecklenburg-Vorpommern
, Mecklenburg-VorpommernMHD 1 minuta pěšky • ParkováníArchitektenhaus (2023) s galerií, ELW a Traumgarten nedaleko Baltského moře
A+ | téměř energeticky soběstačné | ihned k nastěhování | bez provize
Moderní, vysoce kvalitně postavený architektonický dům v Saalu (18317, Meklenbursko-Přední Pomořansko) – mezi krajinnou oblastí Bodden a pobřežím Baltského moře.
Dům dokončený v roce 2023 spojuje jasnou architekturu, prostorné, světlem naplněné místnosti a promyšlené dispozice s nejvyšší energetickou kvalitou.
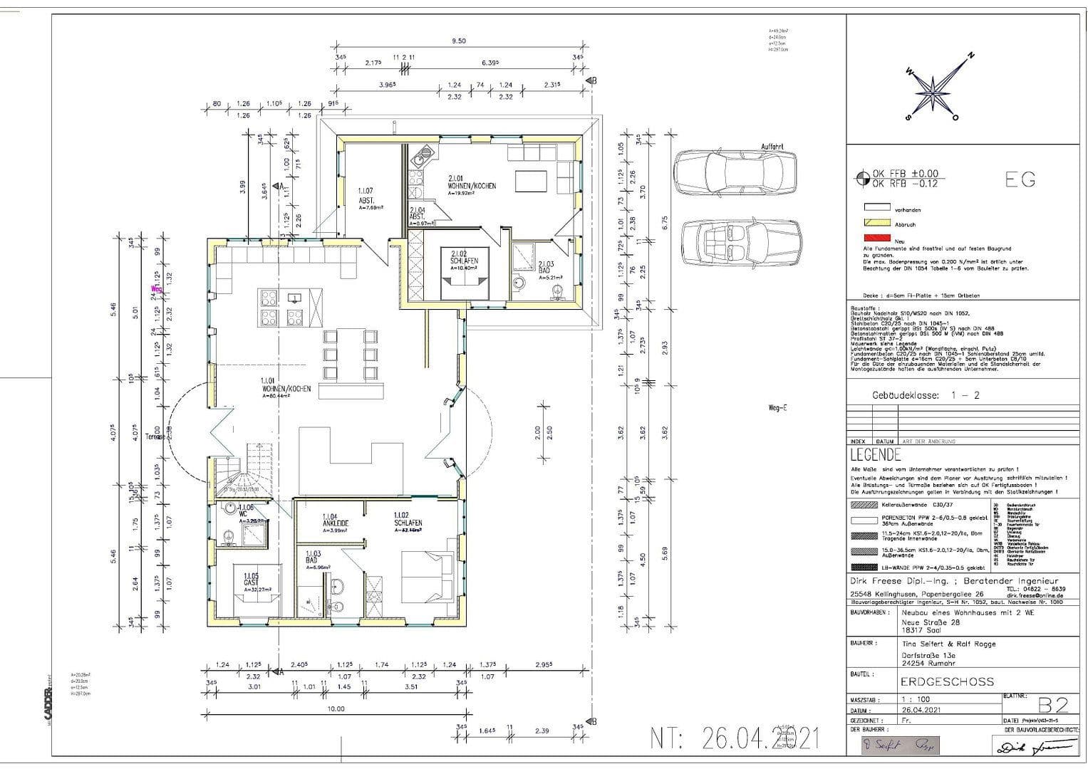
Údaje o nemovitosti:
Kupní cena: 825.000 €
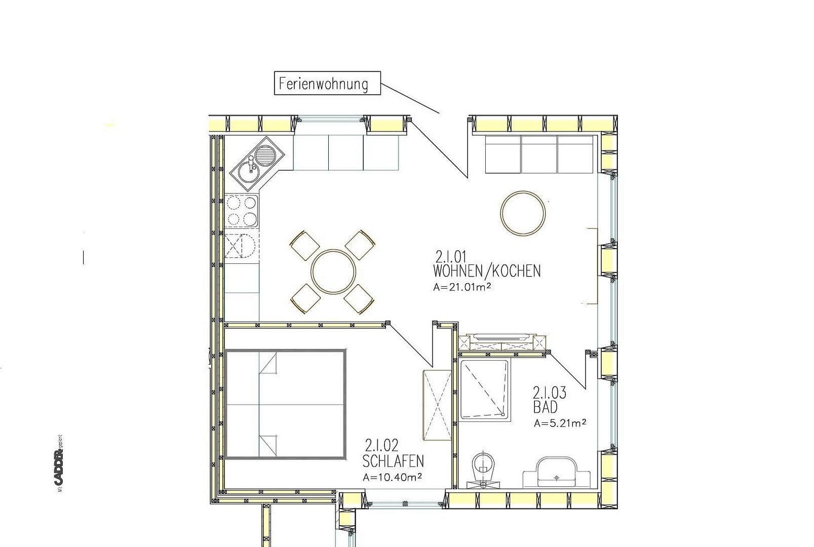
Obytná plocha: cca 200 m² (včetně samostatného bytu cca 36,5 m²)
Pozemek: cca 753 m²
Rok výstavby: 2023
Energetická třída: A+
Kompletní dokumentace k nemovitosti (půdorysy, energetický štítek, stavební popis apod.) je k dispozici a lze ji předložit při žádostech o financování.
Prodej probíhá bez provize přímo od vlastníka.
Popis nemovitosti:
Otevřený obývací prostor o rozloze přibližně 100 m² s výškou stropu cca 7 m vytváří neobvyklý pocit prostoru. Impozantní zasklení štítu a velká okna zaplavují místnost denním světlem a vytvářejí harmonické propojení mezi interiérem a exteriérem.
Dům byl postaven udržitelnou metodou a splňuje nejvyšší energetické standardy. Moderní architektura se zde spojuje s dlouhodobou ekonomičností a jistotou do budoucna.
Technické vybavení a energie:
• Vzduchové tepelné čerpadlo
• Fotovoltaická elektrárna
• Podlahové vytápění
• Připojení na optickou síť
Díky moderním technologiím domácnosti je téměř možné bydlení prakticky bez závislosti na síti. Aktuální celkové roční náklady včetně vedlejších nákladů a pojištění budovy činí pouhých cca 2.800 €.
Samostatný byt (cca 36,5 m²) je využitelný různými způsoby a disponuje vlastním vstupem, vestavěnou kuchyní a moderní koupelnou s bezbariérovým sprchovým koutem.
Užití je stavebně povoleno – což je zásadní výhoda, neboť odpovídající povolení jsou v regionu čím dál restriktivnější.
Ideální pro:
– Pronájem na dovolenou (povolené)
– Hosty nebo multigenerační bydlení
– Samostatné pracovní prostředí (homeoffice)
Výhoda plánování a času:
Novostavby jsou dnes často spjaty s dlouhými plánovacími a schvalovacími fázemi a dobou výstavby 2–3 roky.
Zde získáte kvalitní, již dokončený dům – bez rizika stavebních nákladů, bez čekání a bez nejistot. Vnasíte se bez nutnosti plánování.
Prodej probíhá bez provize přímo od vlastníka – což pro kupující znamená značnou úsporu nákladů oproti obvyklým provizím makléřů.
Dům je plně připraven k nastěhování. Předání proběhne dle individuální dohody. Prohlídky se realizují po domluvení termínu.
Těšíme se na seriózní dotazy od zájemců, kteří ocení architektonickou kvalitu a speciální energetickou účinnost této nemovitosti.
Popis lokality:
Saal u Ribnitz-Damgarten v Meklenbursku-Předním Pomořansku se nachází v klidné a přírodou obklopené oblasti mezi krajinným územím Bodden a pobřežím Baltského moře. Okolí nabízí vysokou kvalitu života s bohatou přírodou, vodou a prostorností – ideální pro lidi, kteří si cení klidu a volnosti.
Baltské moře je dosažitelné přibližně za 25 minut. Obchody, školy, školky i zdravotní péče se nacházejí v nedalekém Ribnitz-Damgartenu a jsou pohodlně dostupné za cca 10–15 minut jízdy.
Lokalita tak spojuje bydlení v přírodním prostředí mezi Bodden a Baltským mořem s běžnou infrastrukturou – ideální pro všechny, kteří si chtějí užít klid přírody, aniž by museli obětovat dobrou dostupnost.
Užití a potenciál:
Ideální pro páry s nároky na architekturu a energetickou účinnost, pro vícegenerační bydlení nebo jako kombinace vlastního bydlení a pronájmu.
Schválený samostatný byt otevírá další možnosti příjmu nebo nabízí flexibilní prostor pro hosty, homeoffice či osobní útočiště.
Díky energeticky úsporné konstrukci (A+) a moderním technologiím spojuje nemovitost dlouhodobou cenovou jistotu s udržitelným zachováním hodnoty.
Navíc:
Na míru vyrobené plisové žaluzie v hlavním domě a v samostatném bytě, stejně jako vybrané kusy nábytku, osvětlení a TV zařízení, mohou být v případě zájmu zakoupeny volitelně.
Prosím, vezměte na vědomí:
Vzhledem k vysoké poptávce vás prosíme o krátké představení (například plánované využití nebo časový rámec) v případě zájmu.
V okolí nemovitosti najdete
Stále hledáte to pravé?
Nastavte si hlídacího psa. Nabídky vybrané na míru dostanete souhrnně 1× denně e-mailem. S Premium profilem máte k ruce hlídačů rovnou 5 a když se něco objeví, informují vás obratem.



























