
Pronájem bytu 3+1 • 91 m² bez realitkySolidarity, Praha - Strašnice
Máte o nabídku zájem?
Ušetřete 36 000 Kč na provizi a komunikujte se všemi majiteli.
**Bydlení, kde se ráno probouzíte do zeleně a večer usínáte v naprostém klidu 🌿**
Hledáte místo, kde si opravdu odpočinete od ruchu města, ale přitom budete mít metro i vše potřebné na dosah? Tento byt v řadovém rodinném domku nabízí přesně takovou kombinaci – klid, zeleň a příjemnou komunitní atmosféru.
🏡 **Proč si toto bydlení zamilujete**
* výjimečně klidné prostředí ideální pro pohodové bydlení i kvalitní spánek
* přátelská sousedská atmosféra a příjemný komunitní život
* možnost parkování přímo před domem (na Solidaritě opravdu vzácné)
* park a zeleň přímo před domem – ideální na procházky i relax
* dvě zahrádky – jedna před domem na ranní kávu, druhá za domem pro drobné zahrádkaření
⚙️ **Vybavení a stav**
* nový plynový kondenzační kotel Protherm s dálkovým ovládáním přes aplikaci (2025)
* krásné parkety, nové malby a lakování (2025)
* vysokorychlostní optický internet 1000 Mbit/s – ideální pro práci z domova i zábavu
🛍️ **Skvělá dostupnost a občanská vybavenost**
* obchody v docházkové vzdálenosti (Albert, Billa)
* v okolí škola, školka, divadlo i restaurace
* tramvajová zastávka Zborov jen 3 minuty pěšky
* stanice metra Strašnická přibližně 15 minut chůze
✨ Místo, kde můžete žít klidně, pohodlně a přitom zůstat v dosahu města.
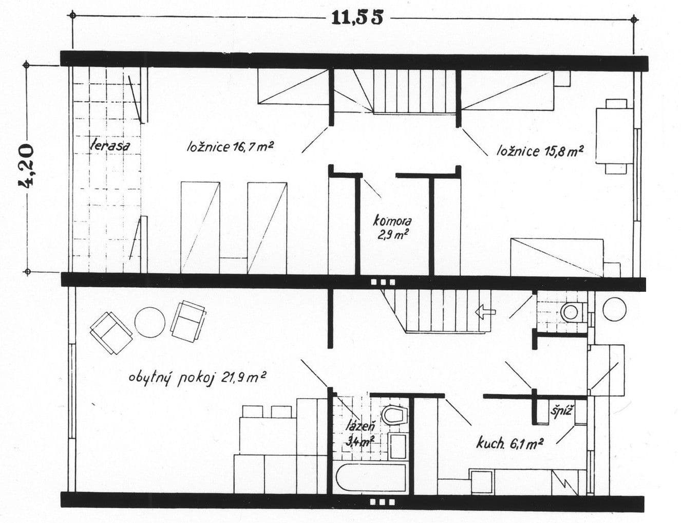
Parametry nemovitosti
| Dostupné od | 1. 4. 2026 |
|---|---|
| Konstrukce budovy | Cihla |
| Vybaveno | Vybaveno |
| Vytápění | Plynové |
| Umístění | Klidná část |
| Cena za jednotku | 396 Kč / m2 |
| Stav | Velmi dobrý |
|---|---|
| Dispozice | 3+1 |
| Podlaží | 2. podlaží z 2 |
| Číslo inzerátu | 1007620 |
| Užitná plocha | 91 m² |
Co tato nemovitost nabízí?
| Předzahrádka 32 m² | |
| Lodžie 6,3 m² | |
| MHD 2 minuty pěšky |
| Parkování |
V okolí nemovitosti najdete
Máte o nabídku zájem?
Ušetřete 36 000 Kč na provizi a komunikujte se všemi majiteli.
Stále hledáte to pravé?
Nastavte si hlídacího psa. Nabídky vybrané na míru dostanete souhrnně 1× denně e-mailem. S Premium profilem máte k ruce hlídačů rovnou 5 a když se něco objeví, informují vás obratem.





















