
Prodej bytu 3+1 • 92 m² bez realitkyNiedernhausener Strasse 33 Frankfurt am Main Gallus Hessen 60326
Niedernhausener Strasse 33 Frankfurt am Main Gallus Hessen 60326MHD 3 minuty pěšky • Výtah • GarážNíže naleznete překlad textu:
English Version below.
Níže je uvedena anglická verze.
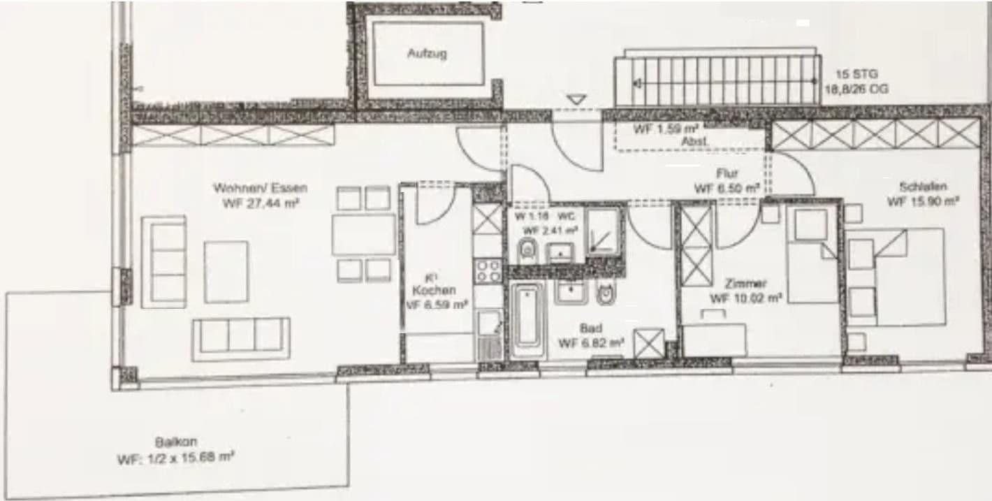
Na přibližně 92 m² vás očekává světlý, moderní 3-pokojový byt v 5. patře (s výtahem) moderního bytového domu, který zaujme prostornou dispozicí a vysoce kvalitním vybavením. Byt byl naposledy luxusně zmodernizován v roce 2023 a nabízí nejvyšší komfort bydlení. Zvláštním lákadlem je balkon o rozloze přibližně 16 m² s nádhernou orientací na východ, jih a západ – sluneční světlo od ranních hodin až do večera je zaručeno! Byt disponuje dvěma koupelnami a vysoce kvalitní, plně vybavenou kuchyní (nová od poloviny roku 2023). Díky výtahu je byt bezbariérově přístupný a zároveň garáž s vlastním parkovacím místem poskytuje další komfort. K bytu patří také sklepní kóje.
Přehled nemovitosti:
Vstupte do světa čistého komfortu a moderního stylu v tomto úchvatném 3-pokojovém bytě, o rozloze přibližně 92 m². Umístěný v 5. patře obytné budovy s výtahem kombinuje elegance, funkčnost a prostorné, světlé místnosti. Po modernizaci v roce 2023 nabízí prostorný balkon o velikosti 16 m² s ideální orientací na východ, jih a západ – vychutnejte si slunce od rána až do večera! Byt disponuje dvěma koupelnami a nově instalovanou špičkovou kuchyní (od poloviny roku 2023). Bezproblémová dostupnost díky výtahu a vlastní podzemní parkovací místo spolu s úložným prostorem přidávají další pohodlí a hodnotu.
Byt se nachází v jedné z nejoblíbenějších lokalit ve Frankfurtu – v čtvrti Gallus/Europaviertel. Díky vynikající dopravní dostupnosti se hlavní nádraží a letiště dostanete za několik minut. Výstaviště je vzdáleno jen přibližně 2 km. S-Bahn, tramvaj a autobus jsou pohodlně dostupné pěšky a brzy bude nabídku rozšiřovat nová linka metra. Zelené okolí s parky Lotte-Specht Park, Europagarten a Rebstockpark zve k odpočinku. Restaurace, kavárny, supermarkety, pekárny, fitness centra, mateřské školy, školy a lékařské ordinace jsou v bezprostřední blízkosti – vše potřebné pro každodenní život máte doslova za rohem.
Skvělá poloha:
Byt se nachází v pulzující frankfurtské čtvrti Gallus/Europaviertel, kde tě čeká perfektní městská dostupnost. Hlavní vlakové nádraží, letiště i veletržní areál jsou vzdáleny jen několik minut. Veřejnou dopravu – S-Bahn, tramvaj i autobus – máte pohodlně v docházkové vzdálenosti a blížící se linka metra ještě umocní vaši mobilitu. Čtvrť nabízí vše, po čem můžete toužit: malebné zelené plochy jako Lotte-Specht Park, Europagarten a Rebstockpark poskytují místo k odpočinku, zatímco kavárny, restaurace, supermarkety, tělocvičny, mateřské školy, školy a lékařské ordinace jsou přímo za rohem. To je městský život v nejlepším pojetí – s dokonalou rovnováhou mezi přírodou, pohodlím a volným časem.
• Vysoce kvalitní parketová podlaha ve všech obytných prostorech
• Podlahové vytápění ve všech místnostech (volitelně ovladatelné přes Wi-Fi)
• Žaluzie v každé místnosti (v obývacím pokoji elektrické)
• Stylové stropní LED světla na chodbě a ve vstupní oblasti
• Vysokorychlostní internetové připojení
• Kabelová TV a satelitní systém
• Okna od podlahy ke stropu pro mimořádně světlý obytný prostor
• Slunný balkon s orientací na východ, jih a západ
• Hlavní koupelna s vanou, hostinská toaleta se sprchou
• Přípojka pro pračku (v koupelně, případně alternativně v suterénu)
• Plnohodnotné parkovací místo v podzemní garáži v ceně
• Prostorný sklep a společné úložiště na kola
Vlastnosti a přednosti:
• Prémiová parketová podlaha po celém bytě
• Podlahové vytápění v každé místnosti (ovladatelné přes Wi-Fi)
• Rolety ve všech místnostech (v obývacím pokoji elektrické)
• Elegantní stropní LED osvětlení v chodbě a vstupní oblasti
• Vysokorychlostní internet, kabelová TV a satelitní připojení
• Okna od podlahy ke stropu pro světlou atmosféru
• Slunný balkon s orientací na východ, jih a západ
• Dvě koupelny – hlavní s vanou, hostinská toaleta se sprchou
• Přípojka pro pračku (v koupelně nebo v suterénu)
• Bezpečné parkovací místo v podzemí v ceně
• Soukromé sklepní úložiště a společný prostor pro kola
V okolí nemovitosti najdete

Prodej bytuGroße Rittergasse 35 Frankfurt am Main Sachsenhausen Hessen 60594- 3+1
- 98 m²
729 000 € + 320 €
Stále hledáte to pravé?
Nastavte si hlídacího psa. Nabídky vybrané na míru dostanete souhrnně 1× denně e-mailem. S Premium profilem máte k ruce hlídačů rovnou 5 a když se něco objeví, informují vás obratem.








