Pronájem bytu 4+1 • 115 m² bez realitkyPirnaer Landstraße 14, , Sasko
Poslední z našich pěti bytů v památkové renovaci, Pirnaer Landstraße 14, Stolpen.
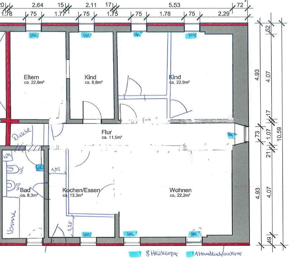
Prostorný a světlý byt s velkorysou dispozicí – zahrnuje využití podkrovního prostoru jako skladovacího prostoru a prostor pro sušení prádla. Sklep je k dispozici, avšak vlhký. V přízemí je místnost určená pro kola, dále balkon a dvě parkovací místa naproti pozemku, z toho jedno pod krytým parkovištěm (carport).
PROHLÍDKY ihned možné!
Byt se nachází v klidné lokalitě v historické části Stolpenu, přesto velmi blízko centra. Všechna školní i lékařská zařízení jsou rychle dosažitelná pěšky.
Všechny místnosti jsou vybaveny radiátorem; v koupelně naleznete sušičku ručníků, sprchu, vanu i pračku. Vše je nové – interiérové dveře, designový podlahový kryt, stropy, stěny a podlaha jsou izolovány.
V okolí nemovitosti najdete
Stále hledáte to pravé?
Nastavte si hlídacího psa. Nabídky vybrané na míru dostanete souhrnně 1× denně e-mailem. S Premium profilem máte k ruce hlídačů rovnou 5 a když se něco objeví, informují vás obratem.






