
Prodej bytu 3+1 • 84 m² bez realitkyKolbenova, Praha - Vysočany
Využít program Bydlím hned, koupím později
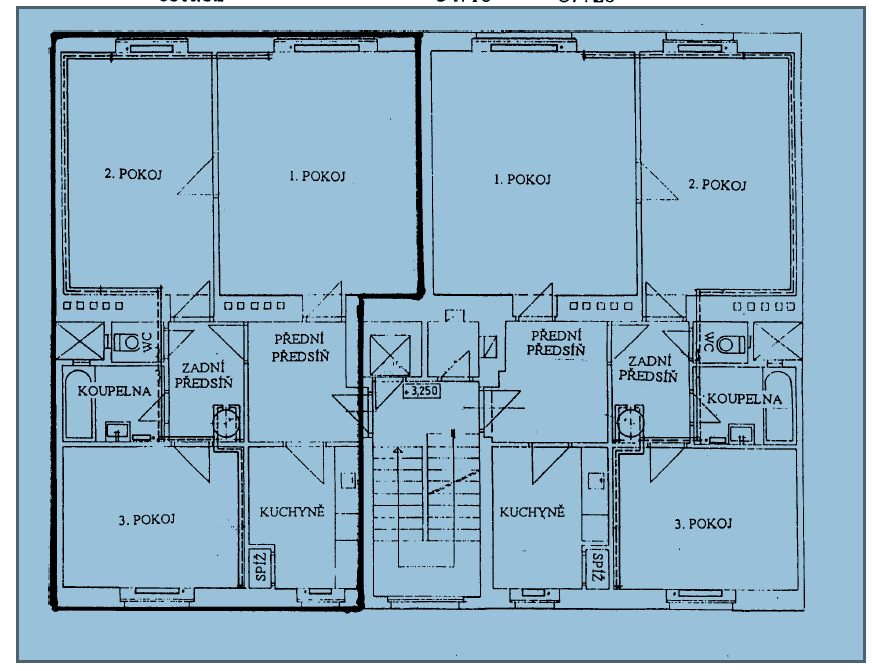
Nabízím k prodeji krásný a vysoce kvalitní byt o dispozici 3+1, který se nachází v cihlové budově ve 4 NP. Nemovitost je ve velmi dobrém stavu a nachází se v osobním vlastnictví, což zaručuje rychlý a transparentní převod. Byt je kompletně vybaven, což umožňuje okamžité nastěhování bez nutnosti dodatečných investic do vybavení.
Celková obytná plocha 84 m² poskytuje dostatek prostoru pro komfortní bydlení a praktické řešení rodinného života. K bytu rovněž patří sklep o rozloze 8 m², který slouží k uskladnění věcí a pomáhá udržet byt přehledný. V budově je zajištěn výtah, což výrazně zvyšuje komfort bydlení, ačkoli nemovitost nenabízí parkovací místo ani garáž.
Věřím, že se toto moderně zařízené a celkově velmi dobře udržované bydlení stane ideální volbou pro nového majitele. V případě zájmu je možné mě kontaktovat prostřednictvím zpráv na komunikační platformě.Prodej bytu 3+1, 84 m² – Praha 9, Kolbenova
Nabízím k prodeji prostorný byt o dispozici 3+1 s podlahovou plochou 84 m², situovaný v atraktivní lokalitě Praha 9 – Kolbenova.
Byt se nachází v posledním podlaží domu, což zajišťuje naprostý klid bez hluku od sousedů nad vámi. Z bytu je zároveň krásný otevřený výhled do okolí, který dodává bydlení příjemnou atmosféru.
🔹 Základní informace:
Dispozice: 3+1
Podlahová plocha: 92 m²
Lokalita: Kolbenova, Praha 9
🔹 Výhody:
Poslední podlaží – klid a soukromí
Krásný výhled do okolí
Prostorné místnosti
Dobrá dopravní dostupnost (metro, MHD)
Kompletní občanská vybavenost v okolí
Vhodné i jako investice
Byt se nachází v lokalitě s veškerou občanskou vybaveností – školy, školky, obchody, restaurace i služby v docházkové vzdálenosti.
📞 Pro více informací nebo domluvení prohlídky mě neváhejte kontaktovat.
Parametry nemovitosti
| Dostupné od | 3. 4. 2026 |
|---|---|
| Konstrukce budovy | Cihla |
| Vybaveno | Vybaveno |
| Číslo inzerátu | 1008660 |
| PENB | G - Mimořádně nehospodárná |
| Užitná plocha | 84 m² |
| Cena za jednotku | 178 571 Kč / m2 |
| Stav | Velmi dobrý |
|---|---|
| Dispozice | 3+1 |
| Podlaží | 4. podlaží z 4 |
| Vlastnictví | Osobní |
| Umístění | Klidná část |
| Rizika | Prověřit » |
Co tato nemovitost nabízí?
| Sklep 8 m² | |
| Výtah |
V okolí nemovitosti najdete
Využít program Bydlím hned, koupím později
Stále hledáte to pravé?
Nastavte si hlídacího psa. Nabídky vybrané na míru dostanete souhrnně 1× denně e-mailem. S Premium profilem máte k ruce hlídačů rovnou 5 a když se něco objeví, informují vás obratem.









