
Pronájem bytu 3+1 • 75 m² bez realitkyJacobstraße 17, , Sasko
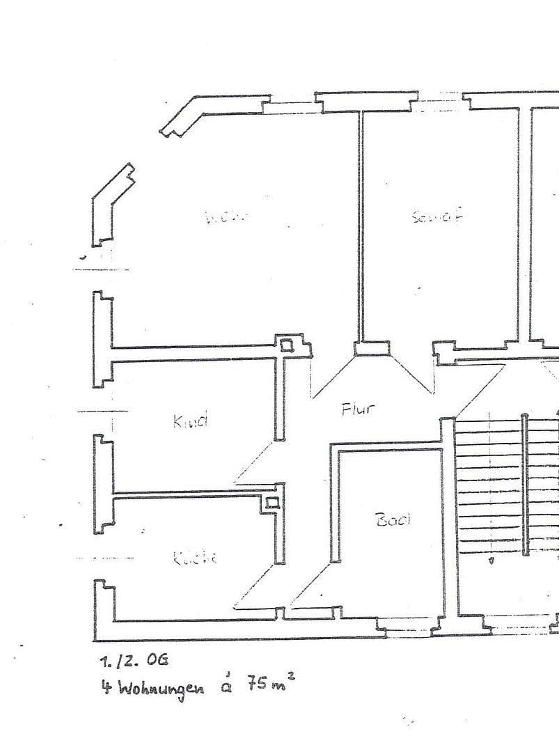
Jacobstraße 17, , SaskoMHD 4 minuty pěškyK pronájmu je k dispozici světlý 3-pokojový byt včetně koupelny s denním světlem se sprchou a vanou. Objekt se nachází v ulici Jacobstraße na křižovatce s Julius-Seifert-Straße; protože ani jedna z těchto ulic není hlavní dopravní tepnou, je lokalita poměrně klidná. Byt má promyšlené dispozice, je vhodný pro páry nebo spolubydlení a je ihned k nastěhování.
Na západ od Zwickaus se nachází čtvrť Marienthal, která leží u potoka Marienthaler Bach, jenž na severu ústí do Mulde. Obchody se zbožím pro každodenní potřebu jsou v bezprostřední blízkosti a veřejná doprava v Marienthal je dostatečná.
Autobusové linky:
• Linka 18: Neumarkt – Königswalde – Hartmannsdorf
• Linka 21: Neumarkt – Brand
• Linka 27: Städtisches Klinikum – Planitz Markt
• Noční linka A: Neumarkt – Marienthal – Olzmannstraße – Neuplanitz – Oberplanitz – Cainsdorf – Wilkau-Haßlau – Schedewitz – Innenstadt – Neumarkt
Tramvajové linky:
• Linka 4: Pölbitz – Neumarkt (Bosestraße) – Georgenplatz – Städtisches Klinikum
RIRE Assets Green GmbH
Bötzowstraße 26
10407 Berlín
Obchodní rejstřík: HRB223131 B
Registrační soud: Amtsgericht Charlottenburg
Zastoupeno:
Benedikt Richter
V okolí nemovitosti najdete
Stále hledáte to pravé?
Nastavte si hlídacího psa. Nabídky vybrané na míru dostanete souhrnně 1× denně e-mailem. S Premium profilem máte k ruce hlídačů rovnou 5 a když se něco objeví, informují vás obratem.







