
Prodej bytu 4+1 • 110 m² bez realitkyHohenzollernring 18c Berlin Spandau Berlin 13585
Hohenzollernring 18c Berlin Spandau Berlin 13585MHD 2 minuty pěškyU původní budovy kasárna, postavené během první světové války (1914) a mezi lety 2013–2015 důkladně zrekonstruované, nabízí tento vlastnický byt ve vyšším přízemí (Hochparterre) samostatně stojícího více rodinného domu vše, po čem si člověk může vysnít: kouzlo historické budovy s vysokými stropy, prostorné, světlé uspořádání místností s mnoha kassetovými okny a dveřmi, parketovou podlahu, dva balkony a malou zahrádku orientovanou na jih. To vše na nejlepší lokalitě ve Spandau, v docházkové vzdálenosti od historického centra a nádraží, s mateřskými školami, školami, supermarkety a parkovými plochami v blízkosti Steinwurf. A bonus: Suterén nabízí další možnosti pro případné rozšíření.
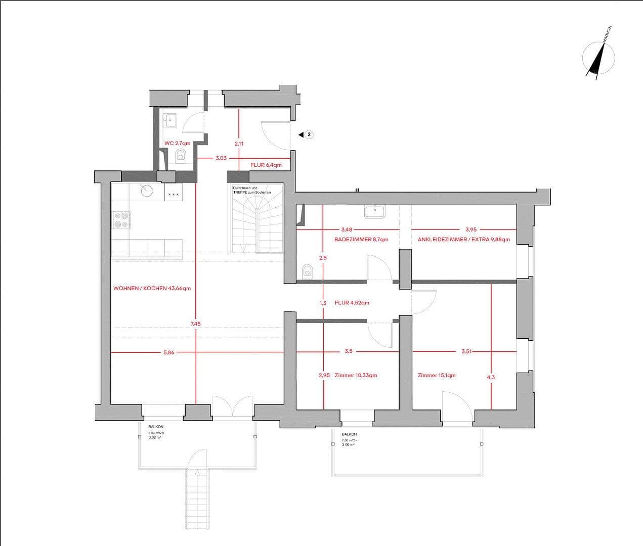
Středobodem bytu o rozloze přibližně 110 m² je prostorný obývací pokoj s integrovaným kuchyňským ostrovem. Odtud se dostanete přes jeden balkon do malé zahrádky s výlučným užívacím právem. Z jedné ze dvou dalších místností vede přístup na druhý balkon.
K dispozici je také koupelna a samostatné hostinské WC, které rozšiřují dispozici bytu. Z koupelny je pak přístup do čtvrté místnosti, která slouží jako šatna. Parkovací stání lze pronajmout za přibližně 30 €/měsíc.
Součástí kupní ceny je rovněž zvláštní potenciál pro další využití: V suterénu se nachází dodatečná užitná plocha o téměř 50 m² s výlučným užívacím právem, vysokými stropy a několika okny. Tato část je v katastrálních podkladech i v prohlášení o vymezení jako skladovací/hobby místnost/obytný prostor. Již existuje (aktuálně uzavřený) průlom do bytu, který by se při zájmu dal doplnit schodištěm. Místnost má vlastní vchod přímo ze zahrady.
Dům je v udržovaném stavu – zapuštěn v soukromém, oploceném areálu se dvěma vjezdovými branami a malým dětským hřištěm na pozemku. Společenství vlastníků tvoří převážně majitelé, kteří mají velký zájem o komunitu. Pořádají se zde společné akce, jako jsou letní slavnosti, zdobení vánočního stromu nebo společné večeře (Dinner-Hopping). I dlouhodobě je nemovitost atraktivní: Společenství vlastníků plánuje energetické novinky, které by měly být dle aktuálního plánu financovány z rezerv – což je silný signál pro udržení hodnoty a budoucí životaschopnost.
Byt se nachází v zavedeném, klidném koutě Berlína – a přitom tak centrálně, že máte v dosahu vše, co potřebujete pro každodenní život. Bydlíte pohodlně v okrese, který se vyvinul kolem Hohenzollernringu, s kombinací krásných historických staveb a pečlivě udržovaných novostaveb a s infrastrukturou, jež opravdu nabízí vše, po čem si člověk při příjemném městském životě může přát.
Pro každodenní potřeby je tu vše, co potřebujete: supermarkety, pekárny, malé specializované obchody, mateřské školy a školy v okolí. A když máte chuť na město, historické centrum Spandau nebo Spandau Arcaden s širokým výběrem obchodů jsou v docházkové vzdálenosti.
Ani dopravní spojení nezklame: autobusová zastávka se nachází přímo před domem a na nádraží se dostanete za přibližně 10 minut chůze. Odtud jste zhruba 30 minut od Berlínského hlavního nádraží a přibližně 60 minut od letiště BER.
A nyní přichází ta část, kterou Spandau obzvlášť miluje: přestože bydlíte ve městě, voda a zeleň jsou doslova „za rohem“. Spandauer Grüne Ring, Spandauer Forst, řeka Havel a jezero Stößensee se nacházejí přímo v okolí. Také Potsdam a braniborská krajina jsou rychle dostupné. Celkově jde o lokalitu, která umí obojí: městský život se všemi jeho výhodami – a zároveň čistou přírodu s obrovským potenciálem pro volný čas a odpočinek.











































