Prodej domu 3+1 • 92 m² bez realitkyDorfstrass 5, , Mecklenburg-Vorpommern
Možná nejprve důvod pro prodej tohoto domu; majitel zemřel a syn si vzal svou matku k sobě do domu, který se nachází několik kilometrů odsud. Jsem dobrý známý a pomáhám s prodejem.
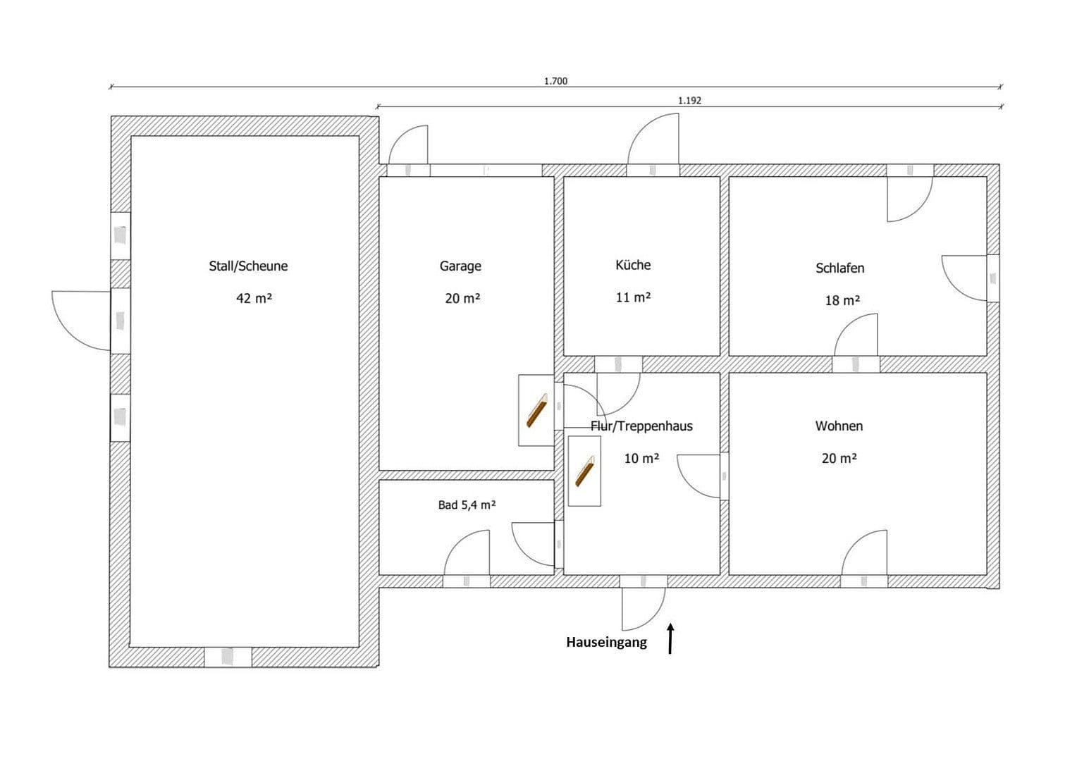
K domu: byl postaven v roce 1948 a v letech 1993/94 částečně zrekonstruován. Obývací plocha v přízemí činí přibližně 90 m², patro o rozloze přibližně 120 m² ještě není dokončeno. Ze společného domu je také přístup do sklepa o rozloze cca 9,00 m². Ze vstupní haly domu se dostanete do garáže o velikosti cca 20 m² a vedle ní se nachází stodola/stáj o rozloze 42 m², která dříve sloužila pro chov zvířat.
Dům je momentálně vytápěn několika nočními akumulačními kamny (levný noční elektřina je zde zajištěna); hlavní elektrické připojení a pojistková skříňka byly nedávno obnoveny, stejně tak i vodovodní připojení ve sklepě. Některá okna byla nahrazena novými plastovými okny, některé vnitřní dveře a obložení rámů byly renovovány a stropy byly také obloženy dřevem. Nemohu ovšem opomenout, že jistě bude třeba ještě další rekonstrukce/sanace nebo případné dovybudování – což se odráží na velmi výhodné prodejní ceně.
Nabídku doplňuje nádherný pozemek o rozloze 3100 m², který je kompletně oplocen 2 metry vysokým plotem. Přilehlá plocha o rozloze cca 2000 m² je podle potřeby k dispozici zdarma. Pro vlastní zásobování vodou je k dispozici studna, vyvrtána do hloubky 32 m a vybavena výkonným čerpadlem.
Na pozemku se nachází také tříkomorová septiková jáma. Tento pozemek je ideální pro chov zvířat – ať už jde o slepice, koně nebo psy. V současnosti tu roste starý ovocný sad (který je nyní trochu přerostlý a čeká na oživení). Absolutní klid je zaručen. V přibližné vzdálenosti 500–700 m se nacházejí větrné elektrárny, které však nevytvářejí žádný hluk ani stín. Dřevěné stáje, které se na pozemku ještě nacházejí, budou na přání odstraněny. Energetický průkaz je k dispozici.
Lokalita Panschow se nachází cca 2 km od spolkové silnice B 197, mezi Anklam (cca 11 km) a Friedland (14 km). Panschow je součástí obce Sarnow, která má přibližně 440 obyvatel. Spolková dálnice A 20 je vzdálena 25 km (výjezd Neubrandenburg Nord).
Absolutně klidná obytná lokalita. V přírodě se můžete těšit na Brohmer hory a Stettiner Haff Ueckermünde, které jsou dosažitelné přibližně za 30 minut. Pro případné výlety jsou k dispozici zoologická zahrada Uckermünde, pobřeží Baltského moře (cca 1 hodina), Berlín (cca 1,5 hodiny) a nejbližší město cca 11 km. Upozornění pro městské obyvatele: zde patří život na venkově, kde občasný provoz traktorů během žní je součástí vesnického obrazu a podtrhuje venkovský charakter.
V případě zájmu mě kontaktujte na telefonním čísle 0152-53590284.


















