
Pronájem bytu 2+kk • 45 m² bez realitkyU Zvonařky, Praha - Vinohrady
Máte o nabídku zájem?
Ušetřete 22 000 Kč na provizi a komunikujte se všemi majiteli.
Nabízím k pronájmu velmi příjemný, světlý byt 2+kk o velikosti 45 m², právě po rekonstrukci, včetně nových oken s orientací na západ a výhledem na Vyšehrad. Směřování bytu je do klidného dvora. Byt se nachází ve 4. patře udržovaného domu - bez výtahu a nabízí dostatek denního světla, klidnou lokalitu i sousedy v domě. V domě dlouhodobě bydlím, proto hledám pohodového nájemce - ideálně na dlouhou dobu.
Byt vhodný pro dvě dospělé osoby, nevhodný pro spolubydlení.
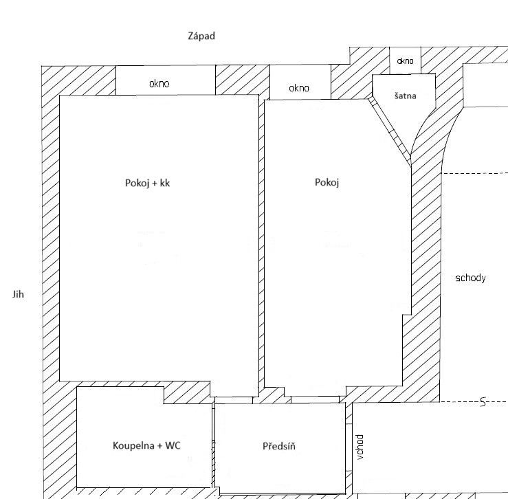
Dispozice :
obývací pokoj s kuchyňským koutem - podlaha parkety
samostatná ložnice - podlaha prkna
předsíň - podlaha vinyl
koupelna se sprchovým koutem a WC - podlaha dlažba
šatna / úložný prostor - podlaha dlažba
kuchyňská linka se spotřebiči (indukční deska, horkovzdušná trouba, digestoř s odtahem do komína)
Výborná lokalita na Vinohradech s veškerou občanskou vybaveností v docházkové vzdálenosti.
Klidná ulice, zároveň rychlá dostupnost do centra.
Topení i ohřev vody elektřina v nejnižším tarifu D57d.
Dobrá dostupnost MHD (TRAM 23 - 1 min, METRO C,A - 10 min).
Zúčtovatelné zálohy zahrnují spotřebu vody, úklid, osvětlení společných prostor a pevný internet 250Mb/s. (Zálohy 1 osoba 1100 Kč/měsíc, 2 osoby 1600 Kč/ měsíc)
Elektřina - převod smlouvy s dodavatelem na nájemníka - doporučení 3000 Kč.
Parametry nemovitosti
| Stáří | Nad 50 let |
|---|---|
| Stav | Dobrý |
| Dispozice | 2+kk |
| Podlaží | 4. podlaží z 5 |
| Vytápění | Elektrické |
| Vlastnictví | Osobní |
| Rekonstrukce | Kompletní |
| Cena za jednotku | 488,89 Kč / m2 |
| Dostupné od | 15. 4. 2026 |
|---|---|
| Konstrukce budovy | Cihla |
| Vybaveno | Nevybaveno |
| Provedení | Standardní |
| Číslo inzerátu | 1011390 |
| PENB | G - Mimořádně nehospodárná |
| Užitná plocha | 45 m² |
Co tato nemovitost nabízí?
V okolí nemovitosti najdete
Máte o nabídku zájem?
Ušetřete 22 000 Kč na provizi a komunikujte se všemi majiteli.
Stále hledáte to pravé?
Nastavte si hlídacího psa. Nabídky vybrané na míru dostanete souhrnně 1× denně e-mailem. S Premium profilem máte k ruce hlídačů rovnou 5 a když se něco objeví, informují vás obratem.
























