
Pronájem bytu 2+kk • 40 m² bez realitkyV Kališti, Praha - Dubeč
V Kališti, Praha - DubečMHD 5 minut pěšky • Částečně vybaveno • ParkováníMáte o nabídku zájem?
Ušetřete 20 000 Kč na provizi a komunikujte se všemi majiteli.
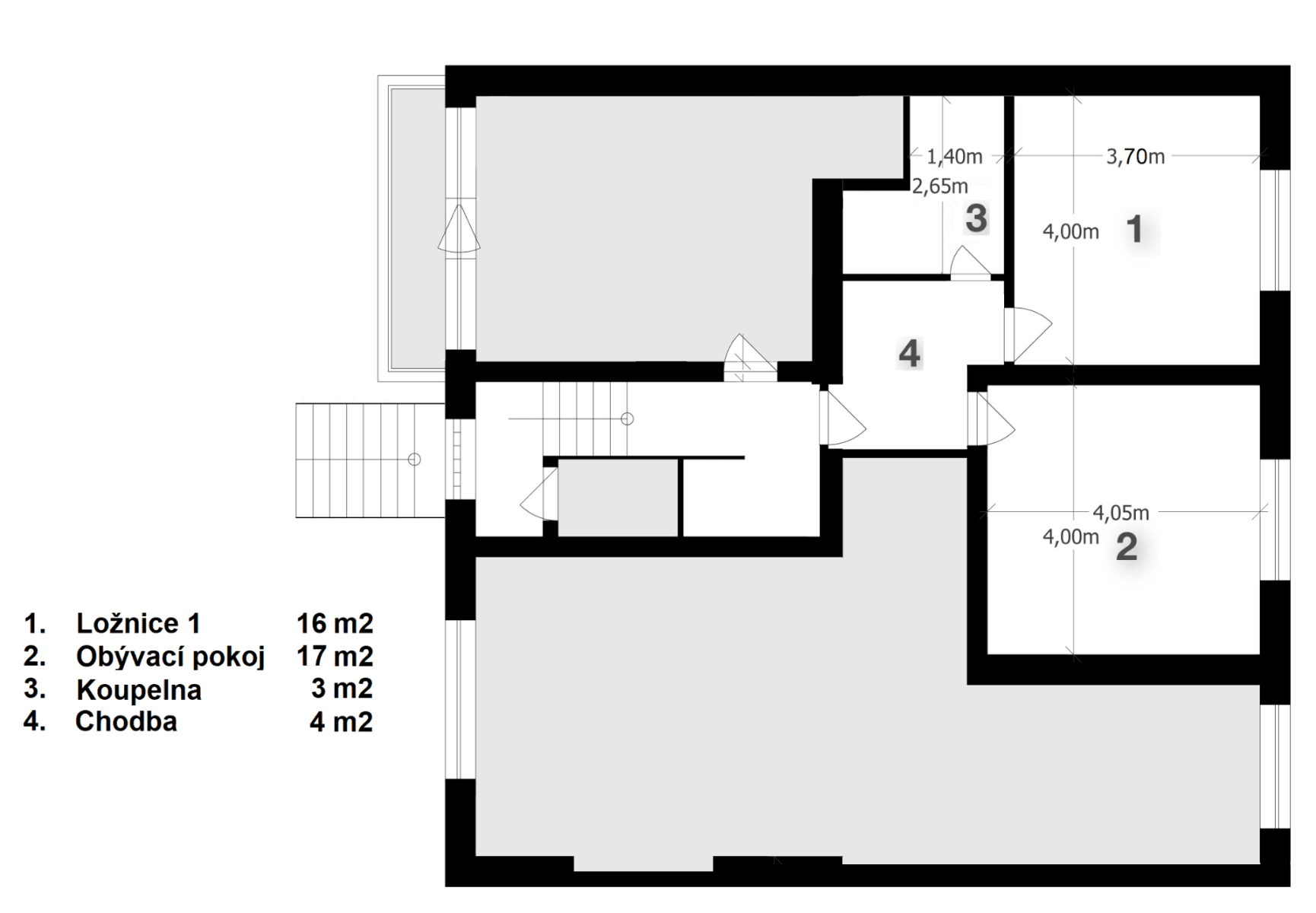
Nabízíme k pronájmu byt 2+kk po kompletní rekonstrukci nacházející se v patře rodinného domu.
Byt je částečně zařízen, mezi vybavení patří kuchyňská linka s indukční deskou, troubou, digestoří, mikrovlnnou troubou, myčkou a lednicí. Koupelna je vybavena sprchovým koutem, toaletou a pračkou s integrovanou sušičkou.
Energie jsou měřené samostatným vodoměrem a elektroměrem.
Na pozemku je k dispozici parkovací místo. K relaxaci je možné využívat rozsáhlou zahradu.
Cena nájmu činí 20 000 Kč měsíčně, poplatky činí 4 000 Kč a zahrnují již el. energii, vodu a internet.
Zastávka autobusu je vzdálená 200 m. Na náměstí v Dubči je obchod Tesco, pošta, praktický lékař, sportovní centrum a další služby.
Byt je nekuřácky. Prosíme bez domácích zvířat.
Celá nemovitost byla postavena z kvalitních materiálů, což se odráží v pečlivě udržovaném stavu bytu. Pro efektivní jednání ohledně pronájmu prosím o komunikaci skrze komunikační platformu. Pokud hledáte komfort a klidné bydlení, tento byt by mohl být tím pravým řešením.
V okolí nemovitosti najdete
Máte o nabídku zájem?
Ušetřete 20 000 Kč na provizi a komunikujte se všemi majiteli.
Stále hledáte to pravé?
Nastavte si hlídacího psa. Nabídky vybrané na míru dostanete souhrnně 1× denně e-mailem. S Premium profilem máte k ruce hlídačů rovnou 5 a když se něco objeví, informují vás obratem.













