Pronájem bytu 3+1 • 104 m² bez realitkyAm Steinkart 5b, , Bavorsko
Am Steinkart 5b, , BavorskoMHD 5 minut pěšky • Výtah • GarážKouzelný život a bydlení v Bad Griesbach
Zde se propojují architektura a pocit z domova. Byty nabízejí příjemný pocit kvality a jistoty stylu. Prostorně navržené a světlem prosvětlené místnosti okouzlují vysokokvalitními materiály a nadčasově krásnou estetikou.
V krásné obytné části Bad Griesbach pro Vás realizujeme atraktivní projekt nové výstavby – v nejlepší lokalitě vznikají čtyři bytové domy, celkem se 44 byty zvláštního a moderního typu. Kromě kvality klademe při plánování a realizaci velký důraz na současnou architekturu, která ladí s regionem. Pozemek se nachází úchvatně na vyvýšeném místě na konci osady a nabízí volný výhled na hory. Městské náměstí, lékaři a všechna zařízení každodenní potřeby jsou pohodlně dostupná pěšky.
Byty zaujmou svými prostornými balkony, střešními terasami a terasami se zahradami. Zahrady bytů v přízemí jsou k dispozici výhradně pro majitele. Penthouse byty i byty v horních patrech nabízejí jedinečný a nezastižitelný výhled s pohledem na Alpy. Výtahy pohodlně přepravují obyvatele z podzemní garáže do všech pater. Velká část bytů je navržena bez bariér.
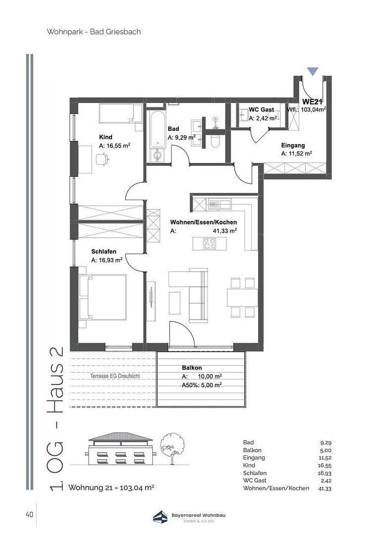
Náš slunný 3-pokojový byt s jižním balkonem, ložnicí, koupelnou a prostorným otevřeným obývacím, jídelním a kuchyňským prostorem je ideální pro rodiny a páry hledající místo k odpočinku a pohodlí. Velká zahrada je výhradně k dispozici příslušnému majiteli.
Projekt TG samozřejmě nabízí parkovací místa, místa na carportu i venkovní parkovní místa. Navíc má každý byt vlastní sklepní kójičku.
Standard KFW 40 QNG:
Stavební provedení splňuje všechna kritéria aktuální EnEV podle energetické účinnosti KfW40 QNG a díky tepelné izolaci budovy zdůrazňuje udržitelný způsob výstavby. Stavba je proto velmi energeticky úsporná, udržitelná a šetrná k životnímu prostředí. Díky konstrukci jsou budoucí provozní náklady minimální. Energiekoncept je podpořen fotovoltaickou elektrárnou o výkonu 10 kWp.
Složení nájemného:
– Nájemné 2-pokojového bytu: 1170,00 EUR
– Nájemné 2× místa v podzemní garáži: 130,00 EUR
– Nájemné za vestavěnou kuchyň: 65,00 EUR
– Provozní náklady: 190,00 EUR
= Celkové nájemné (včetně tepla): 1555,00 EUR
JE K DISPOZICI VÍCE BYTŮ, KTERÉ JE MOŽNO SI PŘI PROHLÍDKOVÉM TERMÍNU PŘIJÍT PROHLÉDNOUT V BYTOVÉ OBYVACÍ ZÓNĚ!
Bydlení a život v Bad Griesbach
V lokalitě s neporazitelným výhledem a v bezprostřední blízkosti centra města Bad Griesbach vznikají čtyři bytové domy s celkem 44 byty zvláštního a moderního typu.
360° virtuální prohlídka:
https://bayernarealwohnbau.viewin360.co/share/collection/7bQ8V?logo=bWVkaWEvNTQxNTIyLzY2ZTQtMDI1Ni00MTViLWYxOTIucG5n&info=0&logosize=160&fs=1&vr=1&sd=1&thumbs=1&inst=de
Moderní a sofistikované vybavení:
+ Moderní stavební metoda a vysoce kvalitní vybavení dle standardu KfW 40 NH Effizienzhaus
+ Tepelně izolační cihly
+ Vestavěná kuchyň
+ Fotovoltaická elektrárna o výkonu 10 kWp
+ Přízemní byty s terasami a zahradní úpravou
+ Každý bytový dům má výtah
+ Energeticky úsporné vytápění pomocí peletových kotlů
+ Byty jsou převážně bezbariérové
+ Vysoce kvalitní pravé dřevěné parkety / moderní dlaždice
+ Individuálně regulovatelné podlahové vytápění pro příjemný pocit pohodlí
+ Bezbariérové sprchy a designové koupelnové vybavení
+ Částečně s hostinským WC
+ Hliníková plastová okna: zvenku antracit a zevnitř bílá (trojitě izolační)
+ Elektricky ovladatelné rolety a žaluzie
+ Decentralizovaná ventilace obytných prostor s rekuperací tepla
+ Parkovací místa pod carportem
+ Venkovní parkovací místa
+ Ke každému bytu patří jedna sklepní kójička
V okolí nemovitosti najdete
Stále hledáte to pravé?
Nastavte si hlídacího psa. Nabídky vybrané na míru dostanete souhrnně 1× denně e-mailem. S Premium profilem máte k ruce hlídačů rovnou 5 a když se něco objeví, informují vás obratem.




















