
Pronájem bytu 2+1 • 53 m² bez realitkyFrankfurt am Main Gallus Hessen 60486
Frankfurt am Main Gallus Hessen 60486MHD 3 minuty pěšky • Výtah • GarážModerní 2-pokojový byt s nejnovější energetickou efektivitou – v oblíbené zelené čtvrti Europaviertel
Přizpůsoben modernímu životnímu stylu
Europaviertel – uprostřed života, uprostřed Frankfurtu
Europaviertel nabízí možnosti bydlení pro všechny, kteří chtějí žít přímo v centru. Díky své poloze mezi veletržním centrem a bankovní čtvrtí propojuje centrum města se zeleným okrajem. Je to živá městská čtvrť s prostorami pro bydlení, práci, nakupování a odpočinek. V současnosti se zde nacházejí kanceláře, hotely, byty i možnosti pro nákupy a volnočasové aktivity. Čtvrť je určena pro centrální bydlení s úspěšnou komerční a kulturní infrastrukturou. Oblíbené Skyline Plaza, nákupní a zábavní centrum, nabízí každému příjemnou změnu.
• Dobrá dostupnost MHD
• Autobus č. 52 zastavuje přímo před domem
• Přibližně 7 minut pěšky k nádraží S-Bahn „Messe“
• Výborné a krátké napojení na dálnice A5 a A66
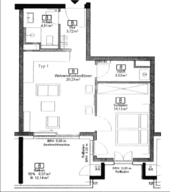
• Dobře členěný obytný a jídelní prostor
• Příjemná výška stropu
• Vysoce kvalitní masivní dřevěná parketová podlaha ve všech obytných místnostech
• Podlahové vytápění
• Exkluzivní otevřená vestavěná kuchyně s vysoce kvalitní mramorovou pracovní deskou a inovativními spotřebiči renomovaných značek
• Kompletně vybavená koupelna s kvalitním nábytkem, bezbariérovou sprchou se skutečnými skleněnými dveřmi, topením na ručníky, osvětlením a rádiem
• Úložný prostor s přípojkami pro pračku a sušičku
• Podlahová dřevěná okna s izolačním zasklením
• Inovativní multimediální kabeláž (Homeway)
• Elektrická rolety a vertikální markýzy
• Výtah až do podzemní garáže
• Jižní balkon s útulnou dřevěnou podlahou a výhledem na Europagarten, krytý
• Samostatný sklepní prostor
• Sklep na kola
Omezení:
Maximálně 2 osoby, pouze nekuřáci
V okolí nemovitosti najdete
Stále hledáte to pravé?
Nastavte si hlídacího psa. Nabídky vybrané na míru dostanete souhrnně 1× denně e-mailem. S Premium profilem máte k ruce hlídačů rovnou 5 a když se něco objeví, informují vás obratem.














